Найти в Дзене
Филдс

Из бетонной коробки в уютную двушку 60 м² для мужчины: фото до и после ремонта

Дизайнер Полина Агафонова превратила бетонную коробку в спокойную двушку 60 м², наполненную светом и воздухом, для мужчины. Планировку выстраивали с нуля. В интерьере использовали элементы стилей сканди и минимализм. Планировка до и после Квартира сдавалась в бетоне и без внутренних перегородок. Застройщик лишь наметил зоны санузлов. В итоге спроектировали отдельную спальню, выделили гостиную — ее изолировали от кухни и прихожей стеклянными перегородками. Подоконный блок, за которым располагается балкон, убрали и организовали французское остекление, там обустроили мини-кабинет. На месте одного из санузлов оборудовали гардеробную. Фото до ремонта Гостиная За счет тонированных стеклянных перегородок в комнате удалось сохранить большое количество естественного освещения и воздуха. Ощущение простора поддержали спокойной отделкой: для стен использовали светло-серую английскую краску, для пола — ламинат под светлое дерево. Кухня Угловой гарнитур дополнили барной стойкой, которая стала
Оглавление

Дизайнер Полина Агафонова превратила бетонную коробку в спокойную двушку 60 м², наполненную светом и воздухом, для мужчины. Планировку выстраивали с нуля. В интерьере использовали элементы стилей сканди и минимализм.

  • Общая площадь: 60 м²
  • Место: Москва
  • Тип дома: ЖК «Петровский Парк»
  • Количество комнат: 2
  • Высота потолка: 3,4 м
  • Кто здесь живет: мужчина
  • Бюджет: 9 млн рублей
  • Стилист: Ирина Темнова
  • Фото: Антон Лихтарович

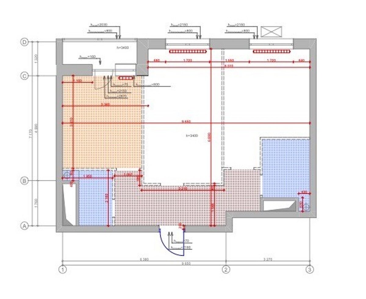
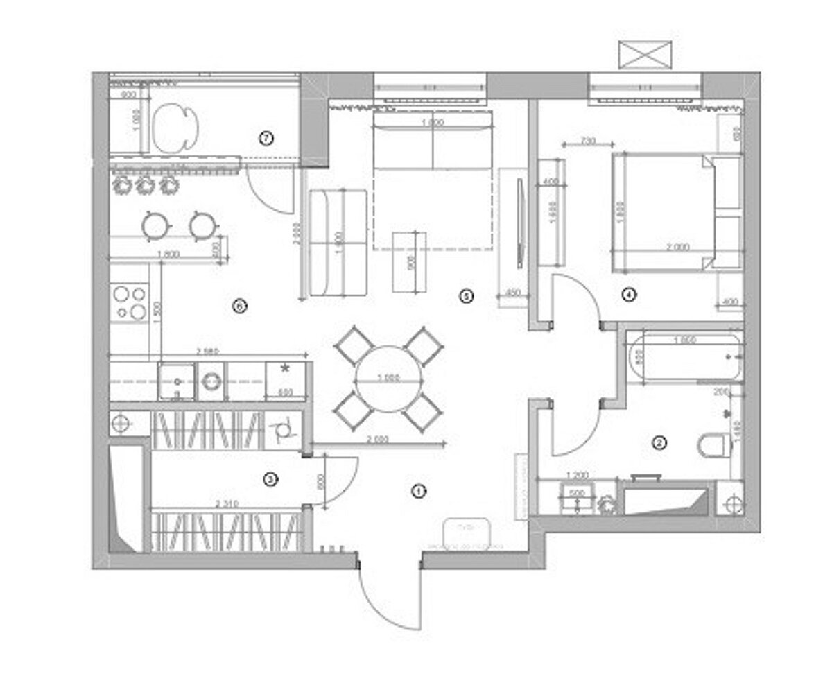
Планировка до и после

Квартира сдавалась в бетоне и без внутренних перегородок. Застройщик лишь наметил зоны санузлов. В итоге спроектировали отдельную спальню, выделили гостиную — ее изолировали от кухни и прихожей стеклянными перегородками. Подоконный блок, за которым располагается балкон, убрали и организовали французское остекление, там обустроили мини-кабинет. На месте одного из санузлов оборудовали гардеробную.

Фото до ремонта

Гостиная

За счет тонированных стеклянных перегородок в комнате удалось сохранить большое количество естественного освещения и воздуха. Ощущение простора поддержали спокойной отделкой: для стен использовали светло-серую английскую краску, для пола — ламинат под светлое дерево.

Кухня

Угловой гарнитур дополнили барной стойкой, которая стала удобным местом для завтраков и быстрых перекусов. Нежно-зеленые фасады напольных шкафов оживили светлую отделку умеренными природными красками. Верх конструкции сделали белым, чтобы нависающий ярус не перегружал пространство.

Балкон

Балкон утеплили и отвели под мини-кабинет. Лаконичный столик дополнили креслом в более насыщенной серой обивке, нежели отделка, и подвесными шкафами для книг и документов.

-5

Спальня

Спальню выполнили в серо-оливковом цвете. Кровать с мягким изголовьем обрамляют деревянные прикроватные столики. В изножье разместили мебельную конструкцию, которая сочетает тумбу и письменный стол. Зону украсили картиной и керамикой.

Гардеробная

Просторная отдельная гардеробная избавила от необходимости размещать дополнительные системы хранения в других помещениях. Здесь также установили стиральную машину и корзину для белья, благодаря чему получилось разгрузить ванную.

-7

Санузел

В отделке санузла сочетали покраску и керамогранит, которым также облицевали и чашу ванны. Для хранения помимо тумбы под раковиной также предусмотрели шкафы над инсталляцией и пенал для хозяйственных средств.

Интересные мнения в комментариях приветствуются. Если материал понравился — ставь лайк!

🖤 Филдс — это не только блог на Дзене, но и магазин дизайнерских предметов интерьера. Заходите на сайт, чтобы увидеть мебель, которую дизайнеры выбирают для своих проектов.