Найти в Дзене
ЭТО ВАШ ИНТЕРЬЕР

Бюджетный ремонт "убитой" однушки 28 кв. метров (Фото До и После). Получилось очень неоднозначно

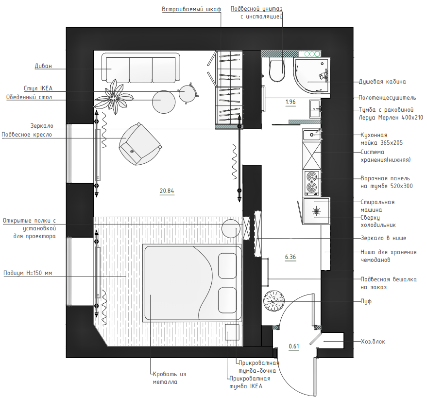
Эта небольшая квартира находится в северной столице в дореволюционном доме. Хозяйка этой жилплощади купила квартиру не для себя, а для сдачи в аренду. Но перед тем, как начать сдавать квартиру, её нужно было отремонтировать. Бюджет был очень ограниченным, поэтому в ход шли все бюджетные средства. Проект Прихожая На полу возле входной двери уложили плитку разных цветов. В отделке стен использовали родной кирпич, штукатурку и фанеру. Возле входа спроектировали небольшой хозяйственный шкафчик. Справа находится открытая система хранения, а напротив повесили винтажное зеркало. Кухня Крохотную кухню расположили в транзитной зоне. Гарнитур состоит лишь из нижнего яруса, который делали на заказ именно для этого проекта. В качестве акцентов здесь появились красный чайник и микроволновая печь, а так же черный водонагреватель. Спальня-гостиная При входе в комнату попадаешь в зону гостиной. Справа от входа встал шкаф для одежды в той же стилистике, что и кухонный гарнитур. Почти вся мебель была
Оглавление

Эта небольшая квартира находится в северной столице в дореволюционном доме. Хозяйка этой жилплощади купила квартиру не для себя, а для сдачи в аренду. Но перед тем, как начать сдавать квартиру, её нужно было отремонтировать. Бюджет был очень ограниченным, поэтому в ход шли все бюджетные средства.

Проект

  • Местонахождение: г. Санкт-Петербург
  • Площадь квартиры: 28 кв. метров
  • Владельцы: женщина (квартира для сдачи)
-2

Прихожая

На полу возле входной двери уложили плитку разных цветов. В отделке стен использовали родной кирпич, штукатурку и фанеру. Возле входа спроектировали небольшой хозяйственный шкафчик. Справа находится открытая система хранения, а напротив повесили винтажное зеркало.

-3

Кухня

Крохотную кухню расположили в транзитной зоне. Гарнитур состоит лишь из нижнего яруса, который делали на заказ именно для этого проекта. В качестве акцентов здесь появились красный чайник и микроволновая печь, а так же черный водонагреватель.

Спальня-гостиная

При входе в комнату попадаешь в зону гостиной. Справа от входа встал шкаф для одежды в той же стилистике, что и кухонный гарнитур. Почти вся мебель была куплена на Авито или же приобретена на разных барахолках и рынках. У стены встал диван, а рядом появилась столовая группа.

В противоположной части комнаты разместили спальню. Чтобы визуально зонировать комнату без использования перегородок, здесь соорудили небольшой подиум, на котором расположилась двуспальная кровать. Кровать сделана в ручную из металлических труб. Роль прикроватных тумбочек играют большой пень и красная бочка. На стене предусмотрели телевизор.

Санузел

На полу в ванной комнате уложена серая плитка. Стены частично оставили в первозданном виде, а также облицевали декоративной штукатуркой. Для экономии места здесь установлена душевая кабина.

Если вам понравилась статья, то не забудьте поставить лайк и подписаться, чтобы не пропустить новый материал!

Так же пишите в комментариях, что вам понравилось в этом проекте, а что вызывает сомнения.

Если вам будет интересно, то заходите на мой второй новый канал)