Добавить в корзинуПозвонить
Найти в Дзене

И снова студия... Продолжаем тему малогабаритного жилья

Студия расположена в красивом апарт-комплексе, интерьер которого выполнен в стиле ар-деко. При планировании будущего интерьера было принято решение поддержать общую стилистику дома. Изначально в студии запроектировано три помещения: 1.Санузел 2.Гардероб 3.Общая комната Чтобы сохранить максимально много света и пространство комнату решили не перегружать перегородками, а зонирование выполнить мебелью и освещением. Гардероб позволил не загромождать пространство шкафами. Удачное решение для студий - это холодильник встроенного типа. Он выглядит как шкаф и сглаживает "соседство" кухни со спальным местом. Цветовая гамма интерьера- это кофейно-бежевые тона с акцентами в виде изумрудного цвета. В цветовую палитру ввели золотой цвет фурнитуры и светильников, украсили стену фреской с лаконичным золотым узором, что в сочетании с изумрудным цветом придало интерьеру характерные черты ар-деко. С целью освобождения пространства выбрали кровать-диван вместо традиционной кровати. В разложенном виде

Студия расположена в красивом апарт-комплексе, интерьер которого выполнен в стиле ар-деко. При планировании будущего интерьера было принято решение поддержать общую стилистику дома.

Черновая отделка студии
Черновая отделка студии

Изначально в студии запроектировано три помещения:

1.Санузел

2.Гардероб

3.Общая комната

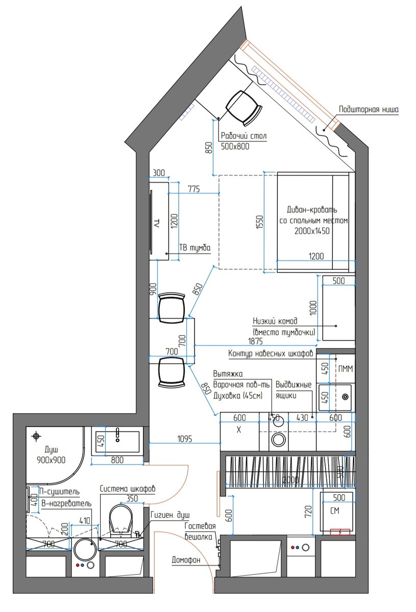
План с расстановкой мебели и сантехники
План с расстановкой мебели и сантехники

Чтобы сохранить максимально много света и пространство комнату решили не перегружать перегородками, а зонирование выполнить мебелью и освещением. Гардероб позволил не загромождать пространство шкафами.

Зона кухни
Зона кухни

Удачное решение для студий - это холодильник встроенного типа. Он выглядит как шкаф и сглаживает "соседство" кухни со спальным местом.

Цветовая гамма интерьера- это кофейно-бежевые тона с акцентами в виде изумрудного цвета. В цветовую палитру ввели золотой цвет фурнитуры и светильников, украсили стену фреской с лаконичным золотым узором, что в сочетании с изумрудным цветом придало интерьеру характерные черты ар-деко.

Зона спальни
Зона спальни

С целью освобождения пространства выбрали кровать-диван вместо традиционной кровати. В разложенном виде - это полноценная кровать с ровным бесшовным спальным местом с цельным матрасом и красивым изголовьем, а в собранном - компактный диван.

Зона прихожей.
Зона прихожей.

Зеркальная дверь со скрытым раздвижным механизмом прячет вход в гардероб со стиральной машинкой.

Санузел
Санузел
Санузел. Система шкафов.
Санузел. Система шкафов.

В небольшом санузле удалось организовать вместительную систему хранения, которая частично скрывает коммуникации.

Студия получилась просторная, функциональная и элегантная.