Найти в Дзене
Мечты Сбываются

Дом у леса

Что нужно для того чтобы наслаждаться жизнью в загородном доме?

- Хорошо освещенные помещения в доме, наполненные солнечным светом;
- Продуманную планировку дома, где достаточно места для всех членов семьи, чтобы они могли чувствовать себя комфортно и свободно;
- Приятное и ухоженное благоустройство участка, позволяющее разнообразно проводить время всей семьей и с друзьями.

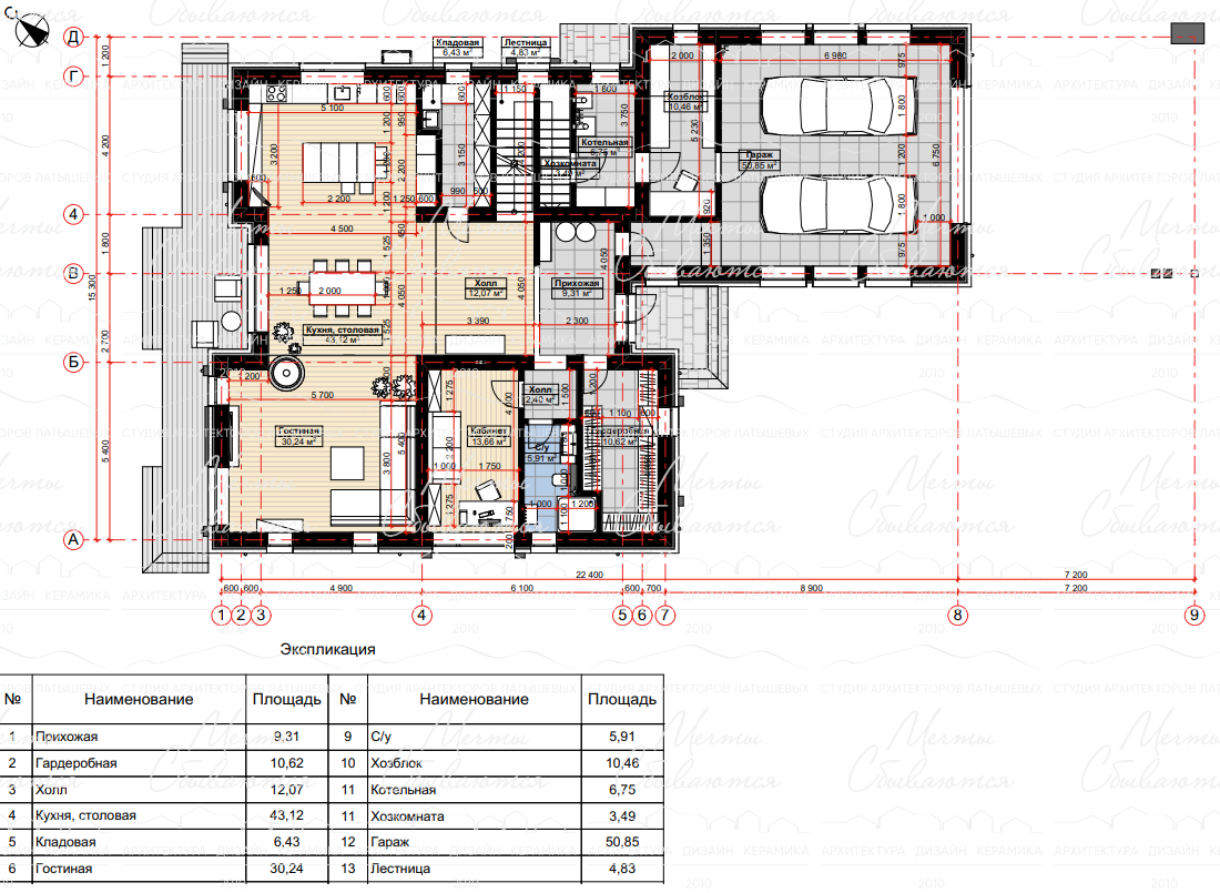
Все это мы и воплотили в представленном проекте. На участке вытянутой формы, примыкающем к лесу, мы расположили двухэтажный дом для молодой пары. Фасады дома решены с применением натуральных фактур и материалов.

 Со стороны улицы обустроили вместительный гараж, имеющий теплый вход в дом.  В доме на первом этаже сделано максимально открытое пространство от входа в дом и до зоны столовой и гостиной с двухсветным пространством, окна которой смотрят на лес.

На первом этаже расположилось так же,  полезное в любом доме помещение кладовой - черновой кухни, а на втором этаже было важно разместить вместительную гардеробную при спальне - ребята большие модники.

На втором этаже имеются и две детские - на перспективу роста семьи. В детских удалось разместить антресоли. Все дети мечтают иметь такую "тайную комнату", куда можно забраться, погрузившись в мир своих фантазий.

Между домом и банным комплексом устроили открытый бассейн, Который закрывается сдвижной террасой. Это позволяет наслаждаться отдыхом у воды под открытым небом и одновременно защитить бассейн от попадания в него листвы и прочего мусора в то время когда он не эксплуатируется и в зимний период.

На террасе у бани расположилась мангальная зона, а немного в глубине - костровая. Ведь так приятно собраться у живого костра, пожарить на открытом огне хлеб или маршмеллоу.⠀

Для активного времяпровождения нашлось место для спортивной площадки, а со стороны, примыкающей к лесу предусмотрена калитка для прогулок по лесу.

В доме на первом этаже сделано максимально открытое пространство от входа в дом и до зоны столовой и гостиной с двухсветным пространством, окна которой смотрят на лес. На первом этаже расположилось полезное в любом доме помещение кладовой - черновой кухни, а на втором этаже было важно разместить вместительную гардеробную при спальне - ребята большие модники.

На втором этаже имеются две детские - на перспективу роста семьи. В детских получилось разместить антресоли - все дети мечтают иметь такую "тайную комнату", куда можно забраться, погрузившись в мир своих фантазий.

__________________
На сколько от 1 до 10 такой дом соответствует Вашей мечте, что бы вы добавили? Напишите в комментариях.
__________________
Чтобы мы могли спроектировать дом Вашей мечты в точности по всем Вашим пожеланиям, приходите к нам на бесплатную консультацию, заполнив форму заявки на сайте.