Найти в Дзене
Берег Песочной

Строящийся дом

⭐ Строящийся дом БП-143 Один из домов, доступный к покупке в нашем жилом комплексе на стадии строительства, это просторный двухэтажный дом для большой семьи по проекту БП-143. Общая площадь дома составляет 211 кв. метров, возводится он на участке №164 площадью 6,05 сотки. Планировкой первого этажа предусмотрены: ✔️ просторная кухня-гостиная в центральной части дома; ✔️ две спальни с гардеробом в левой части дома. В правой части первого этажа находятся: ✔️ котельная; ✔️ санузел; ✔️ ванная. А входное крыльцо плавно переходит в террасу. Второй этаж дома состоит из: ✔️ 2 спален; ✔️ коридора; ✔️ санузла. Дом БП-143 возводится в комплектации «Тёплый контур»: ◼️ фундамент; ◼️ коробка дома из панелей БЭНПАН+; ◼️ утеплённая кровля; ◼️ утеплëнная входная дверь; ◼️ окна ПВХ; ◼️ отделка фасада. Также в стоимость строительства входят: ◼️ земельный участок; ◼️ забор по периметру участка; ◼️ парковочное место из брусчатки; ◼️ отмостка из брусчатки по периметру дома. Во время строительства в дом завод

Строящийся дом БП-143

Один из домов, доступный к покупке в нашем жилом комплексе на стадии строительства, это просторный двухэтажный дом для большой семьи по проекту БП-143.

Общая площадь дома составляет 211 кв. метров, возводится он на участке №164 площадью 6,05 сотки.

Планировкой первого этажа предусмотрены:

✔️ просторная кухня-гостиная в центральной части дома;

✔️ две спальни с гардеробом в левой части дома.

В правой части первого этажа находятся:

✔️ котельная;

✔️ санузел;

✔️ ванная.

А входное крыльцо плавно переходит в террасу.

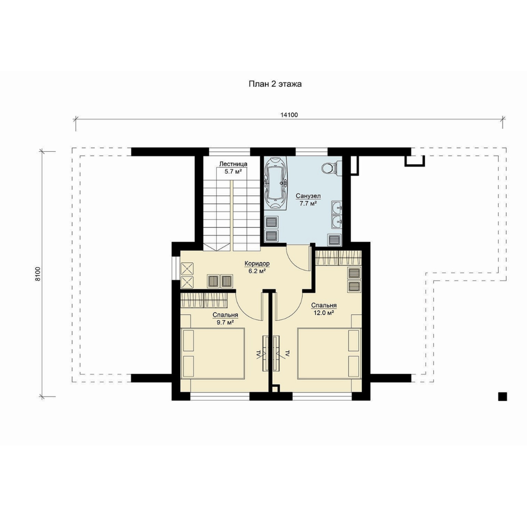
Второй этаж дома состоит из:

✔️ 2 спален;

✔️ коридора;

✔️ санузла.

Дом БП-143 возводится в комплектации «Тёплый контур»:

◼️ фундамент;

◼️ коробка дома из панелей БЭНПАН+;

◼️ утеплённая кровля;

◼️ утеплëнная входная дверь;

◼️ окна ПВХ;

◼️ отделка фасада.

Также в стоимость строительства входят:

◼️ земельный участок;

◼️ забор по периметру участка;

◼️ парковочное место из брусчатки;

◼️ отмостка из брусчатки по периметру дома.

Во время строительства в дом заводятся:

◼️ труба для водопровода с врезкой в магистраль;

◼️ канализационная труба;

◼️ электрический кабель (10 кВт);

◼️ оптоволоконный кабель высокоскоростного интернета.

❗ Газ проходит по границе участка.

💲 Оплата покупки доступна с использованием ипотеки, материнского капитала.

📌 ИЖС, круглогодичное проживание, прописка.

❓ Заинтересовал проект?

Пишите в Директ 📩 или звоните по телефону: 📞 +7 (495) 877-44-58

#проектдома #подмосковье #коттедж #загородныйдом #деревянныйдом #коттедж #посёлок #живитедома #частныйдом #свойдом #уютныйдом #уютныйдомик #стройкадома #москвадома #строительстводомов #строительстоподключ #строительстводома