Найти в Дзене

Стильный дуплекс с оригинальной геометрией и продуманной планировкой на 2 семьи

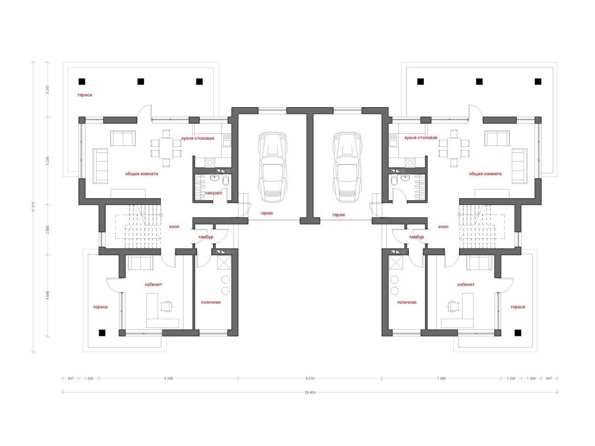
Стильный дуплекс «Дзерик Дуо» порадует ценителей авангардной архитектуры и прекрасно впишется в загородный пейзаж. ✔Это дом с яркой индивидуальностью и уникальной геометрией, не помещающийся в рамки приевшихся стандартов. Белоснежные стены с деревянными элементами, большие окна, террасы и балконы с колоннами создают неповторимый антураж. ✔Каждая семья, проживающая в этом дуплексе, получит не только эстетичный дом, но и функциональное комфортабельное жилье. Планировка Площадь дома - 364 кв.м.
Габариты - 17.3 x 29.4 м. Каждая секция этого дуплекса обособлена, между жилым пространством располагаются гаражи. ✔Планировка жилых помещений каждой секции имеет зеркальную симметрию: первый этаж каждой секции располагает кухней-столовой, совмещенной с гостиной, кабинет, санузел и топочную; а второй тремя спальнями и санузлом. Одна из спален оборудована индивидуальной гардеробной и санузлом. «Дзерик Дуо» — это светлые и просторные помещения с идеально продуманной планировкой. Чтобы узнать сто

Стильный дуплекс «Дзерик Дуо» порадует ценителей авангардной архитектуры и прекрасно впишется в загородный пейзаж.

✔Это дом с яркой индивидуальностью и уникальной геометрией, не помещающийся в рамки приевшихся стандартов. Белоснежные стены с деревянными элементами, большие окна, террасы и балконы с колоннами создают неповторимый антураж.

✔Каждая семья, проживающая в этом дуплексе, получит не только эстетичный дом, но и функциональное комфортабельное жилье.

Планировка

Площадь дома - 364 кв.м.
Габариты - 17.3 x 29.4 м.

Каждая секция этого дуплекса обособлена, между жилым пространством располагаются гаражи.

✔Планировка жилых помещений каждой секции имеет зеркальную симметрию: первый этаж каждой секции располагает кухней-столовой, совмещенной с гостиной, кабинет, санузел и топочную; а второй тремя спальнями и санузлом. Одна из спален оборудована индивидуальной гардеробной и санузлом.

«Дзерик Дуо» — это светлые и просторные помещения с идеально продуманной планировкой.

Чтобы узнать стоимость проекта и строительства дома, а также более подробные его характеристики проходите по ссылке => «Дзерик Дуо». Оставляйте заявку или связывайтесь с нашими менеджерами.

✔Смотрите другие проекты дуплексов. Напоминаем, что наши специалисты готовы разработать проект с нуля, исходя исключительно из Ваших пожеланий. Можете ни в чем себя не ограничивать!

⭐Мы возьмем на себя закупку и доставку, оснащение строительной площадки и само строительство «под ключ». Мы подарим Вам дом, о котором Вы всегда мечтали и который прослужит не одному поколению вашей семьи!

☎ Позвоните нам для консультации: 8-965-199-61-04

________

С уважением, строительная компания «Stone Wood House»

#проектдома #проектирование #коттедж #строимдом #строительствоиремонт #ремонт #недвижимость #строительство #загороднаянедвижимость #проекты загородного дома #проект частный дом #загородные дома проекты #проектдома #двухэтажный дом #проектдвухэтажногодома #резиденция #коттедж #архитектор #дизайн #загородныйдом #дуплекс #дом на 2 семьи #проект дуплекса