Найти в Дзене
Берег Песочной

Двухэтажный дом МС-164

Двухэтажный дом с эркером, террасой и двумя балконами – это дом по проекту МС-164. 📌 Площадь дома 138,5 кв. метра 📌 4 комнаты 📌 3 санузла Дом рассчитан на семью из 3-6 человек и имеет удобную планировку. На первом этаже находятся: ✔️ общее пространство гостиной и столовой; ✔️ кухня; ✔️ постирочная; ✔️ санузел; ✔️ холл с выходом на террасу. На втором этаже предусмотрены: ✔️ 3 спальни; ✔️ 2 санузла; ✔️ холл. В спальнях, расположенных по бокам, есть отдельные выходы на балконы. Также в доме есть цокольный этаж, где расположены: ✔️ кладовая; ✔️ сауна. При желании заказчика в планировку дома могут быть внесены изменения: ◼️ разделение гостиной и столовой; ◼️ объединение спален на втором этаже; ◼️ вместо постирочной можно обустроить бойлерную. Строительство дома по проекту МС-164 доступно в комплектации «Тёплый контур»: ◼️ фундамент; ◼️ коробка дома из панелей БЭНПАН+; ◼️ утеплённая кровля; ◼️ окна ПВХ; ◼️ металлический каркас лестницы; ◼️ отделка фасада; ◼️ заведенные в дом коммуникации.

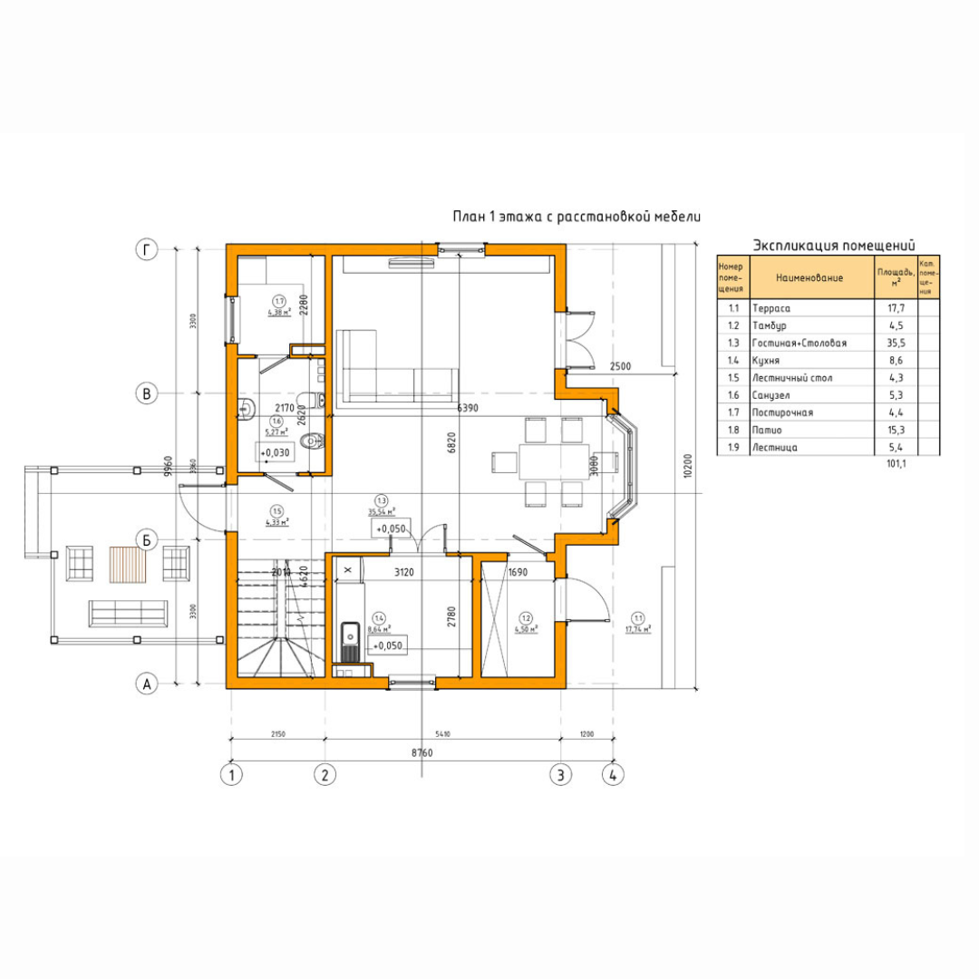
Двухэтажный дом с эркером, террасой и двумя балконами – это дом по проекту МС-164.

📌 Площадь дома 138,5 кв. метра

📌 4 комнаты

📌 3 санузла

Дом рассчитан на семью из 3-6 человек и имеет удобную планировку.

На первом этаже находятся:

✔️ общее пространство гостиной и столовой;

✔️ кухня;

✔️ постирочная;

✔️ санузел;

✔️ холл с выходом на террасу.

На втором этаже предусмотрены:

✔️ 3 спальни;

✔️ 2 санузла;

✔️ холл.

В спальнях, расположенных по бокам, есть отдельные выходы на балконы.

Также в доме есть цокольный этаж, где расположены:

✔️ кладовая;

✔️ сауна.

При желании заказчика в планировку дома могут быть внесены изменения:

◼️ разделение гостиной и столовой;

◼️ объединение спален на втором этаже;

◼️ вместо постирочной можно обустроить бойлерную.

Строительство дома по проекту МС-164 доступно в комплектации «Тёплый контур»:

◼️ фундамент;

◼️ коробка дома из панелей БЭНПАН+;

◼️ утеплённая кровля;

◼️ окна ПВХ;

◼️ металлический каркас лестницы;

◼️ отделка фасада;

◼️ заведенные в дом коммуникации.

Также в стоимость строительства входят:

◼️ земельный участок;

◼️ забор по периметру участка;

◼️ парковочное место из брусчатки;

◼️ отмостка из брусчатки по периметру дома.

💲 Покупка доступна в ипотеку, с использованием средств маткапитала

❗ ИЖС, круглогодичное проживание, прописка

❓ Заинтересовал проект МС-164? Нужна консультация?

Пишите в Директ 📩 или звоните по телефону: 📞 +7 (495) 877-44-58

#проектдома #подмосковье #коттедж #загородныйдом #деревянныйдом #коттедж #посёлок #живитедома #частныйдом #свойдом #уютныйдом #уютныйдомик #стройкадома #москвадома #строительстводомов #строительстоподключ #строительстводома