Добавить в корзинуПозвонить
Найти в Дзене
Стиль вашего дома

Стильная евротрешка с двумя спальнями

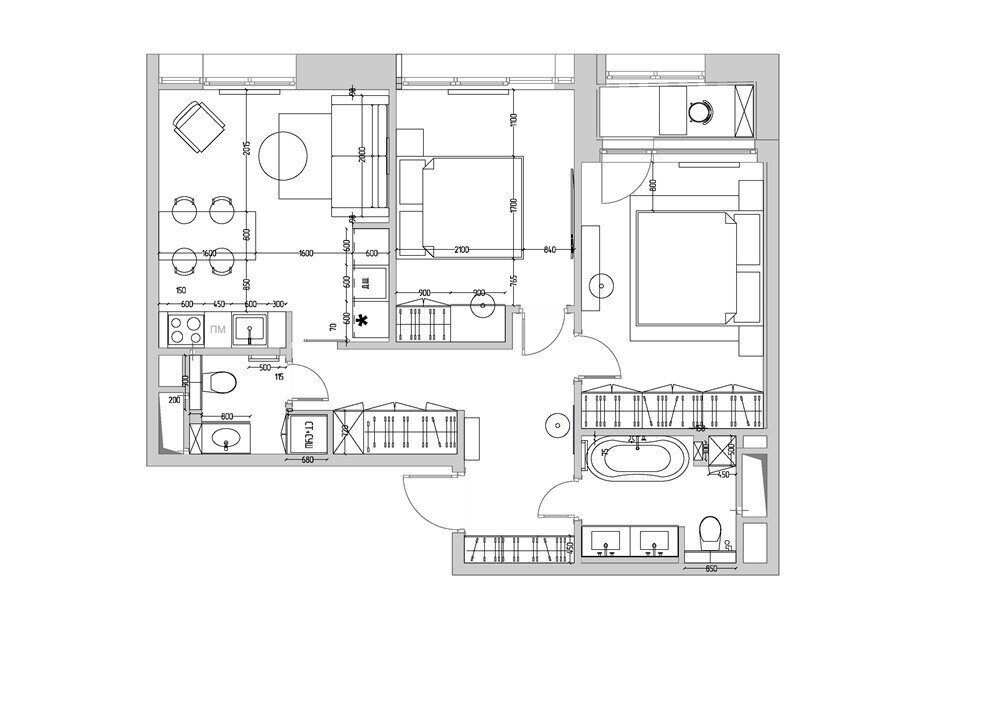
Стильная евротрешка с двумя спальнями Работу над проектом начали с перепланировки: ванную расширили за счет прихожей, а в гостевом санузле оборудовали нишу под стиральную машину. Вместо гостиной сделали вторую спальню для мужа, переместив зону гостиной в кухню. Особенностью проекта являются две отдельные спальни для каждого из супругов: темно-зеленая с хрустальной люстрой — для жены, сине-голубая — для мужа, чтобы у каждого было личное пространство для отдыха Метраж: 63 кв. м. Комнат: 3

Стильная евротрешка с двумя спальнями

-2

-3

-4

-5

-6

-7

-8

-9

-10

Работу над проектом начали с перепланировки: ванную расширили за счет прихожей, а в гостевом санузле оборудовали нишу под стиральную машину. Вместо гостиной сделали вторую спальню для мужа, переместив зону гостиной в кухню. Особенностью проекта являются две отдельные спальни для каждого из супругов: темно-зеленая с хрустальной люстрой — для жены, сине-голубая — для мужа, чтобы у каждого было личное пространство для отдыха

Метраж: 63 кв. м.

Комнат: 3