Добавить в корзинуПозвонить
Найти в Дзене

Проект дома с мансардой 137 м2 с четырьмя спальнями!

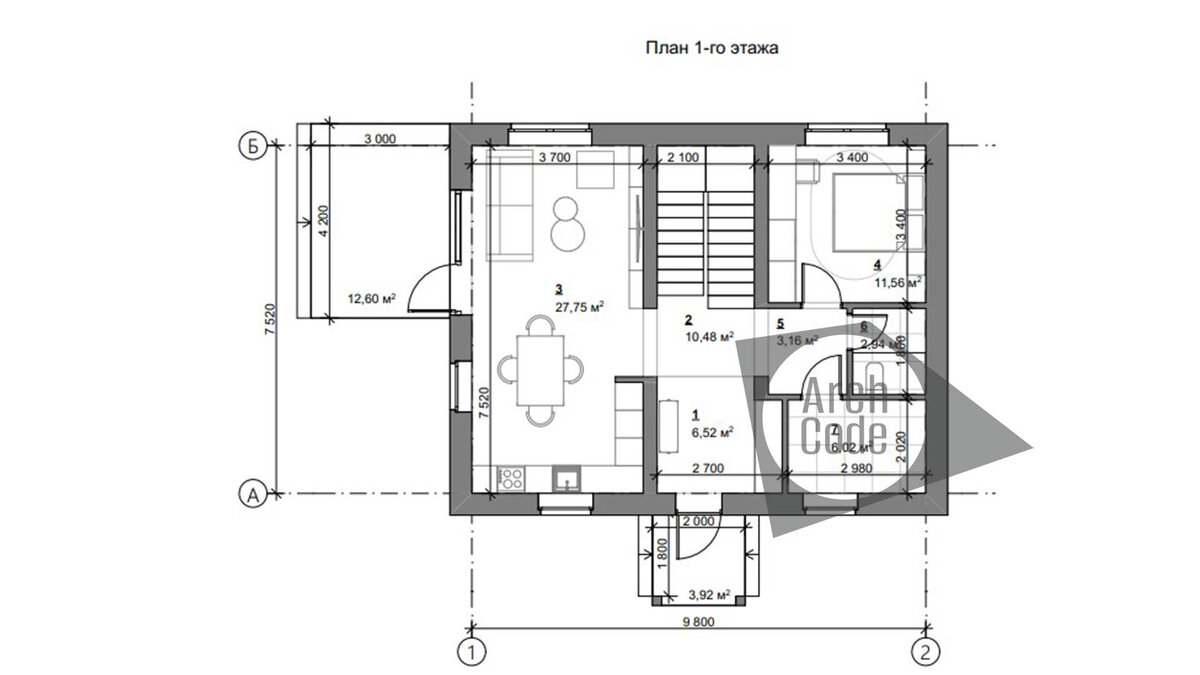
Сегодня мы рассказываем о проекте загородного дома «Мимоза», который обязательно понравится всем, кто мечтает о комфортабельной жизни за городом. Этот небольшой двухэтажный дом площадью 137,38 м2 обладает светлым и весенним дизайном, который обязательно украсит ваш земельный участок. В доме на первом этаже располагаются тамбур, холл, кухня-гостиная, комната, коридор, санузел и котельная. На втором этаже вы найдете три комнаты, холл, санузел, гардероб и коридор. Все комнаты в доме просторные, светлые и уютные, что создает особую атмосферу тепла и уюта.
Проект «Мимоза» - это не только красивый дом, но и возможность получить счастливую и спокойную жизнь на природе. Здесь вы сможете наслаждаться свежим воздухом, зелеными насаждениями и живописными пейзажами, которые окружают вашу новую жилую площадь.
Будьте уверены, что выбрав проект загородного дома «Мимоза», вы обеспечите себе и своей семье комфортное и уютное жилье, где вы сможете отдохнуть от городской суеты и наслаждаться жизнью на

Сегодня мы рассказываем о проекте загородного дома «Мимоза», который обязательно понравится всем, кто мечтает о комфортабельной жизни за городом. Этот небольшой двухэтажный дом площадью 137,38 м2 обладает светлым и весенним дизайном, который обязательно украсит ваш земельный участок.

В доме на первом этаже располагаются тамбур, холл, кухня-гостиная, комната, коридор, санузел и котельная. На втором этаже вы найдете три комнаты, холл, санузел, гардероб и коридор. Все комнаты в доме просторные, светлые и уютные, что создает особую атмосферу тепла и уюта.

Проект «Мимоза» - это не только красивый дом, но и возможность получить счастливую и спокойную жизнь на природе. Здесь вы сможете наслаждаться свежим воздухом, зелеными насаждениями и живописными пейзажами, которые окружают вашу новую жилую площадь.

Будьте уверены, что выбрав проект загородного дома «Мимоза», вы обеспечите себе и своей семье комфортное и уютное жилье, где вы сможете отдохнуть от городской суеты и наслаждаться жизнью на природе. Мы рекомендуем обратить внимание на этот замечательный проект и обязательно рассмотреть его как вариант для строительства вашего нового дома.


• Общая площадь - 137.38 м2
• Габариты - 7x9
• 4 комнаты
• 2 санузла
• Кухня-гостиная - 27.75 м2

Понравился проект? Заказать проект или выбрать подобный можно по телефону: +79323212510. Звоните или пишите. Заявки принимаются по вотцап, телеграмм. Готовы рассчитать для вас смету!

Как построить дом в Тюмени?

Как построить дом в Москве?

Готовые дома в Тюмени

Готовые дома в Москве

Земельные участки в Тюмени

Задать вопрос в ТГ

И подписывайтесь на наш канал, чтобы не пропустить новые интересные проекты.

#проектдома #домсмансардой #построитьдом #купитьдом