Добавить в корзинуПозвонить
Найти в Дзене

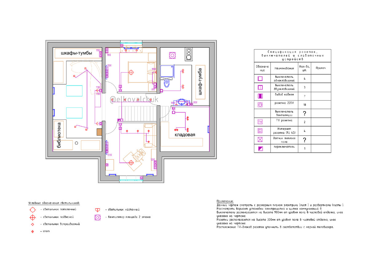
План электрики и слаботочки 2-го этажа с мансардой.

Предварительные поэтажные планы по электрике и слаботочке готовы. Это разводка на 2-ом этаже, по 1-му ссылка ниже. Не нравится мне несимметричность встроенных светильников в помещении с мансардными окнами, но на месте проверю что получится. Еще не уверена в применении спотов в кладовой, скорее всего надо будет подобрать встраиваемые светильники с поворотными механизмами. На наклонных стенах (мансардных) при небольшой высоте ничего не должно торчать. Опять произошли изменения в расстановке мебели в одной из комнат. Это еще раз подтверждает необходимость проработки на чертеже. Далее при подготовке разверток стен также произойдет корректировка. Проектирование интерьера - это множество взаимосвязанных этапов. Чем детальнее будет проработка, тем аккуратнее и комфортнее получится в итоге. Однако, далеко не всегда мы финансово готовы быстро реализовать задуманное от и до. Более того, творческим людям, к которым отношусь и я, моментально все наполнять даже не надо. Необходимо продумать кажды

Предварительные поэтажные планы по электрике и слаботочке готовы. Это разводка на 2-ом этаже, по 1-му ссылка ниже.

Не нравится мне несимметричность встроенных светильников в помещении с мансардными окнами, но на месте проверю что получится.

Еще не уверена в применении спотов в кладовой, скорее всего надо будет подобрать встраиваемые светильники с поворотными механизмами. На наклонных стенах (мансардных) при небольшой высоте ничего не должно торчать.

Опять произошли изменения в расстановке мебели в одной из комнат. Это еще раз подтверждает необходимость проработки на чертеже.

Далее при подготовке разверток стен также произойдет корректировка.

Проектирование интерьера - это множество взаимосвязанных этапов. Чем детальнее будет проработка, тем аккуратнее и комфортнее получится в итоге.

Однако, далеко не всегда мы финансово готовы быстро реализовать задуманное от и до.

Более того, творческим людям, к которым отношусь и я, моментально все наполнять даже не надо. Необходимо продумать каждый уголок, постараться представить жизнь в новом пространстве, желательно выбрать мебель. Сразу это сделать не получится при всем желании, тем более, когда речь идет о частном доме, в котором не было опыта проживания.

Тем не менее, на стадии разводки коммуникаций общее понимание о зонировании и наполнении должно быть.

Согласны? Сталкивались ли Вы с неудобствами после отделки в квартире или в доме?

Далее поделюсь с Вами размышлениями о выборе системы вентиляции в доме.

План разводки по 1-му этажу можно посмотреть здесь:

--------------------------------

Другие материалы по теме:

Строю дом на печи в Новосибирске и развиваю интернет-магазин товаров для дома и интерьера. Дипломы инженера-технолога и юриста помогают заниматься любимым делом.

Интернет-магазин "Манера Интерьера" в Telegram

Я в Telegram