Добавить в корзинуПозвонить
Найти в Дзене
Дом Мечты

Планировка двухэтажных домов из газоблоков – 8 классных идей для комфортного проживания

Приветствуем вас на канале «Дом Мечты Калуга!» Сегодня у нас продолжение темы планировок, но рассмотрим мы ее на примере двухэтажных зданий. На самом деле, двухэтажный дом из газоблоков – это существенная экономия площади на участке и стандартный вариант для семьи, в котором можно максимально «развернуться» и правильно задействовать все внутреннее пространство. Оставив место для творческих идей, ведь нет ничего лучше реализации мечты о мастерской или еще одной комнате отдыха, в которой находится большая библиотека или настоящий косметический салон в миниатюре. А быть может это будет еще одна детская комната со спортивным комплексом или настоящий тренажерный зал для взрослых, которые следят за своим здоровьем. В любом случае, планировка это серьезный аспект, которому нужно уделить самое пристальное внимание. Давайте рассмотрим нашу подборку из 8 самых универсальных и удобных вариантов планировки двухэтажных домов, в которых продумано все и даже больше. Представляем вам наш проект «Барс

Приветствуем вас на канале «Дом Мечты Калуга!»

Сегодня у нас продолжение темы планировок, но рассмотрим мы ее на примере двухэтажных зданий. На самом деле, двухэтажный дом из газоблоков – это существенная экономия площади на участке и стандартный вариант для семьи, в котором можно максимально «развернуться» и правильно задействовать все внутреннее пространство.

Оставив место для творческих идей, ведь нет ничего лучше реализации мечты о мастерской или еще одной комнате отдыха, в которой находится большая библиотека или настоящий косметический салон в миниатюре. А быть может это будет еще одна детская комната со спортивным комплексом или настоящий тренажерный зал для взрослых, которые следят за своим здоровьем. В любом случае, планировка это серьезный аспект, которому нужно уделить самое пристальное внимание.

Давайте рассмотрим нашу подборку из 8 самых универсальных и удобных вариантов планировки двухэтажных домов, в которых продумано все и даже больше.

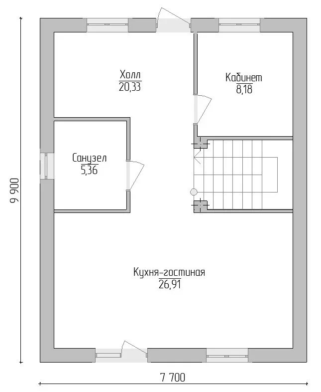
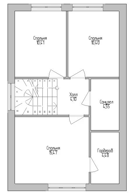
Представляем вам наш проект «Барселона». Это красивый и очень удобный по планировке дом из газобетонных блоков, построенный с учетом всех тонкостей и нюансов современного домостроения. В планировке дома были учтены все пожелания и идеи будущих домовладельцев. На первом этаже большая кухня-гостиная, гардеробная, кабинет, с/у и холл. На втором этаже удобное расположение трех спален, еще одного гардероба (прямо из самой большой спальни) и с/у. Также предусмотрен вариант более увеличенной кухни-гостиной и одной из спален на втором этаже. Как видите, это отличный вариант для размещения большой семьи.

Большая кухня-гостиная, где по вечерам может собираться вся семья в ожидании вкусного ужина – что может быть лучше? Но тогда нам нужна действительно большая кухня-гостиная. Ну что ж, для нашей компании «Дом Мечты» нет ничего невозможного, как в нашем проекте «Берлин», где максимально точно задействованы рабочее пространство и зона отдыха. На первом этаже кроме кухни-гостиной находится просторный кабинет, с/у и большой холл, в котором так приятно встречать гостей. На втором этаже три раздельные спальни, примерно равной квадратуры, с/у, холл и традиционная гардеробная вход в которую прямо из спальни.

Еще один наш проект под названием «Вегас», который мы по традиции начнем с описания первого этажа. Не секрет, что представление о большом пространстве у всех разное и вот однажды у нас появилась задача создать такую кухню-гостиную, чтобы не только удивить заказчика, но осуществить все творческие идеи и задумки. И как видите, у нас это вполне получилось.

На первом этаже расположена кухня-гостиная максимальной площади, где так удобно и готовить, и просто наслаждаться отдыхом в кругу семьи. Добавим к этому просторный с/у и удобный холл, в котором достаточно место для реализации любых дизайнерских задач. На втором этаже у нас кабинет, с/у и две большие спальни. А небольшое, но милое крыльцо стало той самой «изюминкой» дома.

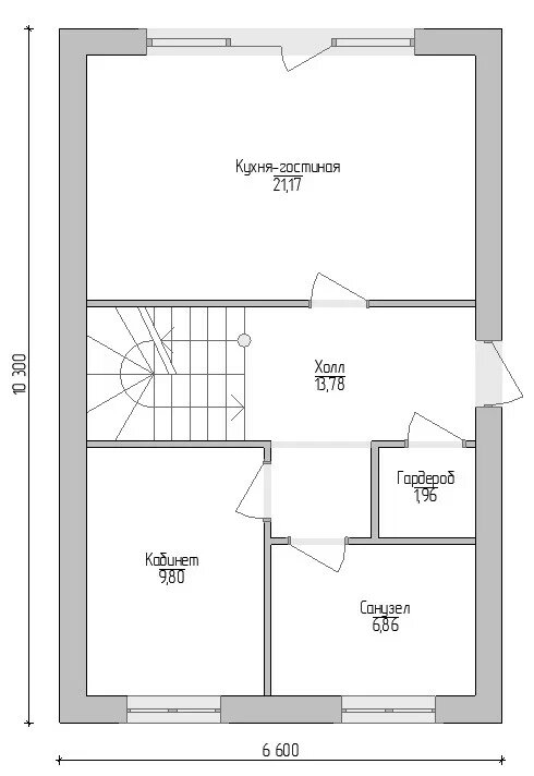
Вы заметили, что мы идем на увеличение площади кухни-гостиной? И проект «Калуга» не станет исключением. Но в этот раз на первом этаже у нас не только та самая кухня-гостиная, но и большой кабинет, и просторный гардероб, а также с/у и практичный холл. А в небольшом тамбуре достаточно места для того, чтобы не спеша войти и плавно перестроиться на полноценный отдых у себя дома. На втором этаже три спальни, с/у и удобный холл, где можно отлично «развернуться».

Мы любим творческие задачи и стараемся каждый наш проект воссоздать в том самом неповторимом виде. Наш проект «Лондон» как раз про это. Для вас мы даже подготовили пример планировки с расстановкой мебели (листайте вправо), ведь это так интересно, представлять готовый вариант. На первом этаже у нас кухня-гостиная и спальня, с/у, холл и максимально увеличенный тамбур. На втором этаже три большие спальни и изолированная гардеробная, а также с/у и просторный холл.

Большой дом с идеальной планировкой – это точно можно сказать про еще один наш проект под названием «Мадрид». На первом этаже расположен кабинет, кухня-гостиная, большой холл и просторный с/у. А небольшой тамбур отлично дополняет планировку первого этажа. На втором этаже у нас три спальни, с/у и холл – все, что нужно для уютного отдыха.

Просторная кухня-гостиная – это замечательно, ведь для кулинарных шедевров и отдыха нужно много места. Но иногда мы все-таки немного разделяем эти две зоны, чтобы придать каждой только свой неповторимый статус. А благодаря эркеру внутреннее пространство значительно увеличивается, впуская в дом как можно больше света. Как в нашем проекте «Монако», где на первом этаже кухня немного разделена с гостиной и кроме этого на первом этаже есть уютная спальня, холл, с/у, тамбур с выходом на аккуратное крыльцо. На втором этаже три спальни, с/у и холл – минимализм в действии, так популярный в последнее время.

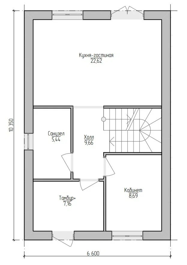
И еще один наш проект «Питер, « в котором мы учли все самые основные пожелания будущих домовладельцев. На первом этаже расположена кухня-гостиная, кабинет, холл и с/у – демократично и комфортно для проживания. На втором этаже - три спальни, оптимальный по площади с/у и холл. Дом немного напоминает сказочный домик, благодаря своей уникальной конструкции и очень надеемся, что и жизнь в нем будет напоминать сказку. Ну а мы, в компании «Дом Мечты», постараемся и далее осуществлять самые заветные желания наших заказчиков.

А в каком доме вы хотели бы жить?

Подписывайтесь на наш канал, чтобы не пропустить новые публикации!