Найти в Дзене
АО «ТАМАК»

Одноэтажный проект дома для 2-3 человек

Проект одноэтажного дома «Турин-48» отличается своей сдержанностью и лаконичностью. В нем легко разместится семья из двух человек. Дом отлично подходит для постоянного или сезонного проживания. Проект отличается эргономичной планировкой с минимальным использованием декоративных элементов в отделке дома. Отличительные особенности планировки — это вместительная спальня и кухня-гостиная. В доме есть два выхода на улицу: один ведет непосредственно на крыльцо, другой — к террасе общей площадью 11 квадратных метров. Также проектом предусмотрена небольшая кухня, за столом которой могут разместиться четыре человека, а также удобный санузел. Пространство объединяет небольшой холл. Внешняя отделка дома — это светлые тона с элементами кирпичной кладки. Крыльцо выполнено с использованием декоративных деревянных балок контрастного цвета. План дома: Характеристики проекта: Мы производим долговечные дома по каркасно-панельной технологии «Тhermomak Haus». Для конструкции дома используются экологичные

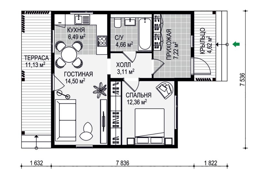
Проект одноэтажного дома «Турин-48» отличается своей сдержанностью и лаконичностью. В нем легко разместится семья из двух человек. Дом отлично подходит для постоянного или сезонного проживания. Проект отличается эргономичной планировкой с минимальным использованием декоративных элементов в отделке дома.

«Турин-48»
«Турин-48»

Отличительные особенности планировки — это вместительная спальня и кухня-гостиная. В доме есть два выхода на улицу: один ведет непосредственно на крыльцо, другой — к террасе общей площадью 11 квадратных метров. Также проектом предусмотрена небольшая кухня, за столом которой могут разместиться четыре человека, а также удобный санузел. Пространство объединяет небольшой холл.

Внешняя отделка дома — это светлые тона с элементами кирпичной кладки. Крыльцо выполнено с использованием декоративных деревянных балок контрастного цвета.

План дома:

План дома
План дома

Характеристики проекта:

  • Общая площадь: 64,09 м²
  • Площадь помещений: 48,34 м²
  • Площадь террас и балконов: 15,75 м²
  • Общая площадь 1 этажа: 64,09 м²
  • Спальни, шт.: 1
  • Санузлы, шт.: 1

Мы производим долговечные дома по каркасно-панельной технологии «Тhermomak Haus». Для конструкции дома используются экологичные и прочные монолитные цементно-стружечные плиты плотностью 1250-1400 кг/м³ собственного производства АО «ТАМАК». Каркас дома изготавливается из древесины поставляемой из экологически чистых регионов России - с севера европейской части, Урала и Сибири. Пиломатериал проходит строгий входящий контроль, автоматическую калибровку, сортировку и промышленную сушку. В готовых конструкциях пиломатериал не подвергается негативным воздействиям.

Телефон: 8(800)300-89-77

Наш сайт: https://www.tamak.ru/