Найти в Дзене

🔥 ТОП-5 проектов просторных двухэтажных домов из бруса для ПМЖ

Хотите большой и уютный дом? Сомневаетесь в выборе проекта? Этот пост вам в помощь. Делюсь подборкой самых популярных домов у наших клиентов) 1. Дом из бруса ПЕТР 10х11м Двухэтажный дом из бруса, с отдельной террасой и крыльцом. Общие размеры – 10х11м. Дом площадью 174 кв.м отлично подойдет для большой семьи. Планировка: Планировкой предусмотрено 9 комнат, 4 вспомогательных помещения и 2 просторных холла. Терраса 3,5х3,5м, с ограждением перилами и балясинами.
• Площадь: 174 м2
• Размер: 10х11 м
• Этажность: 2
• Оплата: Без предоплаты
• Доставка: Индивидуально
• Сроки стр-ва: 12-14 дней
Смотреть стоимость и комплектацию "ПЕТР" на сайте:
bagrovstroy.ru/doma-iz-brusa/petr 2. Дом из бруса РУСЛАН 8х10м Руслан — двухэтажный дом из бруса, размером 8х10м, с террасой и балконом. Стены 1-го и половина стены 2-го этажей выполняются из профилированного бруса, крыша утепляется. Планировка: Схема «дом в 1,5 этажа брусом» позволяет сделать комнаты 2-го этажа таких же габаритных размеров, как и на п
Оглавление

Хотите большой и уютный дом? Сомневаетесь в выборе проекта? Этот пост вам в помощь.

Делюсь подборкой самых популярных домов у наших клиентов)

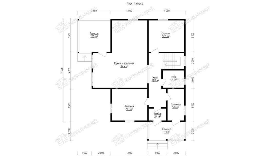
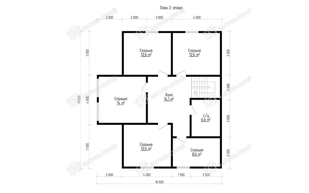
1. Дом из бруса ПЕТР 10х11м

Двухэтажный дом из бруса, с отдельной террасой и крыльцом. Общие размеры – 10х11м. Дом площадью 174 кв.м отлично подойдет для большой семьи.

Планировка:

Планировкой предусмотрено 9 комнат, 4 вспомогательных помещения и 2 просторных холла. Терраса 3,5х3,5м, с ограждением перилами и балясинами.

• Площадь: 174 м2
• Размер: 10х11 м
• Этажность: 2
• Оплата: Без предоплаты
• Доставка: Индивидуально
• Сроки стр-ва: 12-14 дней

Смотреть стоимость и комплектацию "ПЕТР" на сайте:
bagrovstroy.ru/doma-iz-brusa/petr

2. Дом из бруса РУСЛАН 8х10м

Руслан — двухэтажный дом из бруса, размером 8х10м, с террасой и балконом. Стены 1-го и половина стены 2-го этажей выполняются из профилированного бруса, крыша утепляется.

Планировка:

Схема «дом в 1,5 этажа брусом» позволяет сделать комнаты 2-го этажа таких же габаритных размеров, как и на первом этаже дома. Терраса 2х5,5м, и балкон — с ограждением, и ступени при входе в дом.

• Площадь: 148 м2
• Размер: 8х10 м
• Этажность: 2
• Оплата: Без предоплаты
• Доставка: Индивидуально
• Сроки стр-ва: 12-14 дней

Смотреть стоимость и комплектацию дома "РУСЛАН" на сайте:
bagrovstroy.ru/doma-iz-brusa/ruslan

3. Дом из бруса ВОЛОДАР 6х8м

Володар – двухэтажный дом из бруса, размером 6х8м, с террасой. Стены 1-го и половина стены 2-го этажей выполняются из профилированного бруса, стропильная система и крыша – каркас с утеплением. Схема «дом в 1,5 этажа брусом» позволяет сделать комнаты 2-го этажа таких же габаритных размеров, как и на первом этаже дома.

Планировка:

• Площадь: 78 м2
• Размер: 6х8 м
• Этажность: 2
• Оплата: Без предоплаты
• Доставка: Индивидуально
• Сроки стр-ва: 12-14 дней

Смотреть стоимость и комплектацию дома "ВОЛОДАР" на сайте:
bagrovstroy.ru/doma-iz-brusa/volodar

4. Дом из бруса КОРНИЛ 7,5х10,5м

Корнил – дом из бруса, размером 7,5х10,5м, с просторной террасой, под общей крышей. Стены 1-го и половина стены 2-го этажей выполняются из профилированного бруса, стропильная система и крыша – каркас с утеплением.

Планировка:

Планировка дома предусматривает просторную гостиную, 4 отдельных спальни, помещение под котельную, и второй вход в дом с террасы.

• Площадь: 130 м2
• Размер: 7.5х10.5 м
• Этажность: 2
• Оплата: Без предоплаты
• Доставка: Индивидуально
• Сроки стр-ва: 12-14 дней

Смотреть стоимость и комплектацию дома "КОРНИЛ" на сайте:
bagrovstroy.ru/doma-iz-brusa/kornil

5. Дом из бруса РУДОЛЬФ 8х10м

Рудольф — двухэтажный дом из бруса, размером 8х10м, с террасой, балконом и крыльцом. Стены 1-го и половина стены 2-го этажей выполняются из профилированного бруса, крыша утепляется. Схема «дом в 1,5 этажа брусом» позволяет сделать комнаты 2-го этажа таких же габаритных размеров, как и на первом этаже дома.

Планировка:

Проектом предусмотрены просторные гостиная комната и кухня, 4 спальни, 2 санузла, помещение под котельную, терраса и балкон 1,5х5м, крыльцо со вторым входом в дом.

• Площадь: 160 м2
• Размер: 8x10 м
• Этажность: 2
• Оплата: Без предоплаты
• Доставка: Индивидуально
• Сроки стр-ва: 12-14 дней

Смотреть стоимость и комплектацию дома "РУДОЛЬФ" на сайте:
bagrovstroy.ru/doma-iz-brusa/rudolf

__________________________

📍 Наши контакты:

• Сайт: bagrovstroy.ru
• Группа VK:
vk.com/bagrovstroy