Добавить в корзинуПозвонить
Найти в Дзене
АО «ТАМАК»

Проект двухэтажного дома с гаражом и балконом

Фундаментальность, вместительность и простая форма в плане – так можно охарактеризовать проект двухэтажного дома «Зальцбург-157». Его лаконичный дизайн и абсолютный комфорт подойдет для проживания супружеской пары с детьми или без них. В доме предусмотрен классический для европейских домов вариант планировки. Первый этаж дома оборудован для приема гостей, повседневных нужд и теплых семейных вечеров. Там находится огромная гостиная с выделенной кухонной зоной общей площадью 36 квадратных метров. Рядом с гостиной прихожая с выходом на крыльцо, через нее же можно попасть и в крытый гараж . Задняя дверь гаража ведет в техническое помещение. На первом этаже проектом также предусмотрен небольшой санузел и гардеробная. Второй этаж предназначен для отдыха, творчества и релаксации. В вашем распоряжении две автономные спальни и уютный рабочий кабинет с балконом. На этаже также есть полноценная ванная комната. Фасад выдержан в аскетичном, лаконичном стиле, присущем австрийской архитектуре. Дек

Фундаментальность, вместительность и простая форма в плане – так можно охарактеризовать проект двухэтажного дома «Зальцбург-157». Его лаконичный дизайн и абсолютный комфорт подойдет для проживания супружеской пары с детьми или без них.

«Зальцбург-157»
«Зальцбург-157»

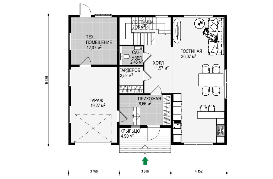
В доме предусмотрен классический для европейских домов вариант планировки. Первый этаж дома оборудован для приема гостей, повседневных нужд и теплых семейных вечеров. Там находится огромная гостиная с выделенной кухонной зоной общей площадью 36 квадратных метров. Рядом с гостиной прихожая с выходом на крыльцо, через нее же можно попасть и в крытый гараж . Задняя дверь гаража ведет в техническое помещение. На первом этаже проектом также предусмотрен небольшой санузел и гардеробная. Второй этаж предназначен для отдыха, творчества и релаксации. В вашем распоряжении две автономные спальни и уютный рабочий кабинет с балконом. На этаже также есть полноценная ванная комната.

Фасад выдержан в аскетичном, лаконичном стиле, присущем австрийской архитектуре. Декоративные элементы в нем играют конструктивную роль и органично дополняют внешний вид.

План 1 этажа:

-2

План 2 этажа:

-3

Характеристики проекта:

  • Общая площадь: 166,32 м²
  • Площадь помещений: 156,52 м²
  • Площадь террас и балконов: 9,8 м²
  • Общая площадь 1 этажа: 101,88 м²
  • Общая площадь 2 этажа: 64,44 м²
  • Спальни, шт.: 2
  • Санузлы, шт.: 2
  • Техническое помещение: да
  • Гардероб: да
  • Гараж: да

Мы производим долговечные дома по каркасно-панельной технологии «Тhermomak Haus». Для конструкции дома используются экологичные и прочные монолитные цементно-стружечные плиты плотностью 1250-1400 кг/м³ собственного производства АО «ТАМАК». Каркас дома изготавливается из древесины поставляемой из экологически чистых регионов России - с севера европейской части, Урала и Сибири. Пиломатериал проходит строгий входящий контроль, автоматическую калибровку, сортировку и промышленную сушку. В готовых конструкциях пиломатериал не подвергается негативным воздействиям.

Телефон: 8(800)300-89-77

Наш сайт: https://www.tamak.ru/