Добавить в корзинуПозвонить
Найти в Дзене
ЭТО ВАШ ИНТЕРЬЕР

Девушка показала свою "однушку" площадью 36 кв. м, в которой сделала ремонт за 1,5 млн. рублей

После покупки данной квартиры в северной столице, хозяйка решила сразу затеять в ней ремонт, так как прежняя отделка оставляла желать лучшего. Да и стандартная планировка её не совсем устраивала. Весь ремонт она доверила профессиональному дизайнеру. Проект Кухня Цветовая палитра всей квартиры светлая. Стены покрасили в светлый оттенок, а на полу уложили плитку с орнаментом. У стены появился угловой гарнитур, фасады которого выполнены в двух оттенках. Фартук выложен классической белой плиткой. Слева от окна находится обеденный стол. Гостиная Распашные двери на кухне ведут в гостиную. На полу уложен ламинат. Напротив входа расположился угловой диван, который легко можно превратить в дополнительное спальное место. Ближе к окну организовали рабочее место для хозяйки. Спальня Спальню зонировали стеклянной перегородкой, чтобы туда проходил естественный свет. Стену за кроватью сделали акцентной и оклеили её обоями с растительным узором. Так же здесь удалось найти место для компактной гардер
Оглавление

После покупки данной квартиры в северной столице, хозяйка решила сразу затеять в ней ремонт, так как прежняя отделка оставляла желать лучшего. Да и стандартная планировка её не совсем устраивала. Весь ремонт она доверила профессиональному дизайнеру.

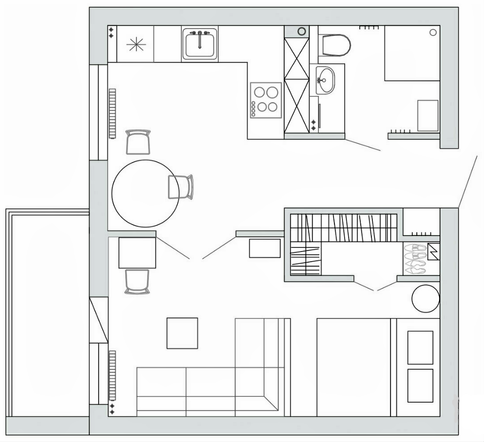
Проект

  • Местонахождение: г. Санкт-Петербург
  • Площадь квартиры: 36 кв. м
  • Владельцы: девушка
  • Бюджет: 1,5 млн руб.

Кухня

Цветовая палитра всей квартиры светлая. Стены покрасили в светлый оттенок, а на полу уложили плитку с орнаментом. У стены появился угловой гарнитур, фасады которого выполнены в двух оттенках. Фартук выложен классической белой плиткой. Слева от окна находится обеденный стол.

Гостиная

Распашные двери на кухне ведут в гостиную. На полу уложен ламинат. Напротив входа расположился угловой диван, который легко можно превратить в дополнительное спальное место. Ближе к окну организовали рабочее место для хозяйки.

Спальня

Спальню зонировали стеклянной перегородкой, чтобы туда проходил естественный свет. Стену за кроватью сделали акцентной и оклеили её обоями с растительным узором. Так же здесь удалось найти место для компактной гардеробной.

Санузел

Ванная комната облицована двумя видами плитки. В углу появилась душевая кабина. Под столешницей установили стиральную машину.

Если вам понравилась статья, то не забудьте поставить лайк и подписаться, чтобы не пропустить новый материал!

Так же пишите в комментариях, что вам понравилось в этом проекте, а что вызывает сомнения.

Если вам будет интересно, то заходите на мой второй новый канал)