Добавить в корзинуПозвонить
Найти в Дзене
Проекты Коттеджей

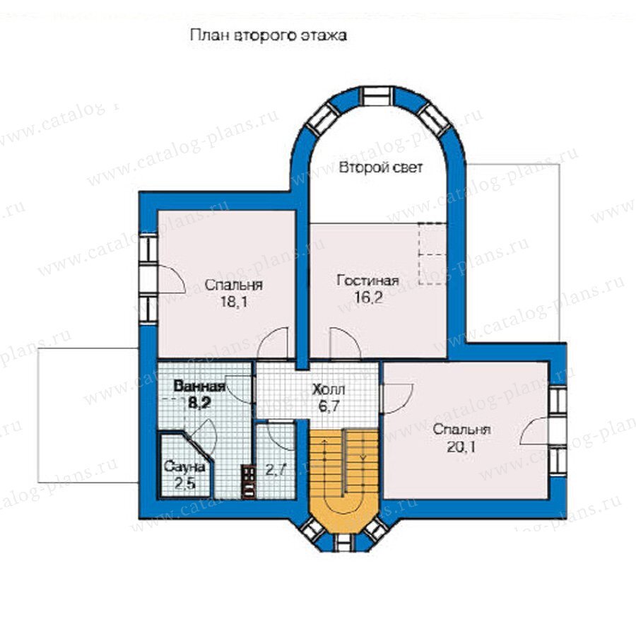
49-10 - Проект двухэтажного дома с вторым светом и небольшим зимним садом. Две спальни и кабинет. Общая площадь 182м².

Общая площадь: 182 м² Габариты: 14.1x9 м Наружные стены: кирпич/газобетон Фундамент: монолитная ж/б плита Перекрытия: сборные ж/б Крыша: мансардная Кровля: битумная черепица Наружная отделка: лицевой кирпич Цоколь: нет Архитектурный стиль: модерн Подробнее о проекте:
https://catalog-plans.ru/catalog/49-10

Общая площадь: 182 м²

Габариты: 14.1x9 м

Наружные стены: кирпич/газобетон

Фундамент: монолитная ж/б плита

Перекрытия: сборные ж/б

Крыша: мансардная

Кровля: битумная черепица

Наружная отделка: лицевой кирпич

Цоколь: нет

Архитектурный стиль: модерн

Подробнее о проекте:
https://catalog-plans.ru/catalog/49-10