Найти в Дзене

Спальня-гостиная 20кв.м. Стоимость проекта 6000.-

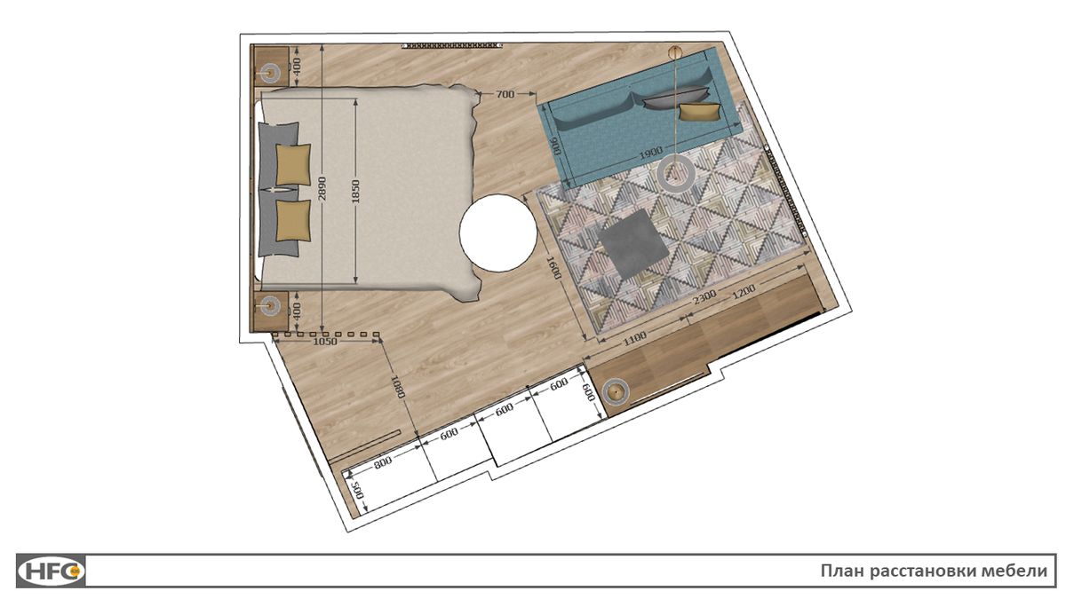
Комната сложной формы - гостиная для семьи из трёх человек и родительская спальня. Мебели много, расставляем плотно, поэтому визуально объединяем то, что можно объединить, стремясь к лаконичности. Стена с уступом не мешает поставить шкафы разной глубины в один ряд. для выравнивания фасадной линии шкафов используем закладные бруски. Идея реечного простенка у входа принадлежит хозяйке дома. Так мы направляем внимание от входа в сторону гостиной зоны. Изголовье кровати - настенная панель во всю ширину стены, если поставить матрас на ножках/ спрингбокс. Если кровать с подъёмным механизмом, то велика вероятность, что у неё будет своё изголовье. Тумбу под тв накрываем столешницей, чтобы получить рабочее место/туалетный столик. Акцент со светом делаем на гостиную часть комнаты. Торшер, подсветка у зеркала, бра у кровати. Общий потолочный свет - максимально плоский, не притягивающий внимание. Приятного обустройства вам, Екатерина!

Комната сложной формы - гостиная для семьи из трёх человек и родительская спальня. Мебели много, расставляем плотно, поэтому визуально объединяем то, что можно объединить, стремясь к лаконичности.

Стена с уступом не мешает поставить шкафы разной глубины в один ряд. для выравнивания фасадной линии шкафов используем закладные бруски. Идея реечного простенка у входа принадлежит хозяйке дома. Так мы направляем внимание от входа в сторону гостиной зоны.

Изголовье кровати - настенная панель во всю ширину стены, если поставить матрас на ножках/ спрингбокс. Если кровать с подъёмным механизмом, то велика вероятность, что у неё будет своё изголовье. Тумбу под тв накрываем столешницей, чтобы получить рабочее место/туалетный столик.

Акцент со светом делаем на гостиную часть комнаты. Торшер, подсветка у зеркала, бра у кровати. Общий потолочный свет - максимально плоский, не притягивающий внимание.

-5

Приятного обустройства вам, Екатерина!