Найти в Дзене

Проект двухэтажного дома 786 м2 в стиле барокко с цокольным этажом, сауной и двухместным гаражом - PA-14

Прекрасный особняк в стиле барокко, имеющий три уровня (два этажа + цоколь) и довольно большую площадь. Участок для такого дома потребуется просторный, но необязательно идеальной формы — допустима вытянутая конфигурация, поскольку в габаритах здания длина превышает ширину. Проект подходит для семьи из пяти человек. Особенности проекта: гостиная, столовая, кухня, кабинет, кинотеатр, 5 спален, 7 санузлов, 3 гардеробные, гараж (3 авто), крытая терраса, сауна, тренажерный зал, эркеры, камин, 2 балкона. Технические характеристики Дизайн Проектом предусмотрена каменная облицовка дома. На приведенном фото показан пример с использованием облицовочного кирпича, что также выглядит очень достойно. На фасадах предусмотрено множество декоративных элементов и арочных, округлых форм. Весь декор выполнен в белом цвете. Высота цоколя позволяет оснастить его окнами в надземной части. Входная группа представлена большим полукруглым крыльцом с арочным порталом. Над порталом балкон, а венчае
Оглавление
Проект двухэтажного дома 786 м2 в стиле барокко с цокольным этажом, сауной и двухместным гаражом - PA-14
Проект двухэтажного дома 786 м2 в стиле барокко с цокольным этажом, сауной и двухместным гаражом - PA-14

Прекрасный особняк в стиле барокко, имеющий три уровня (два этажа + цоколь) и довольно большую площадь. Участок для такого дома потребуется просторный, но необязательно идеальной формы — допустима вытянутая конфигурация, поскольку в габаритах здания длина превышает ширину. Проект подходит для семьи из пяти человек.

Особенности проекта: гостиная, столовая, кухня, кабинет, кинотеатр, 5 спален, 7 санузлов, 3 гардеробные, гараж (3 авто), крытая терраса, сауна, тренажерный зал, эркеры, камин, 2 балкона.

Проект двухэтажного дома 786 м2 в стиле барокко с цокольным этажом, сауной и двухместным гаражом - PA-14
Проект двухэтажного дома 786 м2 в стиле барокко с цокольным этажом, сауной и двухместным гаражом - PA-14
Проект двухэтажного дома 786 м2 в стиле барокко с цокольным этажом, сауной и двухместным гаражом - PA-14
Проект двухэтажного дома 786 м2 в стиле барокко с цокольным этажом, сауной и двухместным гаражом - PA-14
Проект двухэтажного дома 786 м2 в стиле барокко с цокольным этажом, сауной и двухместным гаражом - PA-14
Проект двухэтажного дома 786 м2 в стиле барокко с цокольным этажом, сауной и двухместным гаражом - PA-14

Технические характеристики

  • Общая площадь 786,2 м2;
  • Габариты 25.20×17.97 м;
  • Фундамент — монолитная плита;
  • Материал стен — кирпич с утеплителем;
  • Перекрытия — сборные ж/б плиты;
  • Крыша — мансардная;
  • Кровля — мягкая или металлочерепица;
  • Фасад — натуральный (искусственный) камень.

Дизайн

Проектом предусмотрена каменная облицовка дома. На приведенном фото показан пример с использованием облицовочного кирпича, что также выглядит очень достойно. На фасадах предусмотрено множество декоративных элементов и арочных, округлых форм. Весь декор выполнен в белом цвете. Высота цоколя позволяет оснастить его окнами в надземной части. Входная группа представлена большим полукруглым крыльцом с арочным порталом. Над порталом балкон, а венчает композицию главного фасада арочный фронтон. Также отметим наличие двух эркеров и углубленную нишу, занятую террасой и балконом.

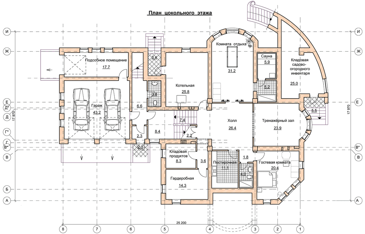
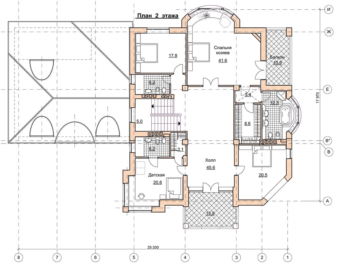
Планировка

Проект двухэтажного дома 786 м2 в стиле барокко с цокольным этажом, сауной и двухместным гаражом - PA-14
Проект двухэтажного дома 786 м2 в стиле барокко с цокольным этажом, сауной и двухместным гаражом - PA-14

В цоколе расположены: двухместный гараж с подсобкой, сауна с комнатой отдыха, тренажерный зал и гостевая спальня. А также хоз.службы: котельная, гардеробная, постирочная, кладовые для продуктов и садово-огородного инвентаря.

Проект двухэтажного дома 786 м2 в стиле барокко с цокольным этажом, сауной и двухместным гаражом - PA-14
Проект двухэтажного дома 786 м2 в стиле барокко с цокольным этажом, сауной и двухместным гаражом - PA-14

На первом этаже: эркерная гостиная с камином, столовая, кухня, кинотеатр, кабинет, холл и вестибюль. Выход на террасу — из гостиной и столовой. В надстройке над гаражом расположена жилая зона из двух спален, кухни, холла и санузла; здесь может проживать работающий в доме персонал.

Проект двухэтажного дома 786 м2 в стиле барокко с цокольным этажом, сауной и двухместным гаражом - PA-14
Проект двухэтажного дома 786 м2 в стиле барокко с цокольным этажом, сауной и двухместным гаражом - PA-14

На втором этаже: мастер-спальня, детская с санузлом и гардеробной, и две комнаты с общим санузлом. Из просторного холла 45,6 м2 можно выйти на балкон над входом.

Проект двухэтажного дома 786 м2 в стиле барокко с цокольным этажом, сауной и двухместным гаражом - PA-14
Проект двухэтажного дома 786 м2 в стиле барокко с цокольным этажом, сауной и двухместным гаражом - PA-14

Все подробности проекта PA-14 можно уточнить по телефону +7 (495) 175-30-40 с 09:00 до 19:00 по Москве. Бесплатный звонок по России — 8 (800) 350-03-23. Для приобретения проекта оставьте заявку на сайте.

Проект узкого двухэтажного дома из кирпича в стиле барокко с цокольным этажом, сауной и двухместным гаражом - PA-14

Подписывайтесь на канал, ставьте лайки.