Добавить в корзинуПозвонить
Найти в Дзене

Маленькая квартира, скрытые возможности: как организовать пространство, чтобы жить комфортно в 24 м2

Студия - это однокомнатная квартира, в которой комната и кухня находятся в одном пространстве, плюс минимальная прихожая или даже без нее. Сделать так, чтобы в такой квартире жилось комфортно и приятно - непростая задача. Основная проблема - маленькое пространство, но нужно разместить много вещей. Как обычно бывает? Заказчик получает крошечную квартиру и думает: "Что из нее можно сделать? Куплю диван, шкаф, стол и холодильник - и это все, что в ТУТ поместится. Больше ничего". Что делать? Расстроиться и жить в такой квартире, как есть? Или... Пригласить дизайнера и превратить 24 квадратных метра в функциональное помещение. Как именно? Дано: Студия 24,89 квадратных метров в ЖК "Ligovsky City" г. Санкт-Петербург. Клиент: Никита, 22 года, студент. Предпочитает брутальный интерьер с мужским характером. Пожелания: Цветовая гамма: темно-коричневый, серый, темно-оранжевый, цвет ржавчины, смурый, кофейный. Для максимальной функциональности студии было решено разделить ее на несколько зон: И все

Студия - это однокомнатная квартира, в которой комната и кухня находятся в одном пространстве, плюс минимальная прихожая или даже без нее.

Сделать так, чтобы в такой квартире жилось комфортно и приятно - непростая задача. Основная проблема - маленькое пространство, но нужно разместить много вещей.

Как обычно бывает? Заказчик получает крошечную квартиру и думает: "Что из нее можно сделать? Куплю диван, шкаф, стол и холодильник - и это все, что в ТУТ поместится. Больше ничего".

Что делать? Расстроиться и жить в такой квартире, как есть? Или...

Пригласить дизайнера и превратить 24 квадратных метра в функциональное помещение.

Как именно?

  1. Грамотное зонирование
  2. Правильная меблировка
  3. Визуальные приемы
  4. "Хитрости дизайна"

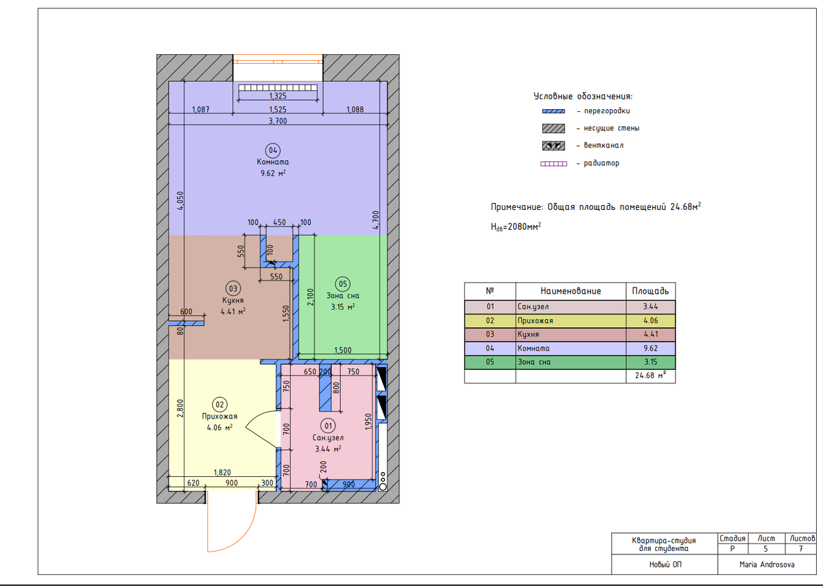
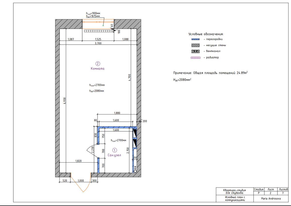
Дано: Студия 24,89 квадратных метров в ЖК "Ligovsky City" г. Санкт-Петербург.

Исходный план - студия 24,89 м2
Исходный план - студия 24,89 м2

Клиент:

Никита, 22 года, студент. Предпочитает брутальный интерьер с мужским характером. Пожелания:

  1. Иногда готовит дома. Нужна небольшая кухня с варочной поверхностью на две конфорки и посудомоечной машиной, без духового шкафа.
  2. Спальное место может быть диваном или кроватью. Ценит удобство.
  3. В свободное время предпочитает проводить время с друзьями, смотреть футбол и играть в приставку. Нужен большой телевизор.
  4. Общее пространство должно быть функциональным и иметь свои зоны, меньше открытых полок.

Цветовая гамма: темно-коричневый, серый, темно-оранжевый, цвет ржавчины, смурый, кофейный.

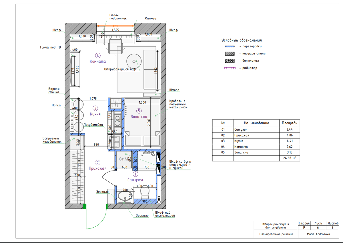
Для максимальной функциональности студии было решено разделить ее на несколько зон:

  1. Зона входа
  2. Зона досуга
  3. Зона приема гостей
  4. Зона сборов
  5. Зона учебы
  6. Зона стирки и глажки
  7. Зона сна
  8. Зона приготовления и приема пищи
  9. Максимально возможная зона хранения.

И все это должно уместиться в 24,89 кв.м.

Что получилось:

Мы начали с создания зоны входа, где мы разместили встроенные шкафы для верхней одежды и обуви, чтобы избежать скопления вещей в других частях квартиры. Последнее - встроенный холодильник.

Ниже представлена визуализация проекта.

Кухня-ниша была выполнена в темных тонах, что подчеркивает стиль брутального интерьера, предпочитаемый клиентом. На небольшом пространстве были установлены варочная поверхность на две конфорки и маленькая мойка. Для экономии места были выбраны компактный посудомоечный автомат и микроволновка. Кроме того, для борьбы с неприятными запахами была приобретена небольшая угольная вытяжка с фильтром.

Зона для приема пищи выглядит стильно и уютно! Здесь вы найдете барную стойку, удобные стулья и даже полку для хранения посуды. Атмосферная подсветка делает завтраки и ужины еще более приятными.

Чтобы создать уютную зону сна, мы использовали кровать размером 1500*2000 с выдвижными ящиками для хранения постельного белья, а также подъемный механизм для дополнительного хранения. Для обеспечения максимального комфорта был выбран ортопедический матрас высокого качества. Также мы установили полку для книг, широкое изголовье для удобства просмотра телефона и дополнительное освещение, чтобы создать мягкую атмосферу для отдыха.

Учебная зона создана для комфортного обучения и работы. Стол-подоконник обеспечивает достаточное количество естественного света, а удобный стул позволяет длительное время сидеть за столом. Размещение закрытых шкафов на обеих сторонах стола помогает сохранить порядок и освободить пространство.

Закрытые шкафы создают дополнительное пространство для хранения вещей, что особенно актуально для небольших помещений.

Общий дизайн зоны учебы выполнен в стиле, соответствующем остальной обстановке комнаты, что позволяет создать гармоничный и единый интерьер.

Для зоны гостиной был выбран удобный диван, который может использоваться как спальное место, если гости захотят остаться на ночь. Кроме того, был установлен большой телевизор для просмотра футбольных матчей и игр на игровой приставке.

Область ванной комнаты включает в себя душ, унитаз, умывальник, шкаф для хранения средств гигиены и бытовой химии. Благодаря установке стиральной машины и электрической сушилки над ней, мы можем избежать необходимости развешивать вещи по всей маленькой квартире и существенно сократить время на глажку.

Для создания единого стиля были выбраны темно-коричневые, серые и кирпичные оттенки, которые создают атмосферу брутального интерьера с мужским характером. Кроме того, в интерьер были добавлены элементы ржавчины и темных оттенков для создания особого шарма и уюта.

Таким образом, с помощью грамотного зонирования, правильной мебели и визуальных приемов мы смогли создать функциональное помещение на всей площади 24,89 квадратных метров, которое отвечает всем потребностям и пожеланиям нашего клиента. Наши хитрости дизайна позволили разместить в этой крошечной студии полноценную кухню, гостиную, спальню и множество зон хранения, и при этом создать уютную и комфортную атмосферу для жизни и отдыха.

Дизайнер интерьера поможет разработать оптимальный план расстановки мебели, подберет цветовую гамму, нарисует 3D-визуализацию и подскажет, как использовать каждый квадратный метр максимально эффективно.

Дизайнер знает, как сделать ваш дом красивым, удобным и функциональным, даже если это всего лишь 24 квадратных метра.