Добавить в корзинуПозвонить
Найти в Дзене
SvetProff

Проект освещения как выгодное вложение в повышение качества жизни.

Заказав проект освещения, клиент может не сомневаться в качестве проводимых работ. После сдачи проекта он получает привлекательный и функциональный свет, отличающийся надежностью исполнения, экономичностью, безопасностью и удобством эксплуатации. Оглавление: Эстетичность Проект освещения, реализованный профессионалами, в первую очередь отличается эстетичностью. Грамотный подбор светильников позволяет создать оптимальную по всем параметрам световую среду для того или иного помещения. Свет, над организацией которого трудились специалисты, создает приятное впечатление от пространства, делает его атмосферным, комфортным и привлекательным. Использование светильников с различными характеристиками позволяет подчеркнуть все детали интерьера, акцентировать внимание на наиболее важных объектах и скрыть недостатки помещения. Кроме того, в зависимости от пожеланий клиента и задумок проектировщиков изменяются пропорции пространства – с помощью регулирования расположения и направления свечения прибо
Оглавление

Заказав проект освещения, клиент может не сомневаться в качестве проводимых работ. После сдачи проекта он получает привлекательный и функциональный свет, отличающийся надежностью исполнения, экономичностью, безопасностью и удобством эксплуатации.

Оглавление:

  1. Эстетичность.
  2. Функциональность.
  3. Качество и безопасность.
  4. Экономичность.
  5. Заключение.

Эстетичность

Проект освещения, реализованный профессионалами, в первую очередь отличается эстетичностью. Грамотный подбор светильников позволяет создать оптимальную по всем параметрам световую среду для того или иного помещения.

Свет, над организацией которого трудились специалисты, создает приятное впечатление от пространства, делает его атмосферным, комфортным и привлекательным. Использование светильников с различными характеристиками позволяет подчеркнуть все детали интерьера, акцентировать внимание на наиболее важных объектах и скрыть недостатки помещения. Кроме того, в зависимости от пожеланий клиента и задумок проектировщиков изменяются пропорции пространства – с помощью регулирования расположения и направления свечения приборов помещение становится более широким или узким, стены и потолок — более высокими или низкими, а само пространство – глубоким.

Иногда освещение не просто дополняет интерьер, а становится его изюминкой. Над эстетической составляющей проекта работают светодизайнеры, которые с помощью световых эффектов способны создать совершенно новое пространство. Даже самый скучный интерьер может выглядеть необычно и стильно с правильно подобранными светильниками.

Функциональность

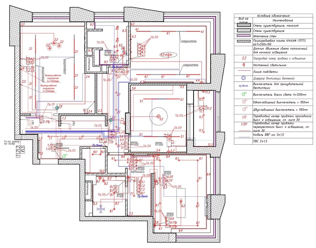
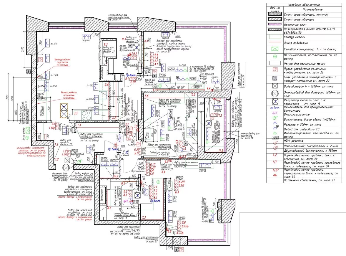
Свет должен быть не только удобным, но и функциональным. Проект до мелочей продумывает все возможные варианты использования световой среды. Для повышения удобства использования освещения выполняются следующие работы:

  • размещение выключателей в удобных для пользователей местах;
  • поиск оптимального вида светильников для решения той или иной задачи;
  • группировка светильников для создания не менее 3-4 световых сценариев для каждого помещения;
  • установка системы диммирования для регулирования яркости света;
  • подсветка функциональных зон пространства для удобства их использования;
  • организация освещения с оптимальной яркостью, обеспечивающей комфорт выполнения нужных задач.

Качество и безопасность

Проведение ряда расчетов позволяет сформировать качественную, надежную и безопасную систему освещения. Продуманная система прокладки проводки, порядка подключения осветительных приборов гарантирует долгий срок службы освещения и минимальный риск возникновения аварийных ситуаций.

Светильники подбираются из баз проверенных поставщиков. Это необходимо для организации качественного освещения, параметры которого соответствуют желаемому результату. Высокое качество самих приборов необходимо для гарантии длительного срока их службы и снижения частоты замены ламп.

В ходе проектирования учитываются все требования к освещению. Например, в помещениях с повышенной влажностью используются приборы с высокой степенью влагозащиты, а в промышленных цехах с легко воспламеняющимся веществами – взрывозащищенные и пожаробезопасные лампы.

Экономичность

Экономия в проекте освещения достигается за счет нескольких факторов:

  1. Подбор маломощных светильников. Лампы с нужной для помещения яркостью, потребляющие малое количество мощности, экономят электроэнергию.
  2. Качественное оборудование. Выбор осветительного оборудования от проверенных производителей позволяет продлить срок службы системы освещения, сократив частоту замен ламп и периодичность проведения ремонтных работ.
  3. Поставка оборудования. Доставка товара непосредственно со склада производителя гарантирует его минимальную стоимость.

Немаловажный вклад в энергоэффективность осветительной системы вносит использование сценариев света и установка диммирования. Возможность снизить яркость светильников и выключить неиспользуемые электроприборы уменьшает расходы электроэнергии на 15-30%.

Заключение

Созданная под руководством профессионалов система освещения отличается удобством использования, функциональностью и привлекательностью. Точные расчеты, проводимые в ходе реализации проекта, выполняются с учетом всех пожеланий заказчика и параметров самого помещения. В результате кропотливой работы освещение становится необходимой деталью, улучшающей качество жизни присутствующих в помещении людей.