Добавить в корзинуПозвонить
Найти в Дзене
ЭТО ВАШ ИНТЕРЬЕР

Полное преображение "однушки", которая досталась в наследство от бабушки (Фото До и После)

Данная жилплощадь находится в Москве, в "сталинке". Раньше эта квартира принадлежала бабушке нашей героини. Интерьер и обстановка были уже "уставшие", поэтому с ремонтом хозяйка решила не затягивать. Для грамотного проекта она обратилась к дизайнеру. Проект Кухня Ремонт начался с небольшой перепланировки. Вход в комнату перенесли на кухню. Стены на кухни покрасили в светлый приглушенный оттенок. Напольное покрытие выложено плиткой. С правой стороны установили кухонный угловой гарнитур, фасады которого выполнили в насыщенном сером цвете. Фартук выложен белой прямоугольной плиткой. Возле входа в комнату разместили столовую группу. Гостиная Единственную комнату было решено разделить на две зоны: гостиную и спальню. Ближе к окну расположилась зона гостиной. Напольное покрытие — ламинат. Чтобы разбавить светлый интерьер, одну стену сделали акцентной и покрасили ее в темный насыщенный оттенок. Возле нее встал раскладной диван в горчичном цвете. Спальня Спальню полностью изолировали от гос
Оглавление

Данная жилплощадь находится в Москве, в "сталинке". Раньше эта квартира принадлежала бабушке нашей героини. Интерьер и обстановка были уже "уставшие", поэтому с ремонтом хозяйка решила не затягивать. Для грамотного проекта она обратилась к дизайнеру.

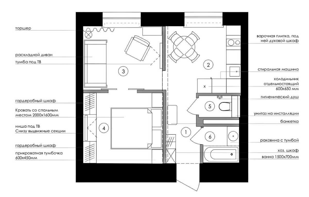
Проект

  • Местонахождение: г. Москва
  • Площадь квартиры: 37 кв. метров
  • Владельцы: женщина

Кухня

Ремонт начался с небольшой перепланировки. Вход в комнату перенесли на кухню. Стены на кухни покрасили в светлый приглушенный оттенок. Напольное покрытие выложено плиткой.

-3

С правой стороны установили кухонный угловой гарнитур, фасады которого выполнили в насыщенном сером цвете. Фартук выложен белой прямоугольной плиткой. Возле входа в комнату разместили столовую группу.

Гостиная

Единственную комнату было решено разделить на две зоны: гостиную и спальню. Ближе к окну расположилась зона гостиной. Напольное покрытие — ламинат. Чтобы разбавить светлый интерьер, одну стену сделали акцентной и покрасили ее в темный насыщенный оттенок. Возле нее встал раскладной диван в горчичном цвете.

Спальня

Спальню полностью изолировали от гостиной перегородкой и раздвижными дверьми. В центре поставили двуспальную кровать. Стену за кроватью украсили акцентными обоями. Напротив кровати установили большую систему хранения.

Ванная комната и санузел

Эти два помещения решили не объединять. На полу та же плитка, что и на кухне. Стены облицевали тремя видами плитки: молочного оттенка, ярко-синего цвета и плиткой, которая имитирует деревянную поверхность.

Если вам понравилась статья, то не забудьте поставить лайк и подписаться, чтобы не пропустить новый материал!

Так же пишите в комментариях, что вам понравилось в этом проекте, а что вызывает сомнения.

Если вам будет интересно, то заходите на мой второй новый канал)