Найти в Дзене

Модульный каркасный дом 5,5 на 10 метров

Дом состоит из 2-х каркасных модулей, которые будут собираться в цеху. Планировка состоит из жилого модуля (кухня - спальня) и вспомогательного зал, санузел, парная. Даю планировку. Спальня конечно очень маленькая. Места хватит под одну кровать. Это самый главный недостаток модульных домов. Тут прежде всего нужно уместиться в габариты перевозочного средства, которые очень ограничены. Из спальни у нас есть выход сразу на террасу, через большое окно - портал. Имеется относительно просторная кухня. Относительно применяю к размерам дома. Из кухни имеется выход в зал. Это уже говорим про вспомогательный блок. В нем находится санузел и парная. Высоты дома небольшие. Самый минимальный 2,4, максимальный 3,2. Вот разрез. Жилые блоки каждый собирается отдельно и транспортируется на участок заказчика. Видео конструкторской документации публикую Ее вы можете приобрести в телеграмм-канале Или на бусти Документацию получите, как на видео вверху. Опять же публикую свою партнерскую ссылку на

Дом состоит из 2-х каркасных модулей, которые будут собираться в цеху.

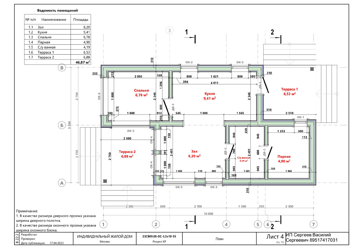
Планировка состоит из жилого модуля (кухня - спальня) и вспомогательного зал, санузел, парная.

Даю планировку.

Спальня конечно очень маленькая. Места хватит под одну кровать. Это самый главный недостаток модульных домов. Тут прежде всего нужно уместиться в габариты перевозочного средства, которые очень ограничены. Из спальни у нас есть выход сразу на террасу, через большое окно - портал.

Имеется относительно просторная кухня. Относительно применяю к размерам дома.

Из кухни имеется выход в зал. Это уже говорим про вспомогательный блок. В нем находится санузел и парная.

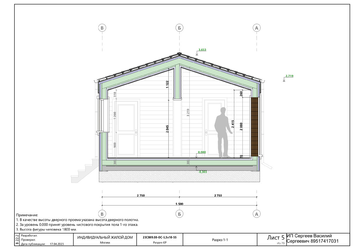
Высоты дома небольшие. Самый минимальный 2,4, максимальный 3,2. Вот разрез.

-2

Жилые блоки каждый собирается отдельно и транспортируется на участок заказчика.

-3
-4
-5

Видео конструкторской документации публикую

Ее вы можете приобрести в телеграмм-канале

Каталог уникальных проектов каркасных домов, бань, малых форм

Или на бусти

Проект модульного каркасного дома - Василий Сергеев

Документацию получите, как на видео вверху.

-6
-7
-8
-9
-10
-11
-12
-13
-14

Опять же публикую свою партнерскую ссылку на курсы академии загородного строительства https://azs.training/proektirovanie3?gcao=26270&gcpc=5444b

И не забывайте про мой телеграмм-канал

Буду благодарен, если подпишитесь на дзен!