Добавить в корзинуПозвонить
Найти в Дзене
Дом Мечты

Одноэтажные дома из газоблока – 7 примеров самой удачной планировки

Конечно, можно рассмотреть и вариант 2-3 этажного дома, но именно одноэтажное строение позволяет по максимуму задействовать все рабочие зоны, превращая их в максимально качественно использованное пространство. И, кроме того, многим просто нравится одноэтажное домостроение, в котором нет необходимости думать о некоторых сложностях связанных с увеличенной этажностью. Уютный и комфортный дом – что может быть лучше? Тем более если планировка настолько идеальна, что превращает каждый день в настоящий праздник гармонии и уюта домашнего очага. Ну а сегодня мы с вами познакомимся с несколькими вариантами самой удачной планировки, задействованной в одноэтажном домостроении(листайте галерею). Для примера возьмем наши готовые дома. ПРОЕКТ "КОБА" Если ранее вы считали одноэтажный дом площадью 80 м2 не слишком большим, то представляем наш дом по проекту «Коба» с невероятно функционально задействованной внутренней частью. Дом, построенный на 5 сотках, сочетает в себе комфорт и простор, что не менее
Оглавление

Конечно, можно рассмотреть и вариант 2-3 этажного дома, но именно одноэтажное строение позволяет по максимуму задействовать все рабочие зоны, превращая их в максимально качественно использованное пространство. И, кроме того, многим просто нравится одноэтажное домостроение, в котором нет необходимости думать о некоторых сложностях связанных с увеличенной этажностью. Уютный и комфортный дом – что может быть лучше? Тем более если планировка настолько идеальна, что превращает каждый день в настоящий праздник гармонии и уюта домашнего очага.

Ну а сегодня мы с вами познакомимся с несколькими вариантами самой удачной планировки, задействованной в одноэтажном домостроении(листайте галерею). Для примера возьмем наши готовые дома.

ПРОЕКТ "КОБА"

Если ранее вы считали одноэтажный дом площадью 80 м2 не слишком большим, то представляем наш дом по проекту «Коба» с невероятно функционально задействованной внутренней частью.

Дом, построенный на 5 сотках, сочетает в себе комфорт и простор, что не менее важно при выборе одноэтажного домостроения. В доме 3 комнаты, кухня-гостиная, санузел, холл, тамбур и кладовка. Как видите, с многозадачностью в плане планировки мы справились. Подробнее о проекте тут 👇

Дом по проекту "Коба" купить в Калуге

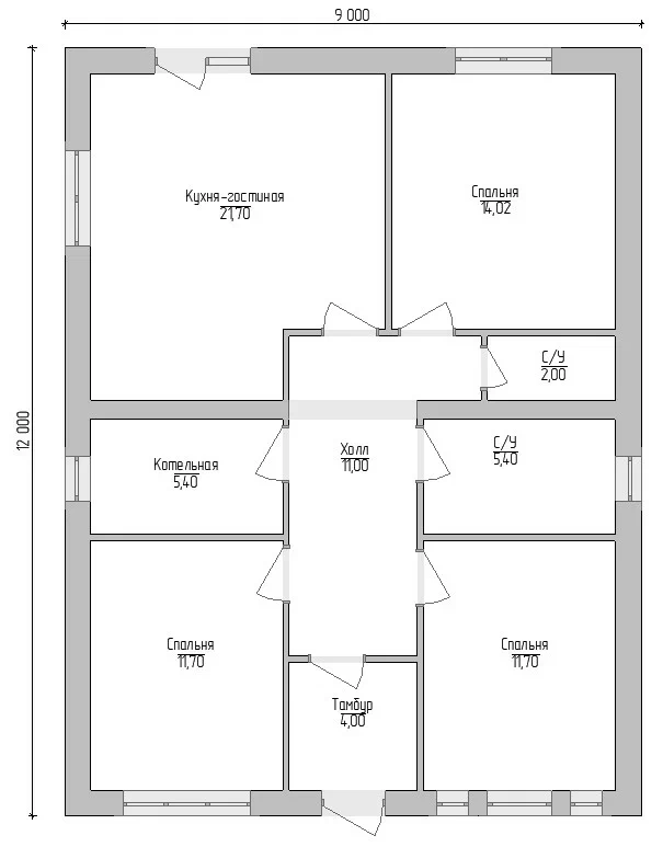
ПРОЕКТ "Майями"

Еще один пример организованного пространства внутри одноэтажного домостроения.

Согласитесь, больше места – больше простора для фантазии? Даже в условиях одно этажности строения. В доме находится кухня-гостиная, большая спальня, две спальни чуть меньше, два с/у, тамбур, холл и котельная. Все комнаты раздельные и каждая выполняет только свой функционал.

Подробнее о проекте "Майями" здесь 👇

Дом из газоблока "Майами" купить в Калуге

ПРОЕКТ «Брюгге»

Популярность совмещения кухни и гостиной сложно переоценить, это действенное сочетание, позволяющие улучшить многозадачность помещения. Но иногда мы действуем иначе, учитывая пожелания наших будущих домовладельцев и тогда кухня выполняет только свое прямое назначение, являясь местом, где хочется только творить, создавая уникальные кулинарные шедевры. Прямое доказательство тому наш проект «Брюгге» как пример небольшого дома с очень удачной планировкой. Где есть две комнаты, кухня, с/у, гардероб, холл и тамбур 👇

Дома из газобетона под ключ в Калуге

ПРОЕКТ "Женева"

А если вы всегда мечтали о небольшой террасе, где можно уютно устроиться осенним вечером и наслаждаться закатом, то однозначно одноэтажный дом проекта «Женева» придется вам по вкусу. В доме просторная кухня-гостиная, спальня, две спальни, гардероб, тамбур, холл и та самая уютная терраса.

ПРОЕКТ «Вена»

К слову о планировке небольшого домика в две спальни, который прекрасно подойдет для уютного загородного отдыха. Наш проект «Вена» как раз про удобство и милый функционал. В доме предусматриваются две спальни, кухня-гостиная, с/у, тамбур и холл. И как вариант, кухня может быть и не совмещена с гостиной, а может стать самостоятельным помещением, если вам так удобнее.

ПРОЕКТ «Токио Мини»

Иногда терраса – это слишком и дом предполагает наличие небольшого пространства способного дать чуть больше простора. В этом случае прекрасно подойдет балкон, на который можно попасть сразу из большой кухни-гостиной(26.59 м2). В проекте «Токио Мини» как раз учтена такая особенность. А еще в доме три спальни, два с/у и холл.

ПРОЕКТ "Техас"

И еще один проект «Техас» в завершении нашего обзора. Уникальный и удобный дом с очень большой кухней-гостиной и тремя аккуратными спальнями, просторной ванной и отдельным с/у а также холлом, тамбуром и котельной. Подробнее о проекте тут 👇

Купить одноэтажный дом в Калуге по проекту "Техас"

А какая планировка понравилась вам больше всего?

Подписывайтесь на наш канал, чтобы не пропустить новые публикации!

Дом Мечты | Дзен