Найти в Дзене

Ремонт собственного дома Юли из Rachel WOW часть 2

Это мой второй пост о ремонте в собственном доме. Давайте так и назовем его - ремонт дома Юли из Rachel WOW часть 2. Как я говорила в прошлом своем посте, мой дом площадью 88 квадратных метров находится на 4 сотках земли, с подробной планировкой и описанием можно ознакомиться здесь (кликабельно).
Второй ремонт В моей жизни уже был один ремонт. Это была моя квартира, купленная в 2017 году в черновой отделке. Когда ты заходишь и видишь плиты. И все.. В воздухе сразу будто бы должен начать летать страх и ужас. Но у меня нет такого. Поэтому примерный план действий я определила. Так как в дом хочется переехать скорее - работы на участке отложила на потом. Рукколе, цветам, газону и чему-то красивому на улице обязательно найдется место попозже. Пока возьмемся за главное!
План действий Определяемся с планом действий по дому, чтобы можно было понимать за что хвататься в первую очередь. Так мне стало понятно каких специалистов нужно искать в первую очередь. Образно говоря, роль прораба я б
Оглавление

Это мой второй пост о ремонте в собственном доме. Давайте так и назовем его - ремонт дома Юли из Rachel WOW часть 2.

Как я говорила в прошлом своем посте, мой дом площадью 88 квадратных метров находится на 4 сотках земли, с подробной планировкой и описанием можно ознакомиться здесь (кликабельно).

Второй ремонт

В моей жизни уже был один ремонт. Это была моя квартира, купленная в 2017 году в черновой отделке. Когда ты заходишь и видишь плиты. И все.. В воздухе сразу будто бы должен начать летать страх и ужас. Но у меня нет такого. Поэтому примерный план действий я определила. Так как в дом хочется переехать скорее - работы на участке отложила на потом. Рукколе, цветам, газону и чему-то красивому на улице обязательно найдется место попозже. Пока возьмемся за главное!

План действий

Определяемся с планом действий по дому, чтобы можно было понимать за что хвататься в первую очередь.

  • электрик
  • сантехник
  • плиточник
  • потолок
  • обои/штукатурка/краска
  • ламинат
  • двери
  • мебель

Так мне стало понятно каких специалистов нужно искать в первую очередь. Образно говоря, роль прораба я буду выполнять самостоятельно. Соединять всех специалистов вместе, контролировать закупки, сроки поставок всех заказов, отслеживать сроки работы и вникать во все процессы. Во первых, я чувствую, что мне это нравится. Во вторых, моя тревожность так или иначе будет лезть во все процессы, лучше дать ей волю сразу:)

Невероятное везение

В марте, когда процесс сделки запустился мы созвонились с Викой (кликабельно) и поняли, что получить такого специалиста - это благословение собачьего боженьки и никак иначе! Мы договорились на:
планировочные решения, планы электрики, план сантехники( + сплиты), чертеж и рисунок кухни. Картинки в виде легких коллажей по кухне и по ванным точно, по спальным тоже. Просто как мудборды. Советы и консультации по ходу стройки.

Вика - дизайнер интерьеров, но это далеко не только про сочетания цветов, но и про удобные планировочные решения, эргономику и удобство, которым мы будем пользоваться каждый день.

Мы сделали самостоятельно обмер дома, по всем заданным параметрам. Как из того, что нарисовано на листике Вика перевела в адекватную планировку дома - я понятия не имею.

обмеры дома
обмеры дома

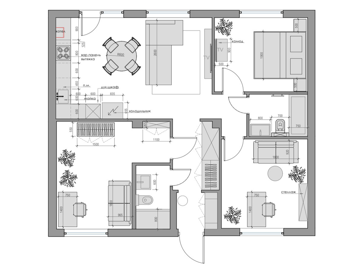
Финальные эскизы

Смотрите, что получилось! Это финальная планировка дома, на нее будут накладываться уже разводки, электрика, сантехника, мебель. Еще раз, посмотрите на картинку с обмерами сверху и на это. Благословение собачьего боженьки в деле:)

Финальная планировка дома
Финальная планировка дома

В моменте

К этому этапу я уже провела опрос населения, а точнее всех друзей, кто может дать полезные контакты. И собрала их у себя в голове. Первый на встречу пришел сантехник. Так как в доме нужно делать насосную станцию с накопительным баком - все эти коммуникации нужно проложить внутри дома к пристройке. Относительно планировки дома - пристройка будет находится слева от кухни и коммуникации будут выведены сквозь стену. Когда вы будете смотреть сейчас смету, пошлите мне пожалуйста энергию добра и финансового благополучия🥲

Перенос узла учета воды, магисталь холодного водоснабжения под потолком, насосная группа теплого пола (циркуляционный насос, трехходовой смесительный клапан, резьбовые фитинги, термометр биметаллический, полипропиленовые труба и фитинги, пресс-фитинги, паковочный материал), резервное водоснабжение (насосная станция, ёмкость для воды, поплавковый клапан, запорная арматура, узел учета расхода воды, колба ВВ, полипропиленовая труба, фитинги, комплектующие обвязки) - ЭТО ЧТО ВООБЩЕ ЗА СЛОВА ТАКИЕ? Хорошо, здесь страх и ужас знатно полетал в моей голове. Но я понимала, что доверила этот процесс профессионалам, которых посоветовали. Мою задачу решат. Я понимаю, что здесь есть % переплаты.

смета
смета

Пристройка

Последним пунктом в сегодняшнем посте буде теплая пристройка, в которой будет установлено все вотэтовот, что вы прочитали в смете выше и "гаражные вещи". Выглядеть она будет таким образом. Строить ее будем из профильной трубы 50х50, утеплителя и OSB плит.

пример пристройки
пример пристройки

Кажется, этот пост можно заканчивать. В следующе серии: чертеж кухни, встреча с электриком и работа с сантехником. И закупка на оптовой сантехнической базе. Подписывайтесь на мой канал и желайте удачи в комментариях, впереди много интересного! 🙏