Добавить в корзинуПозвонить
Найти в Дзене
Ландшафтный гуру

Полное преображение дачи для семейной пары, где был ремонт в стиле 90-х

Наши герои давно хотели приобрести небольшой загородный дом, где можно будет отдохнуть от городской суеты. И вот подвернулся хороший вариант по приемлемой цене. Единственное, что не устраивало, так это потрепанный ремонт в стиле 90-х. Поэтому после покупки дачи новые владельцы решили пригласить дизайнера, который создал современный и функциональный интерьер под названием "уютное шале". Проект Кухня-гостиная Первый этаж занимает просторная кухня-гостиная. Здесь расположен линейный кухонный гарнитур с вместительными колонами по бокам. По просьбе хозяйки мойку установили возле окна. Нижние фасады имитируют деревянную фактуру. От верхнего яруса отказались, так как нижних секций вполне достаточно для дачной кухни. Фартук выложен керамогранитом и продлён до самого потолка. Напротив кухонной зоны организовали столовую группу с большим деревянным столом. Дополняют обеденную зону мягкие стулья в насыщенном винном оттенке. Сразу за обеденным столом находится зона гостиной. Напольное покрытие выл
Оглавление

Наши герои давно хотели приобрести небольшой загородный дом, где можно будет отдохнуть от городской суеты. И вот подвернулся хороший вариант по приемлемой цене. Единственное, что не устраивало, так это потрепанный ремонт в стиле 90-х. Поэтому после покупки дачи новые владельцы решили пригласить дизайнера, который создал современный и функциональный интерьер под названием "уютное шале".

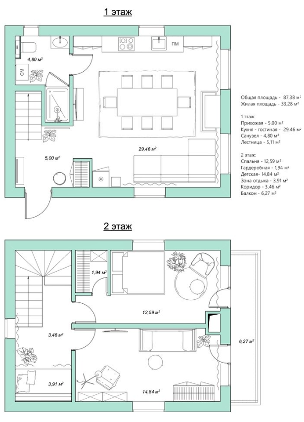
Проект

  • Местонахождение: Самарская область
  • Площадь дома: 87 кв. м
  • Владельцы: семейная пара
  • Срок ремонта: 4 месяца

Кухня-гостиная

Первый этаж занимает просторная кухня-гостиная. Здесь расположен линейный кухонный гарнитур с вместительными колонами по бокам. По просьбе хозяйки мойку установили возле окна. Нижние фасады имитируют деревянную фактуру. От верхнего яруса отказались, так как нижних секций вполне достаточно для дачной кухни. Фартук выложен керамогранитом и продлён до самого потолка.

Напротив кухонной зоны организовали столовую группу с большим деревянным столом. Дополняют обеденную зону мягкие стулья в насыщенном винном оттенке.

Сразу за обеденным столом находится зона гостиной. Напольное покрытие выложено ламинатом. Здесь появился угловой диван в сером цвете и полноценный камин, который является сердцем дома.

-4

Спальня

Спальня выполнена в светлой цветовой гамме. Сразу при входе имеется небольшая гардеробная. Слева появилась двуспальная кровать с высоким изголовьем. Пол и потолок оформили ламинатом, а стены имеют светлый оттенок. Напротив кровати поставили круглое кресло с журнальным столиком.

Гостевая комната

Рядом со спальней организовали гостевую комнату. Она оформлена в той же стилистике, что и спальня.

-6

Ванная комната

Пол в ванной комнате выложен керамогранитом. Стены облицованы плиткой двух видов. В нише расположилась душевая кабина. Рядом с унитазом появилась полноразмерная стиральная машина.

Если вам понравилась статья, то не забудьте поставить лайк и подписаться, чтобы не пропустить новый материал!

Делитесь своим мнением в комментариях)