Найти в Дзене

Квартира 50м2 -неоклассика и зеркальные панели.

Небольшая, пятидесятиметровая квартира задумывалась , как уютное, продуманное до мелочей пространство для двоих. Гостиная здесь объединена с кухней -столовой . Дополнительную площадь предоставила лоджия -присоединенная к гостиной. Кухня очень подробно скомпонована и максимально приближена с общему восприятию помещения. Оттенки цветов применялись подчеркнуто прохладные-дабы не сделать пространство зрительно перегруженным и избыточно -уютным. Серовато-жемчужная гамма делает помещение зрительно шире -поддерживает максимальную освещенность. На присоединенном балконе нашлось место небольшому кофейному столику. В оттенках материалов преобладают оттенки прохладно-серые и бледно-коричневые. Угловой диван акцентирован дополнительной группой декоративных золотисто-коричневых подушек. Диван может раскладываться -создавая дополнительное гостевое спальное место. Кофейные цвета и оттенки подушек на диване -перекликаются с цветом мрамора поверхности барной стойки и кухни. Ромбы в настенных зеркалах

Небольшая, пятидесятиметровая квартира задумывалась , как уютное, продуманное до мелочей пространство для двоих. Гостиная здесь объединена с кухней -столовой . Дополнительную площадь предоставила лоджия -присоединенная к гостиной. Кухня очень подробно скомпонована и максимально приближена с общему восприятию помещения.

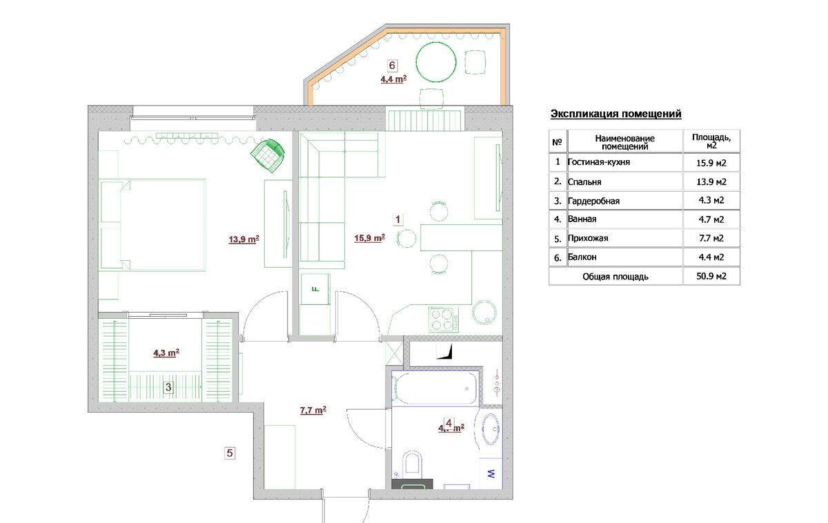
План с размещением мебели
План с размещением мебели

Оттенки цветов применялись подчеркнуто прохладные-дабы не сделать пространство зрительно перегруженным и избыточно -уютным. Серовато-жемчужная гамма делает помещение зрительно шире -поддерживает максимальную освещенность. На присоединенном балконе нашлось место небольшому кофейному столику. В оттенках материалов преобладают оттенки прохладно-серые и бледно-коричневые. Угловой диван акцентирован дополнительной группой декоративных золотисто-коричневых подушек. Диван может раскладываться -создавая дополнительное гостевое спальное место. Кофейные цвета и оттенки подушек на диване -перекликаются с цветом мрамора поверхности барной стойки и кухни. Ромбы в настенных зеркалах -строгими формами вторят остеклению кухонных полок.

-3

Люстра и настенный свет подобраны по принципу лаконичной строгости и соотносятся друг с другом . Некоторым дополнением является зеленые цвета в абстрактной, сезаннисткой картине. Зеленый был необходим здесь- как дополнительный акцент.

Полы выбраны из светлого массива — опять ,в целях не перегрузить пространство темными тонами.

Спальня подчеркнуто чопорная -яркая, но не вычурная . Синий и оттенки голубого- придают некоторую стильную строгость . Получившийся интерьер можно назвать американским.

-4

-5

Теплое красноватое дерево мебели соседствует с прохладной бело-синей средой и избыточная своим стеклом люстра, своими прохладными отражения и переломлениями света -дополняет картину, придавая ей некоторую парадность. К спальне примыкает гардеробная,

отделенная белыми раздвижными дверями.

Холл отличается строгой графичностью -глубочайший оттенок синего на стенах и белоснежные поверхностей - поддерживают друг-друга, необходимым элементом можно назвать холодное поблескивания стекла венецианского зеркала. Пол -жестко структурирован с использованием черного и белого полированного мрамора. Ванная -выполнена в белоснежной плитке с выпуклой поверхностью- полы из керамогранита , в виде деревянных половиц. Верхняя часть стены окрашена краской свежего, бледно-сиреневого оттенка.

Несмотря на небольшую площадь, квартира радует хорошей организацией пространства ,

строгими, «вкусными» сочетания цветов и элегантным декорированием.

-6

-7