Добавить в корзинуПозвонить
Найти в Дзене

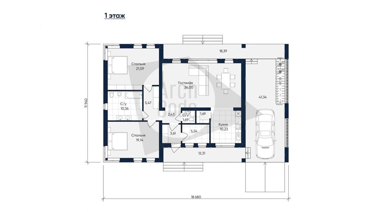
Проект одноэтажного дома 117 м2 с плоской кровлей

Представляем современный одноэтажный стильный дом с плоской кровлей. Фасад дома выполнен в минималистичном стиле и отличается лёгкостью.
Общая площадь - 117 м2
Габариты - 11.94х18.68 м
2 спальни
2 санузла
Гостиная - 36 м2
Летняя терраса - 18.39 м2
Навесной гараж-терраса - 41.34 м2. Став владельцем коттеджа в стиле хай-тек, вы сможете пользоваться предельно удобным, современным домом, в котором найдется место для всей семьи и приема гостей.
Это стиль, поражающий воображение. Его ценят за нестандартность, эстетичность и безусловную практичность.
Преимущества:
- Современность и оригинальность. Дома с плоской кровлей не часто встречаются в России
- Эксплуатация. Есть возможность превратить крышу, например, в террасу и загорать там летом или отдыхать с друзьями.
- Ветростойкость. Как построить дом в Тюмени? Как построить дом в Москве? Готовые дома в Тюмени Готовые дома в Москве Земельные участки в Тюмени Задать вопрос в ТГ И подписывайтесь на наш канал, чтобы не пропустить новые интере

Представляем современный одноэтажный стильный дом с плоской кровлей.

Фасад дома выполнен в минималистичном стиле и отличается лёгкостью.

Общая площадь - 117 м2
Габариты - 11.94х18.68 м
2 спальни
2 санузла
Гостиная - 36 м2
Летняя терраса - 18.39 м2
Навесной гараж-терраса - 41.34 м2.

Проект одноэтажного дома 117 м2 с плоской кровлей
Проект одноэтажного дома 117 м2 с плоской кровлей

Став владельцем коттеджа в стиле хай-тек, вы сможете пользоваться предельно удобным, современным домом, в котором найдется место для всей семьи и приема гостей.
Это стиль, поражающий воображение. Его ценят за нестандартность, эстетичность и безусловную практичность.

Преимущества:
- Современность и оригинальность. Дома с плоской кровлей не часто встречаются в России
- Эксплуатация. Есть возможность превратить крышу, например, в террасу и загорать там летом или отдыхать с друзьями.
- Ветростойкость.

Понравился проект? Заказать проект или выбрать подобный можно по телефону: +79323212510. Звоните или пишите. Заявки принимаются по вотцап, телеграмм. Готовы рассчитать для вас смету!

Как построить дом в Тюмени?

Как построить дом в Москве?

Готовые дома в Тюмени

Готовые дома в Москве

Земельные участки в Тюмени

Задать вопрос в ТГ

И подписывайтесь на наш канал, чтобы не пропустить новые интересные проекты.

#проектдома #одноэтажныйдом #построитьдом #купитьдом