Добавить в корзинуПозвонить
Найти в Дзене
Дом мечты с Bonolit

Трёхэтажный дом из Bonolit для маленького участка

Шикарный трехэтажный дом из Bonolit от компании "Дом от профи", построенный в г. Домодедово в 2019 году.
👌Такой проект идеально подойдет для небольшого участка.
Уникальность данного проекта в том, что на маленьком участке в центре города, всего на 4 сотках компактно удалось реализовать проект в 3 этажа. Кроме того, на участке имеется гараж на 2 машины, сауна, терраса и зона для барбекю. Состав помещений:
🔹На первом этаже: Прихожая, гардеробная, санузел/бойлерная, кухня-гостинная, терасса, сауна, парная.
🔹На 2ом: Гостинная, кабинет, балкон, спальня, гардеровная, санузел
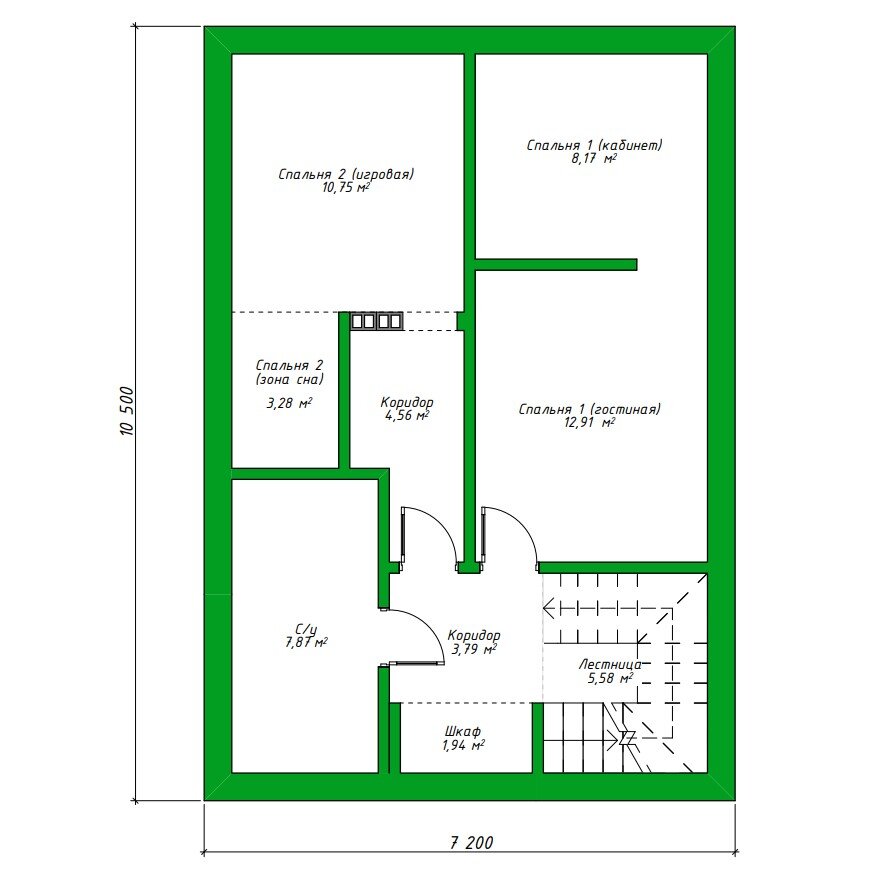
🔹3ий этаж: Коридор, санузел, 2 детские комнаты.
ПАРАМЕТРЫ ДОМА:
▫ Общая площадь - 246 м²
▫ Площадь помещений - 187 м²
▫ Высота 1-го этажа - 3 м
▫ Высота 2-го этажа - 3 м
▫ Габариты - 9,2 х 7,2 м КОМПЛЕКТАЦИЯ ДОМА:
▫ Фундамент УРФ лайт;
▫ Перекрытия монолитные железобетонные;
▫ Несущие стены - газобетонный блок Bonolit 375, 250 мм;
▫ Ненесущие стены - блок Bonolit 150 мм;
▫ Балочное чердачное перекрытие с утеплением

Шикарный трехэтажный дом из Bonolit от компании "Дом от профи", построенный в г. Домодедово в 2019 году.

👌Такой проект идеально подойдет для небольшого участка.
Уникальность данного проекта в том, что на маленьком участке в центре города, всего на 4 сотках компактно удалось реализовать проект в 3 этажа. Кроме того, на участке имеется гараж на 2 машины, сауна, терраса и зона для барбекю.

Состав помещений:
🔹На первом этаже: Прихожая, гардеробная, санузел/бойлерная, кухня-гостинная, терасса, сауна, парная.
🔹На 2ом: Гостинная, кабинет, балкон, спальня, гардеровная, санузел
🔹3ий этаж: Коридор, санузел, 2 детские комнаты.

ПАРАМЕТРЫ ДОМА:
▫ Общая площадь - 246 м²
▫ Площадь помещений - 187 м²
▫ Высота 1-го этажа - 3 м
▫ Высота 2-го этажа - 3 м
▫ Габариты - 9,2 х 7,2 м

КОМПЛЕКТАЦИЯ ДОМА:
▫ Фундамент УРФ лайт;
▫ Перекрытия монолитные железобетонные;
▫ Несущие стены - газобетонный блок
Bonolit 375, 250 мм;
▫ Ненесущие стены - блок
Bonolit 150 мм;
▫ Балочное чердачное перекрытие с утеплением 200 мм;
▫ Кровля - стропильная кровля с пароизоляцией, гидроизоляцией и покрытием цементно-песчаной черепицей со снегозадержанием.

Подробный видео-обзор дома -
https://youtu.be/F7snXiD3PBg