Найти в Дзене

Большой дом из бруса 261м2 для ПМЖ с гаражом

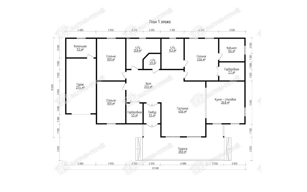
Август — большой одноэтажный дом, размером 13х23м, из сухого профилированного бруса. Планировкой предусмотрены просторные гостиная и кухня-столовая, 3 спальни, 2 санузла, помещения под гардеробные комнаты и рабочий кабинет, также, предусмотрен теплый гараж и котельная. Крыша классической, двухскатной формы. Высокий фасад и просторная терраса при входе, с ограждением перилами, подчеркивают элегантность этого большого дома. • Площадь: 261 м2
• Размер: 13х23 м
• Этажность: 1
• Оплата: Без предоплаты
• Доставка: Индивидуально
• Сроки стр-ва: 25-40 дней Планировка: 👉 Варианты комплектации: 1. Без отделки (сруб):
• Стандарт (брус 140х140)
• Зимний дом (брус 190х140) 2. С отделкой:
• Стандарт (брус 140х140)
• Зимний дом (брус 190х140)
Стоимость дома в каждой комплектации уточняется по запросу.
Посмотреть комплектацию на сайте: bagrovstroy.ru/doma-iz-brusa/avgust Что входит в каждую комплектацию: В комплектацию «с отделкой» входит все, что перечислено в комплектации «без отделки» + то, что
Оглавление

Август — большой одноэтажный дом, размером 13х23м, из сухого профилированного бруса. Планировкой предусмотрены просторные гостиная и кухня-столовая, 3 спальни, 2 санузла, помещения под гардеробные комнаты и рабочий кабинет, также, предусмотрен теплый гараж и котельная. Крыша классической, двухскатной формы. Высокий фасад и просторная терраса при входе, с ограждением перилами, подчеркивают элегантность этого большого дома.

• Площадь: 261 м2
• Размер: 13х23 м
• Этажность: 1
• Оплата: Без предоплаты
• Доставка: Индивидуально
• Сроки стр-ва: 25-40 дней

Планировка:

👉 Варианты комплектации:

1. Без отделки (сруб):
• Стандарт (брус 140х140)
• Зимний дом (брус 190х140)

2. С отделкой:
• Стандарт (брус 140х140)
• Зимний дом (брус 190х140)

Стоимость дома в каждой комплектации уточняется по запросу.
Посмотреть комплектацию на сайте:
bagrovstroy.ru/doma-iz-brusa/avgust

Что входит в каждую комплектацию:

В комплектацию «с отделкой» входит все, что перечислено в комплектации «без отделки» + то, что перечислено на слайдах в карусели.
____________________

В каждую комплектацию УЖЕ ВКЛЮЧЕНА стоимость материалов, работа бригады, фотоотчет и мой личный контроль за строительством) Доставка рассчитывается так же отдельно.

В карусели вы увидите что конкретно входит в каждый вариант :)

По вашему пожеланию, можно учесть доп.опции, убрать или заменить: фундамент, коммуникации, заменить окна на пластиковые, изменить внешнюю отделку дома и другие.

Понравился дом? Свяжитесь с нами, мы сделаем для вас расчет стоимости или подберем подходящий проект под ваши пожелания.

📍 Наши контакты:

• Сайт: bagrovstroy.ru
• Группа VK:
vk.com/bagrovstroy