Добавить в корзинуПозвонить
Найти в Дзене

Снимать или купить? Когда хочется жить в своей квартире

Не все знают, как правильно рассчитать свои финансовые возможности и определить, могут ли они себе позволить ипотеку. Как следствие, они считают ипотеку неподъемной нагрузкой и предпочитают снимать жилье. Что делать, если вы считаете, что у вас недостаточно сбережений, чтобы купить квартиру, а снимать жилье уже не хочется? В этой статье мы рассмотрим преимущества и недостатки съемного жилья, а также поговорим о покупке квартиры в ипотеку на примере однокомнатной квартиры в ЖК “Открытие”. Насколько выгодно купить квартиру в ипотеку и какие расчеты нужно сделать, чтобы понять, какой вариант подходит именно вам. Съемное жилье – это удобный вариант для тех, кто не готов или не может купить. Съемная квартира позволяет быстро переехать в другой город или район, если это необходимо. Также арендатору не нужно заботиться о ремонте и обслуживании квартиры, это обязанность владельца жилья. В аренду можно взять квартиру в лучшем районе, чем та, которую вы можете позволить купить. Однако съемное жи

Не все знают, как правильно рассчитать свои финансовые возможности и определить, могут ли они себе позволить ипотеку. Как следствие, они считают ипотеку неподъемной нагрузкой и предпочитают снимать жилье.

Что делать, если вы считаете, что у вас недостаточно сбережений, чтобы купить квартиру, а снимать жилье уже не хочется? В этой статье мы рассмотрим преимущества и недостатки съемного жилья, а также поговорим о покупке квартиры в ипотеку на примере однокомнатной квартиры в ЖК “Открытие”. Насколько выгодно купить квартиру в ипотеку и какие расчеты нужно сделать, чтобы понять, какой вариант подходит именно вам.

Съемное жилье – это удобный вариант для тех, кто не готов или не может купить. Съемная квартира позволяет быстро переехать в другой город или район, если это необходимо. Также арендатору не нужно заботиться о ремонте и обслуживании квартиры, это обязанность владельца жилья. В аренду можно взять квартиру в лучшем районе, чем та, которую вы можете позволить купить.

Однако съемное жилье имеет и недостатки. Аренда квартиры – это постоянные ежемесячные расходы, которые могут увеличиваться из года в год. Кроме того, долгосрочная аренда может стать невыгодной, если вы собираетесь жить в квартире более 5-7 лет. В этом случае купить квартиру выгоднее.

Покупка жилья – это инвестиция в будущее. Квартира – это ваша собственность, которую вы можете продать или сдать в аренду. Кроме того, платежи по ипотеке могут быть меньше, чем арендная плата за аналогичное жилье.

Ипотека, как способ приобрести свое жилье

Если вы решили купить квартиру, то стоит рассмотреть вариант покупки в ипотеку. Сегодня ставки по ипотечным кредитам находятся на исторических минимумах.

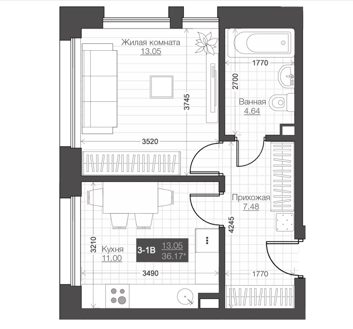
Рассмотрим пример. Вы выбрали однокомнатную квартиру в ЖК “Открытие” площадью 36,11 кв.м стоимостью 6 500 000 рублей

-2

План однокомнатной квартиры

ЖК “Открытие” расположен в Советском районе Казани, всего в 3 км от Меги и в 3 км от Горкинско-Ометьевского Леса, современный жилой комплекс комфорт-класса на улице Аделя Кутуя. Кроме того, район имеет большой потенциал развития, а следовательно, роста цен на недвижимость. Это делает его привлекательным для инвесторов. В проект развития района заложены объекты здравоохранения, а также новая школа, детский сад прямо под окнами жилого комплекса.

-3
-4
-5

В ЖК “Открытие” предусмотрено все для комфорта жильцов:

  • безопасный закрытый двор с детскими площадками, беседками, зоной с тренажерами
  • входные группы в дом на уровне земли, без единой ступеньки.
  • колясочные и велосипедные помещения
  • круглосуточная охрана и видеонаблюдение
  • просторный лобби с лаунж зоной и приветливым администратором
  • многоуровневый паркинг

Давайте подробно рассчитаем платежи по ипотеке, если вы готовы внести минимальный первоначальный взнос в размере 10% от стоимости квартиры - 650 000 рублей. Вы хотите взять кредит на 20 или 30 лет. Банк предлагает вам процентную ставку 4,95% годовых. Рассчитаем, какие будут ежемесячные платежи.

При ипотеке на 20 лет ежемесячный платеж составит около 42 717,79 рублей в месяц. Всего вы заплатите 10 253 564 рублей, из них проценты – 3 753 564 рублей.

При кредите на 30 лет ежемесячный платеж составит около 34 695,05 в месяц. Всего вы заплатите по кредиту 12 492 344 рублей, из них проценты – 5 992 344 рублей.

-6

Так же покупателям недвижимости в ЖК “Открытие” доступны государственные программы, которые сделают ипотеку более доступной.

Первая программа - ипотека для IT- специалистов. Она предоставляет возможность получить кредит на срок до 30 лет с процентной ставкой до 3% годовых при первоначальном взносе в размере 15%. Рассчитаем ежемесячный платеж по этой программе:

- Сумма кредита: 6 500 000 - (6 500 000 * 0.15) = 5 525 000 рублей

- Процентная ставка: 3% годовых

- Срок кредита: 30 лет (360 месяцев)

Ежемесячный платеж по ипотеке будет составлять около 23289 рублей.

Вторая программа - семейная ипотека. Она также позволяет получить ипотеку на 30 лет, но с процентной ставкой до 5% годовых при первоначальном взносе в размере 15%. Рассчитаем ежемесячный платеж по этой программе:

- Сумма кредита: 6 500 000 - (6 500 000 * 0.15) = 5 525 000 рублей

- Процентная ставка: 5% годовых

- Срок кредита: 30 лет (360 месяцев)

Ежемесячный платеж по ипотеке будет составлять около 29 344 рублей.

Третья программа - использование материнского капитала. Если у заемщика есть материнский капитал, то его можно использовать для покупки квартиры и выплаты первоначального взноса. В этом случае размер кредита будет меньше, а ежемесячный платеж будет соответственно ниже.

Кроме того, при покупке квартиры в ЖК “Открытие” по ипотеке можно получить налоговый вычет. Он составляет 13% от стоимости квартиры, но не более 260 000 рублей. Также можно получить вычет по выплаченным процентам по ипотеке - до 3 млн рублей.

-7

Лобби ЖК Открытие

Таким образом, выбор программы ипотеки зависит от финансовых возможностей заемщика и его семейного статуса. В любом случае, при покупке квартиры стоимостью 6 500 000 рублей можно рассчитывать на государственную поддержку в виде низких процентных ставок и налоговых вычетов.

В заключение можно сказать, что выбор между арендой и покупкой жилья зависит от многих факторов, в том числе от вашего финансового положения и планов на будущее. Если вы планируете жить в квартире более 5-7 лет, то покупка жилья может оказаться выгодной. При этом стоит рассмотреть вариант покупки в ипотеку, чтобы снизить первоначальные затраты и сделать покупку более доступной.

Оставьте заявку на сайте, наши специалисты подберут для вас выгодные условия по ипотеке и ответят на все вопросы.