Найти в Дзене

Власти Ростова опубликовали новый внешний вид остановок

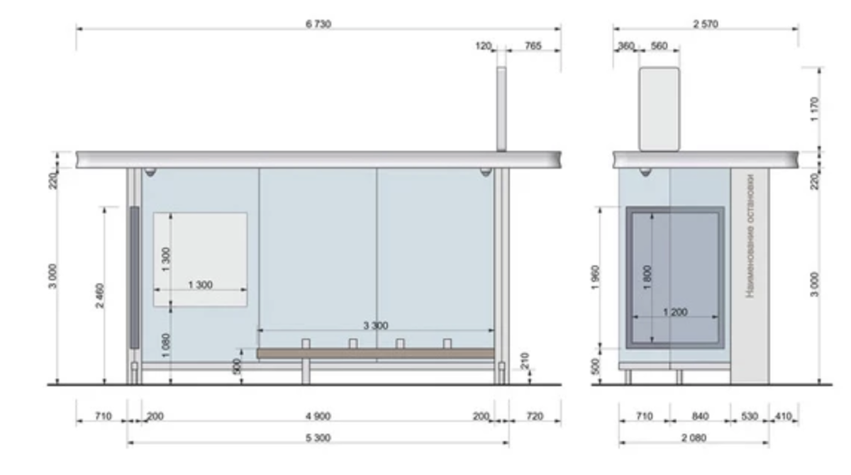
Власти донской столицы представили новый стандарт внешнего вида городских остановок для общественного транспорта. Об этом сообщает «161.RU» со ссылкой на администрацию Ростова. Из новых эскизов городских остановок для общественного транспорта следует, что теперь там спроектированы информационное и навигационное табло, а также рекламный стенд. На одном табло будут указаны маршруты, которые ходят через остановку, на другом — карта с направлением автобуса. На информационном табло установят на крыше остановки. Напомним, в 2021 году в Ростове появилась «умная» остановка на площади Советов, которая оснащена электронным информированием и дополнительным функционалом для ожидающих транспорт жителей и гостей города. Однако спустя полгода новая остановка перестала работать.
   //Фото пресс-службы администрации Ростова
//Фото пресс-службы администрации Ростова

Власти донской столицы представили новый стандарт внешнего вида городских остановок для общественного транспорта. Об этом сообщает «161.RU» со ссылкой на администрацию Ростова.

Из новых эскизов городских остановок для общественного транспорта следует, что теперь там спроектированы информационное и навигационное табло, а также рекламный стенд. На одном табло будут указаны маршруты, которые ходят через остановку, на другом — карта с направлением автобуса. На информационном табло установят на крыше остановки.

Напомним, в 2021 году в Ростове появилась «умная» остановка на площади Советов, которая оснащена электронным информированием и дополнительным функционалом для ожидающих транспорт жителей и гостей города. Однако спустя полгода новая остановка перестала работать.