Найти в Дзене
Ландшафтный гуру

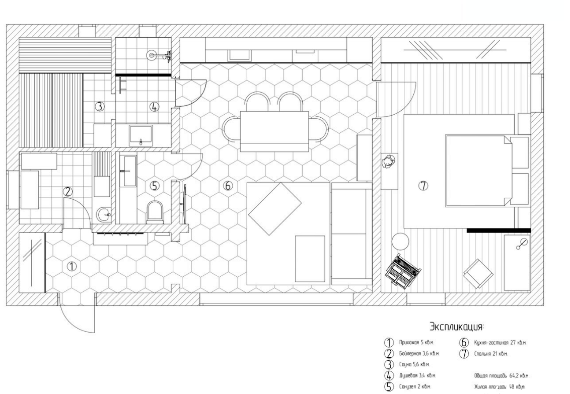
Женщина показала свой маленький, но уютный домик в деревне площадью 64 кв. м

Наши герои живут за городом уже много лет. Основной дом у них тоже не очень большой, поэтому когда приезжают родственники или друзья, расположиться попросту негде. Из этих соображений было решено построить небольшой домик по соседству. Проект Прихожая Пол во входной группе выложен плиткой. Слева от входа установили большой шкаф, фасады которого имеют бордовый цвет. Напротив входной двери установили открытую систему хранения для верхней одежды. Кухня-гостиная Дом построен из клееного бруса. Основную площадь занимает просторная кухня-гостиная, которую решили объединить в общее пространство. Напольное покрытие выложено шестиугольной плиткой. Кухонный гарнитур установили линейным образом. Фасады выполнены под дерево. Фартук облицован объемными гипсовыми панелями. В центре расположилась столовая группа, которая зонирует кухонную зону от гостиной. В гостиной поставили небольшой диван и разместили телевизионную зону. Спальня Напольное покрытие в спальне — ламинат. Посередине комнаты появилас
Оглавление

Наши герои живут за городом уже много лет. Основной дом у них тоже не очень большой, поэтому когда приезжают родственники или друзья, расположиться попросту негде. Из этих соображений было решено построить небольшой домик по соседству.

Проект

  • Местонахождение: Московская область, деревня Холмы
  • Площадь дома: 64 кв. м
  • Владельцы: семейная пара
-2

Прихожая

Пол во входной группе выложен плиткой. Слева от входа установили большой шкаф, фасады которого имеют бордовый цвет. Напротив входной двери установили открытую систему хранения для верхней одежды.

-3

Кухня-гостиная

Дом построен из клееного бруса. Основную площадь занимает просторная кухня-гостиная, которую решили объединить в общее пространство. Напольное покрытие выложено шестиугольной плиткой. Кухонный гарнитур установили линейным образом.

Фасады выполнены под дерево. Фартук облицован объемными гипсовыми панелями. В центре расположилась столовая группа, которая зонирует кухонную зону от гостиной.

-5

В гостиной поставили небольшой диван и разместили телевизионную зону.

Спальня

Напольное покрытие в спальне — ламинат. Посередине комнаты появилась двуспальная кровать в бирюзовом цвете. Прикроватные тумбочки имеют зеркальные поверхности, благодаря чему "растворяются" в пространстве. В углу спальни организовали рабочее место с письменным столом и зонировали его деревянной перегородкой со стеклянными вставками.

Санузел

Помимо стандартных атрибутов здесь удалось разместить раковину и дополнительные места для хранения.

-8

Ванная комната

В ванной комнате отказались от ванны и установили душевую. Так же здесь имеется полноценная сауна.

-9

Если вам понравилась статья, то не забудьте поставить лайк и подписаться, чтобы не пропустить новый материал!

Делитесь своим мнением в комментариях)