Добавить в корзинуПозвонить
Найти в Дзене

Проект одноэтажного дома "Санта-Моника" 185 м²

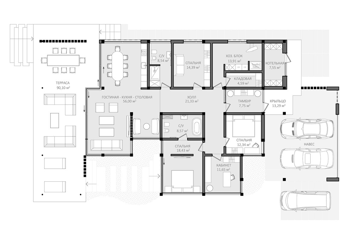
Широко распространенными являются проекты одноэтажных построек в стиле фахверк. Есть несколько плюсов, почему следует остановить свой выбор на одноэтажном доме: С преимуществами разобрались, теперь перейдем к основному! Фахверковый дом Санта-Моника идеально подойдет для семьи из 3-4 человек. Просторная кухня-гостиная 56 кв.м и три спальных зоны: мастер-спальня со своей ванной комнатой, гостевая и детская. Также предусмотрен рабочий кабинет, уютная терраса для отдыха на свежем воздухе и различные места технического назначения. План этажа: Жилая площадь: 185 м²; Дом Санта-Моника с плоской крышей, панорамными окнами, стильным фасадом и всем что нужно для жизни, станет идеальным выбором для семьи, которая стремится к комфорту и гармонии.
↓↓↓ В телеграм-канале показываем нашу работу ______ Приглашаем в офис и на демонстрационные экскурсии! Оставляйте заявки на сайте! sales@swsgroup.ru +7(495) -118-28-18 Ставьте лайк и подписывайтесь на нас! Больше проектов на нашем сайте swsgroup.ru
Оглавление

Широко распространенными являются проекты одноэтажных построек в стиле фахверк. Есть несколько плюсов, почему следует остановить свой выбор на одноэтажном доме:

  • Оптимальная планировка. Исключено пространство, которое никак не задействовано;
  • Нет лестниц, а это значит безопасность лиц пожилого возраста и маленьких детей;
  • С психологической точки зрения нет разделения семьи по этажам.

С преимуществами разобрались, теперь перейдем к основному!

Фахверковый дом Санта-Моника

идеально подойдет для семьи из 3-4 человек. Просторная кухня-гостиная 56 кв.м и три спальных зоны: мастер-спальня со своей ванной комнатой, гостевая и детская. Также предусмотрен рабочий кабинет, уютная терраса для отдыха на свежем воздухе и различные места технического назначения.

План этажа:

-2

Жилая площадь: 185 м²;

  • 3 спальни;
  • 2 санузла
  • кухня-гостиная с выходом на террасу,
  • большая терраса под свесами кровли;
  • навес для двух автомобилей.

Дом Санта-Моника с плоской крышей, панорамными окнами, стильным фасадом и всем что нужно для жизни, станет идеальным выбором для семьи, которая стремится к комфорту и гармонии.

↓↓↓

В телеграм-канале показываем нашу работу

______

Приглашаем в офис и на демонстрационные экскурсии!

Оставляйте заявки на сайте!

sales@swsgroup.ru

+7(495) -118-28-18

Ставьте лайк и подписывайтесь на нас!

Больше проектов на нашем сайте swsgroup.ru