Найти в Дзене
Филдс

Жизнь удалась: квартира в «Москва-Сити» 50 м² с потрясающим видом для сдачи в аренду

Дизайнер Маргарита Посухова оформила однушку с мини-спальней общей площадью 50 м² для сдачи в аренду. Квартира располагается на 75-м этаже небоскреба в комплексе Москва-Сити. В интерьере удалось воплотить несколько нестандартных решений, благодаря которым жилье получилось по-настоящему уникальным. Планировка до и после Квартира сдавалась с открытой планировкой и несущим пилоном посреди комнаты. В итоге эта конструкция выступила в роли зонирующей перегородки и отделила спальню от столовой. Гостиная Гостиную разместили вдоль панорамных окон. Стены в комнате оформили в нейтральных холодных тонах. А чтобы добавить в интерьер теплые нотки, подобрали диван в коричневой обивке. Похожие товары Мягкую группу укомплектовали парой кресел в стилистике ар-деко и журнальным столиком с латунным основанием. Это помогло подчеркнуть статусность интерьера. Кресло на фото Кухня Кухня получилась достаточно сдержанной. Гарнитур построили линейно, его фасады практически сливаются со стенами. Чтобы не лиша
Оглавление

Дизайнер Маргарита Посухова оформила однушку с мини-спальней общей площадью 50 м² для сдачи в аренду. Квартира располагается на 75-м этаже небоскреба в комплексе Москва-Сити. В интерьере удалось воплотить несколько нестандартных решений, благодаря которым жилье получилось по-настоящему уникальным.

  • Общая площадь: 50 м²
  • Место: Москва
  • Тип дома: небоскреб в Москва-Сити
  • Количество комнат: 1
  • Кто здесь живет: сдается в аренду
  • Стилист: Ирина Темнова
  • Фото: Антон Лихтарович

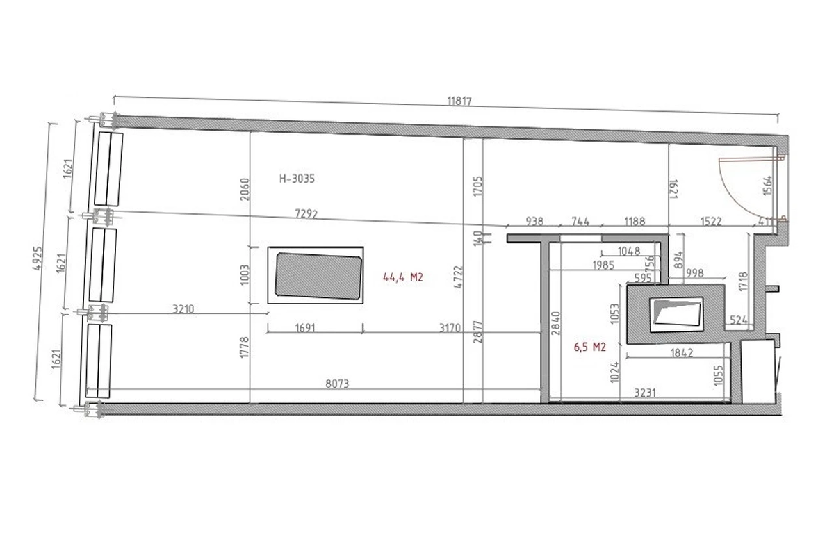
Планировка до и после

Квартира сдавалась с открытой планировкой и несущим пилоном посреди комнаты. В итоге эта конструкция выступила в роли зонирующей перегородки и отделила спальню от столовой.

Гостиная

Гостиную разместили вдоль панорамных окон. Стены в комнате оформили в нейтральных холодных тонах. А чтобы добавить в интерьер теплые нотки, подобрали диван в коричневой обивке.

Похожие товары

Столик журнальный Garda Decor 33FS-CT2029, d: 100 см, белый — купить в интернет-магазине по низкой цене на Яндекс Маркете

Мягкую группу укомплектовали парой кресел в стилистике ар-деко и журнальным столиком с латунным основанием. Это помогло подчеркнуть статусность интерьера.

Кресло на фото

Кресло Verona вращающееся велюр бежевый Bel Размер: 70*80*77 см Garda Decor — купить в интернет-магазине по низкой цене на Яндекс Маркете

Кухня

Кухня получилась достаточно сдержанной. Гарнитур построили линейно, его фасады практически сливаются со стенами. Чтобы не лишать функциональную зону естественного света, перегородку со спальней дополнили крупноформатным окном.

Столешницу рабочей поверхности завели на смежную стену, обустроив полубарную стойку, за которой можно перекусить. Латунные детали — фурнитура и светильник — добавляют интерьеру особую изюминку.

Спальня

Зону спальни разместили на подиуме, чтобы с еще большим комфортом любоваться видами на город — так диваны и кресла в гостиной не перекрывают обзор. Мини-комнату можно изолировать при помощи шторы.

На ширину пилона запланировали два встроенных шкафа: один из них смотрит в спальню, другой — в коридор. Также системы хранения есть внутри подиума.

Прихожая

При входе расположили вместительный встроенный шкаф, а также поставили небольшую консоль с фактурным основанием.

В коридор вынесли компактную барную зону, которую обозначили МДФ-панелями. Зеркальная стена напортив создает иллюзию наличия еще одной комнаты.

Похожие товары

Стул полубарный Turin серый с золотыми ножками / Стулья для кухни / Кухонные стулья со спинкой / Полубарные стулья / Барный стул / Мебель лофт — купить в интернет-магазине по низкой цене на Яндекс Маркете

Санузел

В санузле скомбинировали четыре вида керамогранита, поэтому интерьер получился достаточно динамичным. Тумбу под раковину изготовили на заказ. Благодаря ее сужающейся столешнице интерьер не выглядит заставленным. Освещение выстроили сразу на нескольких уровнях — предусмотрели общий свет, локальные подвесы и подсветку зеркала.

Интересные мнения в комментариях приветствуются. Если материал понравился — ставь лайк!

🖤 Филдс — это не только блог на Дзене, но и магазин дизайнерских предметов интерьера. Заходите на сайт, чтобы увидеть мебель, которую дизайнеры выбирают для своих проектов.