Найти в Дзене

Дизайн двухкомнатной квартиры в современном стиле: оттенки серого, рабочий стол и гардеробная в спальне

Интерьер с рабочим местом, гардеробной системой, текстурами дерева и яркими акцентами. Фото Привет! Меня зовут Карен Карапетян, я — архитектор и интерьерный дизайнер. Мы в компании Alexander Tischler проектируем и реализуем интерьеры, а также проектируем и производим корпусную мебель. Этот брутальный интерьер в современном стиле с яркими деталями мы спроектировали и реализовали для программиста. Основными пожеланиями заказчика было оставить обособленными кухню и гостиную, на кухне предусмотреть место для отдельно стоящего холодильника, сделать второй санузел с душем и поставить большой рабочий стол. Мы полностью отвечали за этот интерьер: разработали дизайн-проект, проконтролировали поставки и работы, спроектировали и произвели корпусную мебель. Планировка двухкомнатной квартиры 81 м² - В просторной спальне мы выделили место для гардеробной и хозяйственного шкафа
- Поставили рабочий стол длиной три с половиной метра
- Уменьшили ванную, благодаря чему в коридоре поместился шкаф для од
Оглавление

Интерьер с рабочим местом, гардеробной системой, текстурами дерева и яркими акцентами. Фото

Привет! Меня зовут Карен Карапетян, я — архитектор и интерьерный дизайнер. Мы в компании Alexander Tischler проектируем и реализуем интерьеры, а также проектируем и производим корпусную мебель.

Дизайн квартиры в серых оттенках
Дизайн квартиры в серых оттенках

Этот брутальный интерьер в современном стиле с яркими деталями мы спроектировали и реализовали для программиста. Основными пожеланиями заказчика было оставить обособленными кухню и гостиную, на кухне предусмотреть место для отдельно стоящего холодильника, сделать второй санузел с душем и поставить большой рабочий стол.

Мы полностью отвечали за этот интерьер: разработали дизайн-проект, проконтролировали поставки и работы, спроектировали и произвели корпусную мебель.

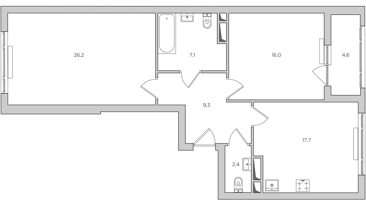
Планировка двухкомнатной квартиры 81 м²

- В просторной спальне мы выделили место для гардеробной и хозяйственного шкафа
- Поставили рабочий стол длиной три с половиной метра
- Уменьшили ванную, благодаря чему в коридоре поместился шкаф для одежды
- Вход на кухню перенесли в гостиную. Чтобы визуально объединить эти комнаты поставили дверь из тонированного стекла
- Изначально в прихожей нет места для хранения одежды и обуви. Мы увеличили санузел и поставили душ за счет переноса входа на кухню.

Интерьер выполнен в серо-бежевых и темно-серых оттенках. В проекте мы использовали несколько повторяющихся деталей: перегородки, двери и фасады из тонированного стекла, яично-желтые предметы мебели, ребристые элементы.

Темная и светлая сторона: дизайн гостиной в двух цветах

Подвесная тумба под телевизор, угловой диван и книжный шкаф

Обособленная гостиная с проходом на кухню
Обособленная гостиная с проходом на кухню

Гостиная с помощью цветов разделена на две эмоциональные зоны: строгая темная с графичным шкафом и светлая с расслабленным диваном. Напротив подвесная тумба с активной текстурой дерева из двух частей: открытые полки и ящик для хранения.

Гостиную по пожеланию хозяина мы оставили обособленной, это полноценная комната для отдыха с проходом на кухню. Этот вход мы перенесли сюда, чтобы добавить в гостевой санузел душевую. Кухня из гостиной просматривается через дверное полотно из тонированного стекла.

Какие стеновые панели мы использовали можно посмотреть на нашем сайте

Графичный шкаф для книг, декора и посуды со стеклянным фасадом и светодиодной подсветкой
Графичный шкаф для книг, декора и посуды со стеклянным фасадом и светодиодной подсветкой

Кухня с яркими акцентами

Прямой кухонный гарнитур с текстурой дерева и отдельным холодильником

На кухне поставили сразу несколько необычных интерьерных предметов: стол на металлических опорах со стеклянной столешницей и яркие стулья от Bontempi, обтянутые эко-кожей, над ними повесили круглые светильники Vibia.

Не делать встроенный холодильник — еще одно пожелание заказчика. Мы отодвинули его от остальной мебели, чтобы он стал равноправным элементом кухни, как самостоятельный объект. Дополнили холодильник вертикальным светильником Vibia.

Посмотреть размеры и смету кухонного гарнитура можно на нашем сайте

Интерьер мужской спальни

Рабочий стол в спальне, гардеробная, большая кровать с мягким изголовьем

В этой комнате тоже есть элементы с текстурой дерева: рабочий стол, панели за кроватью и прикроватные тумбы. Рабочий стол мы разместили напротив кровати, его длина три с половиной метра. Он сделан без единой опоры и смонтирован на металлическом каркасе. Стену над ним мы хотели сделать более фактурной и поставили рельефную стеновую панель.

Подвесной рабочий стол
Подвесной рабочий стол

Гардеробную мы сделали при спальне и зонировали перегородками из тонированного стекла. В ней мы сочетаем несколько типов хранения: открытая система, закрытые шкафы, ящики. Красивая одежда может висеть на виду, аксессуары лежать в широких ящиках, а несезонную одежду можно убрать в шкаф.

Детали гардеробной можно посмотреть на нашем сайте

Современный дизайн ванной комнаты

В ванной тумба под раковину с акцентным модулем по цвету перекликается со стульями на кухне и пуфом в прихожей. Вертикальный светильник также продолжает единый стиль. С другой стороны зеркала мы смонтировали светодиодную подсветку. Свет подчеркивает фактуру плитки на этой стене.

Справа от входа — пенал со стиральной и сушильной машинами. В нем мы предусмотрели вытяжку.

Над инсталляцией — распашные фасады для хранения бытовых вещей.

Душевая вместо коридора

На этом месте на планировке застройщика был небольшой санузел площадью 2,4 м². Мы увеличили площадь санузла до 4 м² и поставили душ за счет коридора и переноса входа на кухню.

Светлая прихожая

Непосредственно в грязной зоне прихожей нет места для полноценного шкафа, мы сделали крючки для одежды и небольшой шкаф с поперечной развеской вещей.

Остальное хранение — в шкафу дальше по коридору, где мы также расположили слаботочный, электрический щиты и коллектор отопления.

Мы сделали индивидуальный мужской интерьер, использовали геометричное сочетание строгих цветов, активную текстуру дерева, графичные фасады и панели. Сдержанный дизайн разбавили яркими акцентами.

Этот интерьер со всеми деталями можно рассмотреть в подробном видеообзоре по ссылке

Подробная смета этого интерьера есть на нашем сайте