Добавить в корзинуПозвонить
Найти в Дзене

Дизайн двухэтажного дома: обзор проекта коттеджа площадью 214 м.кв. в КП Петровские Сады. Часть 1

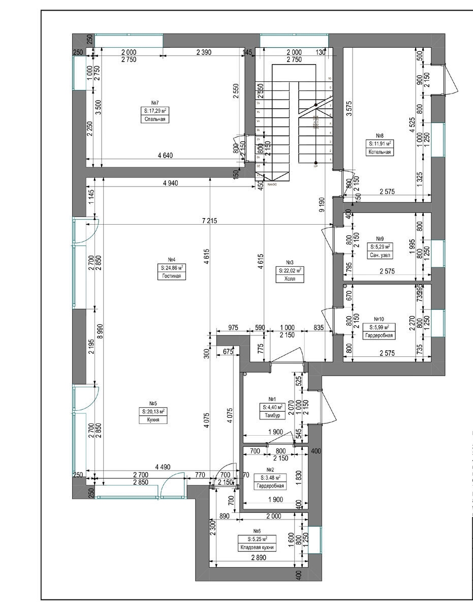
В этой статье подробно рассмотрим проект дома, который наша студия DesArch предложила молодой паре. Разберем концепцию, отметим важные детали и уделим внимание материалам. Задачи. Для хозяев важно было оставить пространство просторным, по максимуму убрать визуальный шум и организовать много закрытых мест хранения «под потолок». Детей у них пока нет, однако в будущем хотели бы, поэтому необходимо было сделать детскую. Из других важных задач – обустроить отдельное пространство для гостей, так как пара любит приглашать домой родственников и друзей, а также выделить место для собаки. Обмерный план 1 этажа Сначала ознакомимся с обмерным планом и планом расстановки мебели, а затем и с 3D-визуализациями каждой комнаты 1 этажа. Первый этаж – это просторное помещение с достаточной освещенностью за счет широких панорамных окон. Большую часть 1 этажа занимает зона кухни и гостиной, не разделенная стенами и колоннами. Из жилых помещений на этаже есть:
- гостевая спальня,
- гардеробная для хранени

В этой статье подробно рассмотрим проект дома, который наша студия DesArch предложила молодой паре. Разберем концепцию, отметим важные детали и уделим внимание материалам.

Задачи. Для хозяев важно было оставить пространство просторным, по максимуму убрать визуальный шум и организовать много закрытых мест хранения «под потолок». Детей у них пока нет, однако в будущем хотели бы, поэтому необходимо было сделать детскую. Из других важных задач – обустроить отдельное пространство для гостей, так как пара любит приглашать домой родственников и друзей, а также выделить место для собаки.

Обмерный план 1 этажа

Сначала ознакомимся с обмерным планом и планом расстановки мебели, а затем и с 3D-визуализациями каждой комнаты 1 этажа.

Первый этаж – это просторное помещение с достаточной освещенностью за счет широких панорамных окон. Большую часть 1 этажа занимает зона кухни и гостиной, не разделенная стенами и колоннами. Из жилых помещений на этаже есть:
- гостевая спальня,
- гардеробная для хранения вещей,
- котельная, которая объединяет в себе технические функции по обогреву дома, а также лапомойку для собаки,

- прихожая с гардеробной для верхней одежды,
- санузел,
- кладовая кухни,
- лестница на второй этаж.

Комнаты 1 этажа

Заходя в дом, мы попадаем в прихожую.

Прихожая выполнена в минималистичном стиле в серых тонах с добавлением деревянных элементов. Зеркало в полный рост с подсветкой визуально расширяет пространство.

В прихожей установили дверь скрытого монтажа в малую гардеробную, за счет чего стена кажется единой, что не съедает пространство.

Пространство гардеробной достаточно узкое, поэтому мы расширили его зеркалом в пол. По бокам расположены закрытые и открытые места хранения для быстрого доступа к повседневной верхней одежде. Гардеробная выдержана в цветах прихожей.

Выходя из гардеробной через прихожую, мы попадаем в общее пространство, которое объединило гостиную и кухню, а справа видим двери в большую гардеробную и санузел, поэтому сначала остановимся на них.

В этой гардеробной интерьер выполнен в молочном цвете, который отражает свет из окна. Освещение выполнено потолочными спотами. Места хранения с обеих сторон расположены практически симметрично: шкафы и многие полки находятся друг напротив друга.

Следующая дверь за гардеробной – дверь в совмещенный санузел. Здесь, в основном, использован керамогранит под мрамор.

Ванная комната разделена на две зоны. Раковина расположилась между двумя стенами, что позволило обеспечить места хранения гигиенических принадлежностей. Расстояние между унитазом и раковиной рассчитано так, что ящикам ничего не будет мешать открываться полностью. Места хранения в душевой расположены в стене – так, чтобы максимально сохранить площадь двухметровой кабины и скрыть визуальный шум. Гигиенические принадлежности не будут видны, если вы не находитесь в душе. Полотенца висят прямо в душевой на таком расстоянии, что вода на них не попадает. В эту стену вмонтирован электрический теплый пол, за счет чего полотенца сушатся. Мы избежали установки полотенцесушителя, сохраняя стены вне душа гладкими. Такой же подход мы использовали в мастер-ванной и санузле на втором этаже.

Трубы водоснабжения и счетчики находятся за створками стены за унитазом, которые открываются, как двери шкафа. Это дает легкий и быстрый доступ ко всей сантехнике.

Общее пространство совмещает кухню, гостиную и холл, а также лестницу на второй этаж, которую мы видим сразу, как выходим из прихожей. Под лестницей также находится лежанка для собаки.

Слева установлена декоративная перегородка с зеркалом и фрезерованными стеновыми панелями, которые далее будут перекликаться со стеновыми панелями гостиной.

Общее пространство. Вид на зеркало
Общее пространство. Вид на зеркало

За перегородкой – гостиная.

На 24 кв. м разместился примыкающий к перегородке угловой трехметровый модульный диван, который можно разобрать и переставить, телевизор и консоль, настоящий камин, а также небольшая мебель в виде пуфа и журнального столика. Дровница органично дополнила интерьер, пересекаясь с деревянной структурой пола.

Ширина прохода (1,2 м), разделяющего гостиную и кухню, рассчитана так, чтобы даже выдвинутый из-за обеденного стола стул позволял свободно проходить между мебелью. Зоны отделены также разным покрытием пола: керамогранит в зоне кухни и инженерная доска в гостиной.

Визуализация кухни
Визуализация кухни

Несмотря на большое количество естественного света, проникающего на кухню, ее решили выполнить в светлых тонах, используя те же материалы, что уже были рассмотрены.

Пол, фартук над рабочей поверхностью, столешница и остров – с одинаковой отделкой, что создает целостность интерьера. Зона готовки разделена с раковиной и холодильником, однако такое расположение не нарушает «правило треугольника». Повару будет удобно перемещаться между этими зонами. Отсутствует привычная вытяжка над плитой. Здесь она встроена в варочную поверхность, поэтому ее размеры и стоимость превышают стандарты.

Над обоими столами продумано легкое, «невесомое» освещение, которое практически незаметно за готовкой или приемом пищи. «Графичное» черное освещение перекликается с элементами бытовой техники и смесителем. Остров используется как место для приготовления пищи, а также как полубарная стойка. Это место подойдет для быстрого завтрака. В острове предусмотрены розетки, поэтому за стойкой можно поработать за ноутбуком.

Из кухни можно попасть в кладовую, которая скрыта за почти незаметной дверью между раковиной и панорамным окном. Все двери дома скрытого монтажа, за счет чего нет ощущения нагромождения.

В кладовой 5,25 кв. м есть открытые и закрытые места хранения. Плюс этой кладовой в том, что в ней появляется естественный свет за счет небольшого окна. Именно за счет кладовой удается сохранить «воздушность» кухни, которая обусловлена малой заставленностью.

Последний объект первого этажа – гостевая спальня.

Как и другие комнаты дома, спальня выполнена в белом и сером цветах с деревянными текстурами. Угловое панорамное окно гармонично продолжает стены. Мы применили различные сценарии освещения: трековое освещение по периметру, подсветка над карнизом и торшер. Визуально комната разделена на зону сна и зону отдыха, чего удается достичь использованием минимального количества мебели и предметов декора.

Шкаф состоит из трех отделений, которые поворачиваются до 180 градусов. В каждом из них – скрытые места хранения с двух сторон. Створка у стены шириной 60 см предназначена для плечиков, две другие по 40 см – как для одежды, так и для книг. Подробный механизм шкафа в отдельном видео тут.

На этом обзор первого этажа закончен. А обзор второго этажа в следующей статье. Пока давайте обсудим в комментариях, что понравилось в дизайне этого дома?