Найти в Дзене

Магия преображения от Remplanner: из неудобной «распашонки» в функциональную квартиру, где есть все!

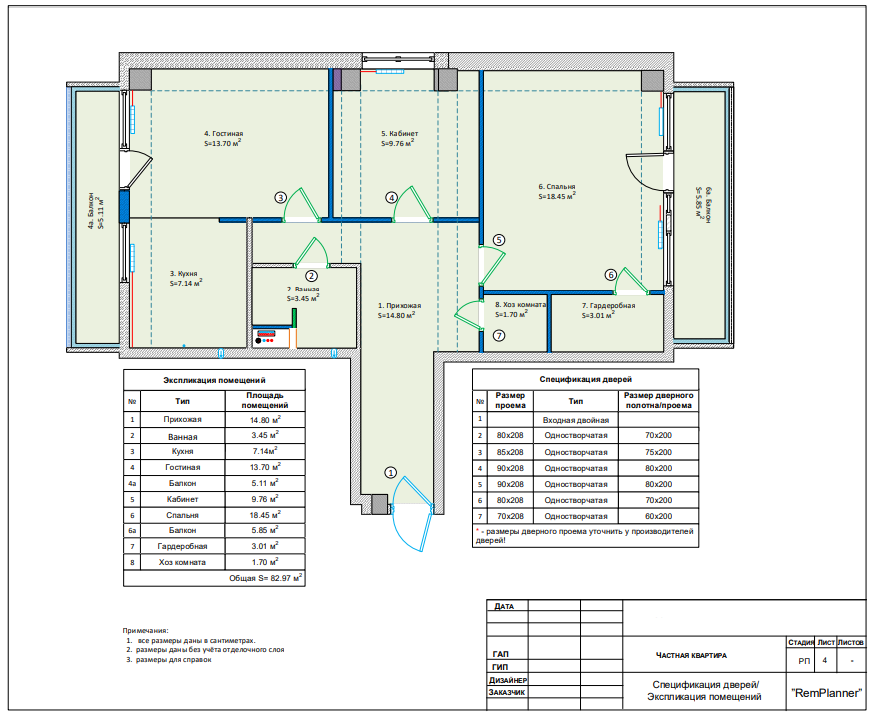
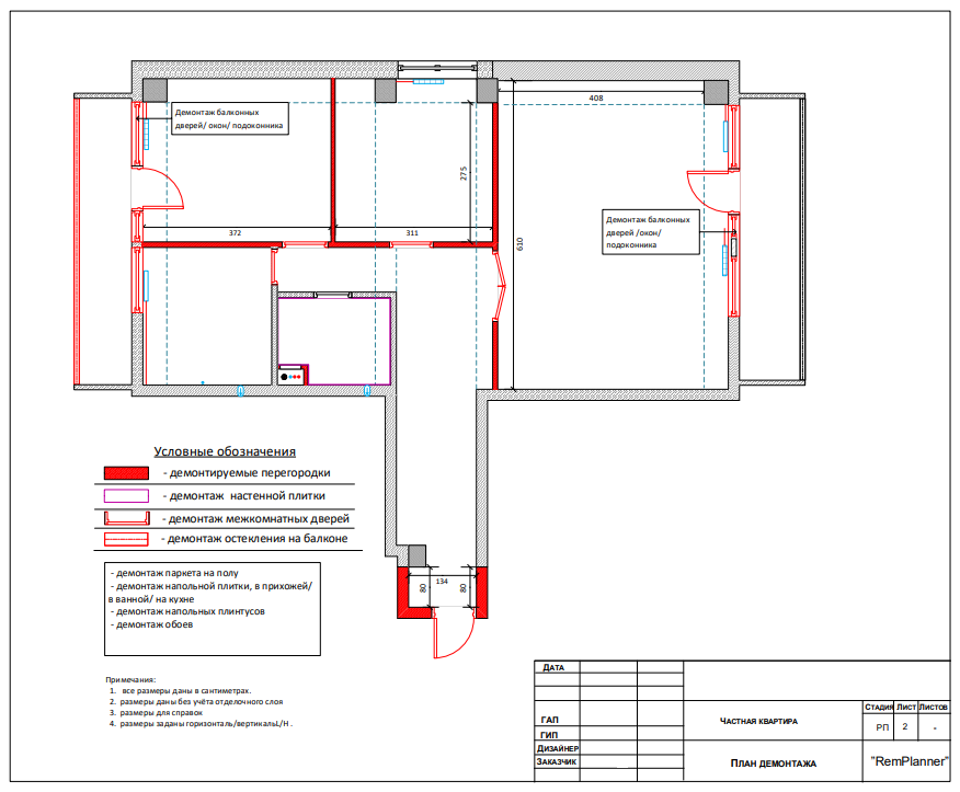
В новом проекте дизайнерам Remplanner предстояло превратить квартиру планировки «распашонка» с крохотной кухней 7 м2 и небольшими спальнями, в просторную квартиру для супружеской пары. Во-первых, нужна была полноценная кухня, в которой уместилась бы вся современная техника и осталось место для рабочего стола. Во-вторых, зона столовой, где можно было бы комфортно поужинать вдвоем или с гостями. И наконец, владельцы квартиры мечтали об уютной гостиной с небольшим электрокамином. Благодаря сносу перегородок и объединению кухни и комнаты, нам удалось спланировать П-образную кухню объединенную с гостиной. За счет такой планировки удалось не только получить большую площадь рабочей зоны, но и без проблем разместить технику. Зону столовой разместили в небольшой гостиной, где также нашлось место для турника, о котором просил хозяин квартиры. Другим важным пожеланием было создание комфортной спальни с полноценной гардеробной, и организация небольшого хозблока. С этой целью мы уменьшили площадь

В новом проекте дизайнерам Remplanner предстояло превратить квартиру планировки «распашонка» с крохотной кухней 7 м2 и небольшими спальнями, в просторную квартиру для супружеской пары.

Во-первых, нужна была полноценная кухня, в которой уместилась бы вся современная техника и осталось место для рабочего стола. Во-вторых, зона столовой, где можно было бы комфортно поужинать вдвоем или с гостями. И наконец, владельцы квартиры мечтали об уютной гостиной с небольшим электрокамином.

Фото портфолио Remplanner
Фото портфолио Remplanner

Благодаря сносу перегородок и объединению кухни и комнаты, нам удалось спланировать П-образную кухню объединенную с гостиной. За счет такой планировки удалось не только получить большую площадь рабочей зоны, но и без проблем разместить технику. Зону столовой разместили в небольшой гостиной, где также нашлось место для турника, о котором просил хозяин квартиры.

Другим важным пожеланием было создание комфортной спальни с полноценной гардеробной, и организация небольшого хозблока. С этой целью мы уменьшили площадь бывшей гостиной, перенесли туда спальню. Площадь спальни получилась 18.45 м2 (изначальная комната была 24 м2), гардеробная 3 м2 – вход из спальни, и хозблок, чуть меньше 2 м2, вход туда из коридора.

На месте одной из маленьких спален был спроектирован полноценный рабочий кабинет. При необходимости он превращается в гостевую спальню, т.к. там предусмотрен комфортный раскладной диван.

В совмещенном санузле было решено убрать ванну и сделать на ее месте просторную душевую. Это позволило выиграть немного пространства в крохотной ванной комнате (площадь 3.45 м2). Для ее отделки использован крупноформатный керамогранит под мрамор, а душевой поддон и стена позади унитаза выложены каменной мозаикой, которая хорошо сочетается с МДФ фасадами дверей встроенного шкафа и тумбы-умывальника.

Поскольку нам пришлось делать перепланировку, причем с учетом требований БТИ, расширить удалось только ту часть коридора, куда выходят двери спальни и кабинета. В торце небольшого коридора, куда выходят двери в ванную и гостиную (открываются в разных направлениях, это важно учитывать в таких узких коридорах), мы разместили встроенный шкаф. Он прекрасно вписался на место бывшего входа в кухню.

Фото портфолио Remplanner
Фото портфолио Remplanner

В целом, в этом проекте нам удалось расширить жилое пространство, увеличить функциональную площадь кухни, и вписать достаточное количество мест хранения, несмотря на непродуманность этой типовой планировки.

Если вы планируете ремонт в доме со старой типовой планировкой, очень важно грамотно подойти к работе над проектом. Часто удается с минимальным демонтажем полностью преобразить старую квартиру, максимально использовав ее пространство. Если вам нужна консультация дизайнера или технически дизайн-проект, наши дизайнеры всегда готовы вам помочь. Кроме того, наша студия много лет занимается ремонтом квартир, и имеет немалый опыт в реализации перепланировок вторички.