Найти в Дзене
Филдс

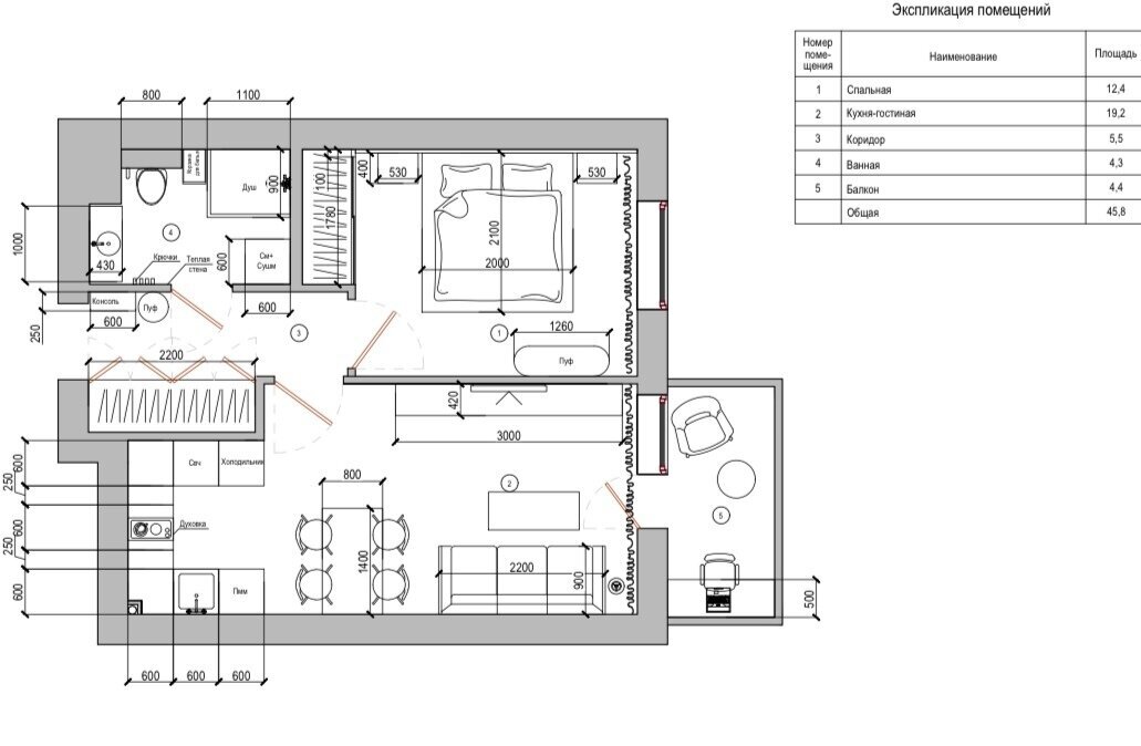
Как дизайнер оформила евродвушку 46 м² для айтишника, который любит автомобили

Дизайнер Анастасия Заркуа оформила евродвушку площадью 46 м² для айтишника, который также интересуется автомобилями. За основу взяли стиль лофт, но смягчили его уютными деталями и внесли краски. Планировка Квартира имеет типичную для евродвушки планировку, включающую общую кухню-гостиную и отдельную спальню. Вопрос с хранением решили с помощью двух встроенных шкафов — в прихожей и спальне. Чтобы вместить в санузел стиральную машину, вместо ванны организовали душевую зону. Гостиная Стены покрыли декоративной штукатуркой, которая создает лофтовую бетонную поверхность. Прохладную отделку уравновесили деревом — пол уложили инженерной доской. Зону отдыха выделили мягким геометричным ковром. Диван вносит умеренный зеленый акцент. Стену за ним украсили постерами на автомобильную тематику. Строгую отделку также смягчили оконным текстилем в несколько слоев. Похожие товары Телевизор обрамили системой хранения. Ее составили из секций, которые приобрели в IKEA. На прилегающем к гостиной балко
Оглавление

Дизайнер Анастасия Заркуа оформила евродвушку площадью 46 м² для айтишника, который также интересуется автомобилями. За основу взяли стиль лофт, но смягчили его уютными деталями и внесли краски.

  • Общая площадь: 46 м²
  • Количество комнат: евродвушка
  • Кто здесь живет: мужчина
  • Стилист: Наталья Орешкова
  • Фото: Максим Максимов

Планировка

Квартира имеет типичную для евродвушки планировку, включающую общую кухню-гостиную и отдельную спальню. Вопрос с хранением решили с помощью двух встроенных шкафов — в прихожей и спальне. Чтобы вместить в санузел стиральную машину, вместо ванны организовали душевую зону.

Гостиная

Стены покрыли декоративной штукатуркой, которая создает лофтовую бетонную поверхность. Прохладную отделку уравновесили деревом — пол уложили инженерной доской.

Зону отдыха выделили мягким геометричным ковром. Диван вносит умеренный зеленый акцент. Стену за ним украсили постерами на автомобильную тематику. Строгую отделку также смягчили оконным текстилем в несколько слоев.

-3

Похожие товары

Прямой диван Мебиор Вивьен — купить в интернет-магазине по низкой цене на Яндекс Маркете

Телевизор обрамили системой хранения. Ее составили из секций, которые приобрели в IKEA.

-4

На прилегающем к гостиной балконе организовали лаунж-зону.

-5

Границей между кухней и гостиной стала мини-столовая. Лаконичная обеденная группа вкупе со светильниками оттеняет преимущественно светлый интерьер графичными линиями.

-6

Похожие товары

Стул R-Home Франк, массив дерева/текстиль, цвет: грей/темный орех — купить в интернет-магазине по низкой цене на Яндекс Маркете

Кухня

Гарнитур сделали на заказ и встроили в нишу буквой П. Всю технику интегрировали внутрь шкафов. Функцию хранения в основном взял на себя верхний ярус. За счет светлых фасадов конструкция не выглядит тяжеловесной. Кухню также зонировали на уровне пола — здесь постелили плитку-терраццо.

-7

Спальня

Спокойную гамму оживили обилием фактур. Для отделки стены за кроватью использовали керамогранит под мрамор и рельефные панели. Для комфортного сна предусмотрели мягкое изголовье.

Постель дополнили лаконичными прикроватными тумбами. В глубине комнаты разместили встроенный шкаф-купе, который не выбивается из общей палитры. Выбрали откатные двери, поскольку для открытия распашных не хватило бы места.

-9

Прихожая

В прихожей систему хранения встроили в нишу. Ее закрыли зеркальными фасадами, которые визуально расширяют узкое пространство. Дверь скрытого монтажа, которая ведет в санузел, слили с отделкой.

Санузел

Санузел облицевали плиткой-терраццо, которую задействовали в кухне и прихожей. Ее дополнили акцентной оранжевой керамикой. Темные профили перегородки в душе, сантехника, аксессуары, розетки и выключатели вносят графичные штрихи.

Интересные мнения в комментариях приветствуются. Если материал понравился — ставь лайк!

🖤 Филдс — это не только блог на Дзене, но и магазин дизайнерских предметов интерьера. Заходите на сайт, чтобы увидеть мебель, которую дизайнеры выбирают для своих проектов.