Найти в Дзене
ЭТО ВАШ ИНТЕРЬЕР

До и После — Родители купили своему сыну старую "однушку" площадью 43 кв. метров и сделали в ней стильный ремонт

Данную квартиру наши герои приобрели недавно, но не для себя, а для своего сына-студента, который поступил в институт. Изначально, эта была типичная "однушка", но после приезда дизайнера, было решено сделать здесь полноценную "двушку". Проект Прихожая Вся переделка началась с перепланировки. Стены в прихожей покрасили в белый цвет. Пол выложен темной крупноформатной плиткой. Напротив входной двери, в нише, расположилась вместительная система хранения до самого потолка. Слева от неё повесили зеркало в черной раме. Гостиная Эту комнату решили разделить на две части: первая часть - гостиная, вторая - спальня. Гостиную от прихожей зонировали небольшим стеллажом. Напольное покрытие выложено ламинатом. Стены оклеены светлыми обоями. За стеллажом разместили ярко-красный диван, который является акцентом в помещении. Напротив него организовали рабочее место с полками для книг и учебников. Спальня Часть комнаты у окна отдали под полноценную спальню. Здесь расположилась большая синяя кровать и м
Оглавление

Данную квартиру наши герои приобрели недавно, но не для себя, а для своего сына-студента, который поступил в институт. Изначально, эта была типичная "однушка", но после приезда дизайнера, было решено сделать здесь полноценную "двушку".

Проект

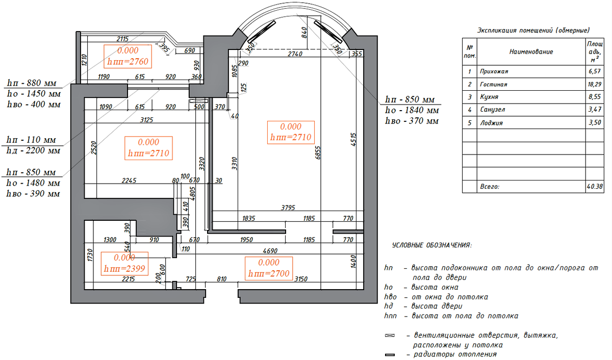
  • Местонахождение: г. Москва
  • Площадь квартиры: 43 кв. м
  • Владельцы: молодой человек

Прихожая

Вся переделка началась с перепланировки. Стены в прихожей покрасили в белый цвет. Пол выложен темной крупноформатной плиткой. Напротив входной двери, в нише, расположилась вместительная система хранения до самого потолка. Слева от неё повесили зеркало в черной раме.

Гостиная

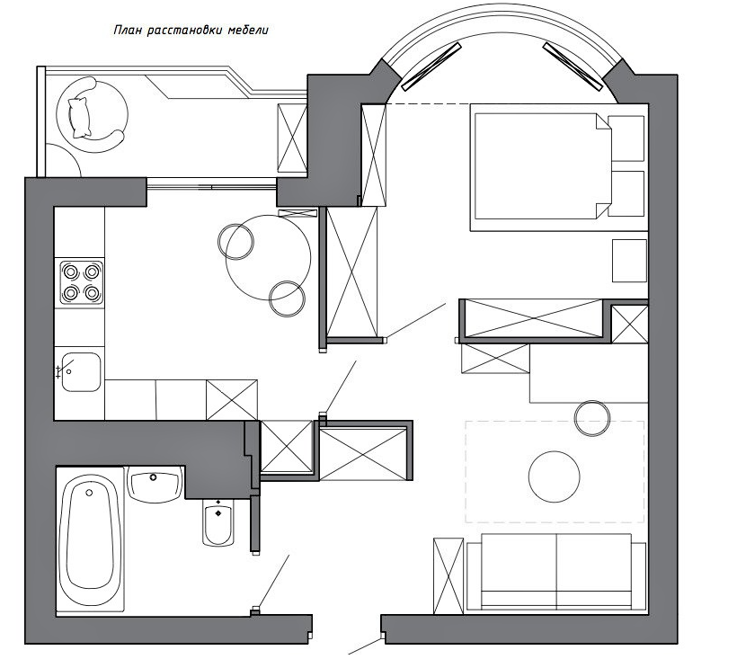
Эту комнату решили разделить на две части: первая часть - гостиная, вторая - спальня. Гостиную от прихожей зонировали небольшим стеллажом. Напольное покрытие выложено ламинатом. Стены оклеены светлыми обоями. За стеллажом разместили ярко-красный диван, который является акцентом в помещении. Напротив него организовали рабочее место с полками для книг и учебников.

Спальня

Часть комнаты у окна отдали под полноценную спальню. Здесь расположилась большая синяя кровать и множество мест для хранения. Стену за изголовьем оклеили яркими обоями. В перегородке под потолком сделали стеклянные фрамуги, чтобы в гостиную попадал естественный свет.

Кухня

Кухня в квартире полностью изолированная. Напольное покрытие выложено плиткой. Стены имеют светлый оттенок. Фасады углового гарнитура выполнены в классическом белом цвете. Холодильник встал в нише, где раньше был проход на кухню. Здесь так же имеется столовая группа с дизайнерскими стульями. Балконные двери поменяли на полностью остекленные.

Ванная комната

Санузел совмещенный. Стены и пол выложены крупноформатной бежевой плиткой. Для контраста, тумбу под раковину выбрали в насыщенном синем цвете.

-7

Если вам понравилась статья, то не забудьте поставить лайк и подписаться, чтобы не пропустить новый материал!

Так же пишите в комментариях, что вам понравилось в этом проекте, а что вызывает сомнения.

Если вам будет интересно, то заходите на мой второй новый канал)