Найти в Дзене
Business Class

Рынок «Гача» в Перми размежуют на 59 земельных участков в три этапа

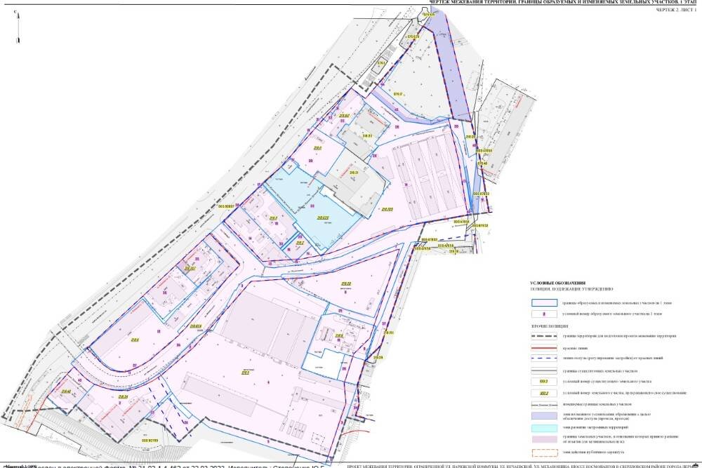
Министерство по управлению имуществом и градостроительной деятельности утвердило проект межевания территории, ограниченной улицами Механошина, Нечаевской, Парижской Коммуны, а также шоссе Космонавтов. Согласно документации на указанной территории образуют 59 земельных участков в три этапа. Первый этап станет самым объемным. По итогам его проведения появится 45 земельных участков суммарной площадью в 53,2 тыс. кв. метров. Большая часть территорий сохранит исходный вид разрешенного использования (ВРИ). В то же время появится девять участков под торговые и торгово-развлекательные центры, несколько – под служебные гаражи. Здесь существует несколько земельных участков (по шоссе Космонавтов, 23 и 25) под многоквартирную застройку, но дома на них уже есть. На сегодняшний день участок под домом по шоссе Космонавтов, 23 изъят, после его сноса ВРИ изменят на государственное управление. Второй этап подразумевает образование девяти земельных участков общей площадью почти в 29,5 тысячи квадратов. С

Министерство по управлению имуществом и градостроительной деятельности утвердило проект межевания территории, ограниченной улицами Механошина, Нечаевской, Парижской Коммуны, а также шоссе Космонавтов. Согласно документации на указанной территории образуют 59 земельных участков в три этапа.

Первый этап станет самым объемным. По итогам его проведения появится 45 земельных участков суммарной площадью в 53,2 тыс. кв. метров. Большая часть территорий сохранит исходный вид разрешенного использования (ВРИ). В то же время появится девять участков под торговые и торгово-развлекательные центры, несколько – под служебные гаражи. Здесь существует несколько земельных участков (по шоссе Космонавтов, 23 и 25) под многоквартирную застройку, но дома на них уже есть. На сегодняшний день участок под домом по шоссе Космонавтов, 23 изъят, после его сноса ВРИ изменят на государственное управление.

-2

Второй этап подразумевает образование девяти земельных участков общей площадью почти в 29,5 тысячи квадратов. Среди них подавляющее количество вновь сохранят существующие ВРИ, появится два участка под ТЦ и ТРК, а также участок под спортплощадку.

-3

На третьем этапе образуют или изменят пять земельных участков совокупной площадью почти в 47 тыс. кв. метров. Два самых крупных из них (22,1 тыс. кв м и 15 тыс. кв. м) получат вид разрешенного использования под торговые и торгово-развлекательные комплексы. Еще один новый земельный участок площадью в 3,9 тысячи квадратов разрешат использовать для делового управления.

-4

Из 59 образуемых/изменяемых участков 21 территория предусмотрена под организацию улично-дорожной сети. Она займет почти 15 тыс. кв. м пространства согласно документации.

Напомним, в начале 2022 года владельцы рынка «Гача» направили в комиссию по подготовке проекта Правил землепользования и застройки Перми предложение об установлении на территории своего актива подзоны жилой застройки с предельной высотой в 3, 16, 25 и 30 этажей. Члены комиссии отказали заявителям, порекомендовав доработать проект в части обеспеченности социальной инфраструктурой. Позже стало известно, что на территории «Гачи» может появиться зона комплексного развития территории (КРТ). В июне того же года Минимущества предложило установить границы КРТ на нескольких площадках в Перми, в том числе и на территории «Гачи». Но речь не шла об инициации проекта комплексного развития, только об установлении границ.

​Власти планируют вовлечь 31 участок под новое жилье в Перми после сноса аварийных домов

Изображения в новости: Приказ Министерства от 22.03.2023 № 31-02-1-4-462 «Об утверждении проекта межевания территории, ограниченной ул. Парижской Коммуны, ул. Нечаевской, ул. Механошина, шоссе Космонавтов в Свердловском районе города Перми»