Добавить в корзинуПозвонить
Найти в Дзене
4living

Комната для родителей и ребенка

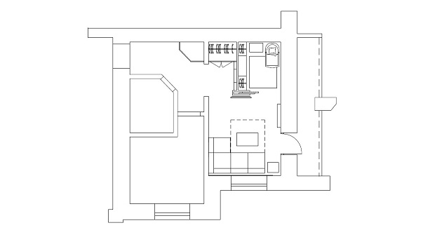
Как спланировать зонирование комнаты, чтобы в ней можно было разместить и гардеробную, и зону для ребенка? За консультацией мы обратились к архитектору Валерии Сенькиной. Она посоветовала сразу позаботиться об отдельном и комфортном уголке для будущего малыша, зонировав пространство комнаты путем возведения дополнительной перегородки.  Планировка, предложенная архитектором: зонирование с помощью небольшой дополнительной перегородки позволило предусмотреть комфортный уголок для новорожденного и выполнить другие пожелания хозяйки. В результате при входе в комнату, слева, образуется место для довольно вместительного шкафа около 90 см глубиной. При грамотном расположении внутренних секций в нем можно разместить все необходимое.   Внутреннее устройство шкафа нужно хорошо продумать, и тогда в нем на разных уровнях поместятся одежда, белье, обувь и многие другие вещи. На стенке перегородки, напротив входа в комнату, архитектор предлагает сделать неглубокие, порядка 12-15 см, полочки (их може
Детская Lara от фабрики Forni mobili.
Детская Lara от фабрики Forni mobili.

Как спланировать зонирование комнаты, чтобы в ней можно было разместить и гардеробную, и зону для ребенка?

За консультацией мы обратились к архитектору Валерии Сенькиной. Она посоветовала сразу позаботиться об отдельном и комфортном уголке для будущего малыша, зонировав пространство комнаты путем возведения дополнительной перегородки. 

Планировка, предложенная архитектором: зонирование с помощью небольшой дополнительной перегородки позволило предусмотреть комфортный уголок для новорожденного и выполнить другие пожелания хозяйки.

В результате при входе в комнату, слева, образуется место для довольно вместительного шкафа около 90 см глубиной. При грамотном расположении внутренних секций в нем можно разместить все необходимое.  

Шкаф Pier от фабрики B & B Italia, дизайн Studio Kairos.
Шкаф Pier от фабрики B & B Italia, дизайн Studio Kairos.

Внутреннее устройство шкафа нужно хорошо продумать, и тогда в нем на разных уровнях поместятся одежда, белье, обувь и многие другие вещи.

На стенке перегородки, напротив входа в комнату, архитектор предлагает сделать неглубокие, порядка 12-15 см, полочки (их может быть 3-4 шт.), распределенные по высоте. Здесь вы сможете расположить какие-то радующие глаз мелочи, свечи, небольшие сувениры и даже книги небольшого формата. Эту стенку также можно выделить контрастным цветом краски или обоев.  

За перегородкой образуется отдельный уголок для ребенка. Слева в нем располагается функциональная мебельная композиция — в шкафчиках можно повесить часть одежды и предусмотреть полки и ящики для хранения детских вещей в будущем.

В образовавшемся отсеке отлично поместятся детская кроватка и небольшой комод для вещей, которые должны быть под рукой. 

Детская кроватка Pia+Additional side part от фабрики Pinolino.
Детская кроватка Pia+Additional side part от фабрики Pinolino.

Кроватку лучше купить на колесиках, чтобы ее можно было легко передвигать с места на место.