Найти в Дзене
Ландшафтный гуру

"Как экономить на счетах?" — семейная пара показала свой автономный дом в лесу

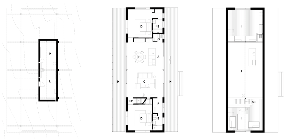
Наши герои являются профессиональными архитекторами, которые имеют свою собственную архитектурную студию в Нью-Йорке. Настал момент, когда они решили создать себе дом, который будет очень энергосберегающим. Данный дом они спроектировали самостоятельно опираясь на все стандарты автономного дома. Этот дом они решили построить по технологии SIP. Одно из преимуществ такой технологии состоит в том, что на обогрев такого дома тратиться в двое меньше энергии (если сравнивать с обычным домом). Фасад дома облицован лиственницей. Энергию в доме, с апреля по ноябрь обеспечивают 24 солнечные батареи, которые установлены на крыше. В остальное время здесь работает электрокотел. Так же в доме имеется просторный подвал с современной системой вентиляцией. Если говорить простым языком, эта система отфильтровывает и возвращает обратно в дом примерно 60 процентов произведенного тепла (которое выделяется самими людьми и бытовыми приборами). В центре дома расположилась просторная кухня-гостиная, которая в

Наши герои являются профессиональными архитекторами, которые имеют свою собственную архитектурную студию в Нью-Йорке. Настал момент, когда они решили создать себе дом, который будет очень энергосберегающим.

Данный дом они спроектировали самостоятельно опираясь на все стандарты автономного дома. Этот дом они решили построить по технологии SIP. Одно из преимуществ такой технологии состоит в том, что на обогрев такого дома тратиться в двое меньше энергии (если сравнивать с обычным домом).

-2

Фасад дома облицован лиственницей. Энергию в доме, с апреля по ноябрь обеспечивают 24 солнечные батареи, которые установлены на крыше. В остальное время здесь работает электрокотел.

Так же в доме имеется просторный подвал с современной системой вентиляцией. Если говорить простым языком, эта система отфильтровывает и возвращает обратно в дом примерно 60 процентов произведенного тепла (которое выделяется самими людьми и бытовыми приборами).

В центре дома расположилась просторная кухня-гостиная, которая выполнена в минималистичном стиле. Здесь нет лишних деталей, а бытовая техника почти вся встроенная. Благодаря панорамным окнам здесь всегда много естественного света. На окнах стоят специальные стеклопакеты с тройным остеклением, повышенной шумо- и термоизоляцией.

Вся внутренняя отделка дома выполнена в светлых тонах с обилием дерева. На постройку дома ушло примерно 12 месяцев.

-6
"Конечно, такой дом вышел дороже обычного дома, но зато он окупится уже через 6-10 лет" — говорит хозяйка дома.
-7

Если вам понравилась статья, то не забудьте поставить лайк и подписаться, чтобы не пропустить новый материал!

Делитесь своим мнением в комментариях)