Найти в Дзене
GREY HOUSE

Каркасный дом 84 кв.м.

Оглавление

Дом по проекту Химос с 2-мя спальнями.

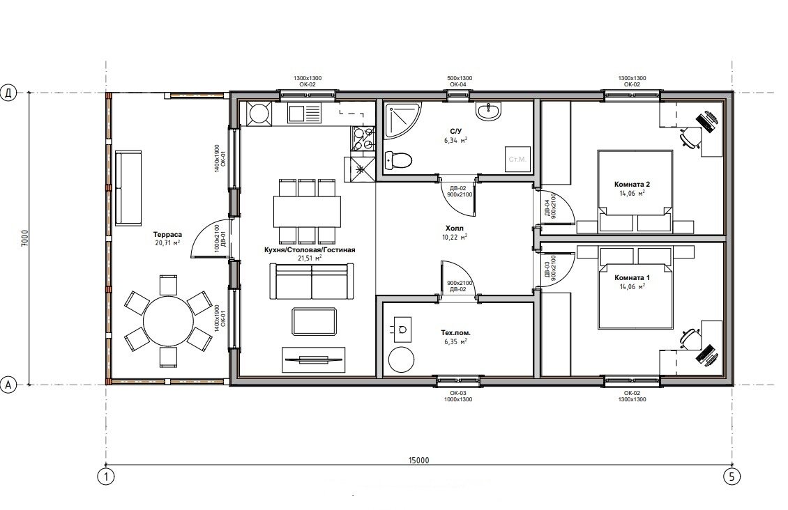
Размеры дома - 15х7м

Планировка дома

Планировка дома 12х7м
Планировка дома 12х7м

Возможные планировки

Планировка дома 12х7м 84 м2
Планировка дома 12х7м 84 м2
Планировка дома 12х7м 84м2
Планировка дома 12х7м 84м2

КОМПЛЕКТАЦИЯ ДОМА:

  • Фундамент - бетонные сваи 150х150х4000 мм
  • Каркас дома сухой строганый 45х145мм
  • Ветрозащита Jutavek 115
  • Отделка снаружи - скандинавская доска толщиной 21 мм с заводской покраской
  • Отделка внутри - имитация бруса толщиной 16 мм
  • Утепление пола и потолка 200 мм, утепление стен 150 мм Paroc
  • На полу OSB толщиной 22м
  • Кровля - металлочерепица толщиной 0,45 мм
  • Отделка террасы - лиственница 28мм
  • Окна ПВХ Rehau Grazio толщиной 70 мм двойной стеклопакет, Дверь входная ПВХ Rehau толщиной 70 мм

Фото готового дома снаружи

Каркасный дом 7х12м Химос
Каркасный дом 7х12м Химос
Каркасный дом 7х12м Химос
Каркасный дом 7х12м Химос
Каркасный дом 7х12м Химос
Каркасный дом 7х12м Химос
Каркасный дом 7х12м
Каркасный дом 7х12м
-8
-9
-10
-11

Отделка внутри

-12
-13
-14
-15
-16

Ранее мы выкладывали статьи о ходе строительства этого дома. Их можно почитать по ссылкам:

Подготовка к строительству дома

Начало строительства каркасного дома. Обвязка фундамента, возведение каркаса

Процесс строительства каркасного дома. Монтаж ветрозащиты и кровли.

В этом доме мы проводили тест на батутность! Вот что у нас получилось -

***
Все новости читайте в нашем телеграм-канале

Подписывайтесь на нашу группу Вконтакте

И, конечно же, подписывайтесь на нас в «Дзене»

Цена и комплектация дома - https://grey-house.ru

Наши контакты:
Телефон:
8-499-226-08-43
What’s App
mail@grey-house.ru
Сайт:
grey-house.ru