Найти в Дзене
66.RU

Как обустроить действительно большую квартиру. Три идеи от интерьерного дизайнера

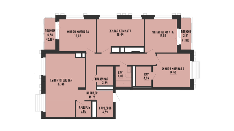
На планировке большой четырехкомнатной квартиры (122,45 м2) мы попросили интерьерного дизайнера Патрицию Трапезникову (студия Decopa design) показать, как можно обустроить ее в зависимости от состава семьи. Эту квартиру мы нашли в готовом жилом комплексе «Высота» от Forum Group. Патриция Трапезникова, студия Decopa design: — В квартире очень много окон, что добавляет комфорта и делает ее подходящей практически для любого состава семьи. Одна из ее особенностей — мастер-спальня. Несомненный плюс в том, что в каждой комнате при любом варианте найдется место для хранения личных вещей. Такие возможности есть далеко не во всех квартирах, даже очень больших. Еще одним плюсом является наличие прачечной. Она позволит не размещать где-то в квартире конструкции для сушки белья — стиральная и сушильная машины и весь хозяйственный инвентарь будут находиться здесь. Для семьи с двумя детьми Для семьи с тремя детьми Для семьи с одним ребенком Жилой комплекс «Высота» — проект девелопера Forum Group с в
Оглавление

На планировке большой четырехкомнатной квартиры (122,45 м2) мы попросили интерьерного дизайнера Патрицию Трапезникову (студия Decopa design) показать, как можно обустроить ее в зависимости от состава семьи.

Эту квартиру мы нашли в готовом жилом комплексе «Высота» от Forum Group.

Патриция Трапезникова, студия Decopa design:

— В квартире очень много окон, что добавляет комфорта и делает ее подходящей практически для любого состава семьи. Одна из ее особенностей — мастер-спальня. Несомненный плюс в том, что в каждой комнате при любом варианте найдется место для хранения личных вещей. Такие возможности есть далеко не во всех квартирах, даже очень больших. Еще одним плюсом является наличие прачечной. Она позволит не размещать где-то в квартире конструкции для сушки белья — стиральная и сушильная машины и весь хозяйственный инвентарь будут находиться здесь.

Для семьи с двумя детьми

-2
  1. В открытой гардеробной делаем зону хранения для прихожей. Вторую гардеробную используем для хранения сезонных и редко используемых вещей. Для семьи из четырех человек такого расположения зон для хранения вполне хватит. А для велосипедов и колясок есть место на первом этаже ЖК.
  2. Немного меняем конфигурацию кухни-гостиной, чтобы максимально изолировать входную зону, перенеся вход ближе к жилым комнатам.
  3. Сразу у входа в кухне-гостиной располагаем два пенала со встроенным холодильником, СВЧ и духовым шкафом. Дальше следует зона приготовления еды. Сюда же впишется круглый обеденный стол, а в дальнем конце — просторный диван с телевизором. Кухня-гостиная становится многофункциональным помещением, где вся семья может собираться вместе.
  4. Напротив входа в кухню расположена прачечная — как и в планировке от застройщика.
  5. Меняем конфигурацию межкомнатных перегородок таким образом, чтобы объединить две комнаты в просторную родительскую спальню, из окон и с лоджии которой открывается вид на Верх-Исетский пруд. С помощью шкафа зонируем спальню, выделяя в ней пространство для работы за ноутбуком (-ами) и более приватную зону в глубине.
  6. Угловая детская увеличена за счет перепланировки родительской спальни. Это комната старшего ребенка, и у нее есть собственный чил-аут на лоджии. Вторая детская тоже достаточно просторна, а самое главное — в обеих комнатах помещается полноценное место для хранения вещей.
  7. Вход во второй санузел выводим в общий коридор, чтобы каждый член семьи смог попасть туда, когда ему нужно.

Для семьи с тремя детьми

-3
  1. Входная зона остается такой же, как в предыдущем варианте.
  2. В кухне-гостиной размещаем большой шкаф для хранения посуды и кухонного инвентаря. Зона приготовления пищи остается при этом не менее просторной. А еще для кулинарных семейных вечеров можно использовать большой прямоугольный стол.
  3. Три детские комнаты расположены в один ряд. Две из них — с лоджиями, так что подойдут для старших детей — подростков, а то и старшеклассников. Другой вариант — сделать в одной из комнат с лоджией родительскую спальню, а ребенку отдать дальнюю комнату.
  4. В спальне взрослых — большая кровать и вместительная система хранения.
  5. Расположение санузлов и прачечной оставляем как в первом варианте. Его должно хватить, чтобы утренние сборы проходили без очередей.

Для семьи с одним ребенком

-4
  1. В этом варианте много простора, но ничего лишнего. Кухня-гостиная здесь максимально расширена за счет демонтажа перегородок — оставляем только несущий пилон, избавляясь от коридора. Сама кухня — с островом для приготовления пищи, к которому приставлен обеденный стол. На острове располагаем варочную поверхность, рабочую зону и мойку. В другом конце все так же оставляем диванную зону.
  2. Чтобы функционал разных помещений не конфликтовал, переносим вход в прачечную подальше от зоны готовки.
  3. Соседнее помещение обустраиваем под уединенную гостиную. Здесь же будет удобно проводить время за просмотром фильмов и сериалов. Или организовать домашний спортзал для занятий йогой, или комнату для гостей.
  4. Просторная детская на два окна в центре квартиры, по сути, повторяет планировку от застройщика. В комнате вмещается все, что нужно ребенку, — зона отдыха, игр, занятий и место для хранения вещей.
  5. Дальнее помещение — мастер-спальня для родителей с собственной ванной комнатой, выходом на лоджию, гардеробной и рабочим местом. Если один из родителей занимается творчеством, это помещение легко обустраивается в уединенный уголок, отвечающий всем его потребностям. А с лоджии и из окна этого кабинета открывается вдохновляющий вид на самый центр Екатеринбурга.

Жилой комплекс «Высота» — проект девелопера Forum Group с видом на центр города, «Екатеринбург Арену», гладь Верх-Исетского пруда, уютный парк Дворца молодежи и бесконечную линию горизонта. Доминанта нового дома видна с проспекта Ленина. Архитектура, вдохновленная природой Урала, и эффектная подсветка притягивают взгляды горожан в любое время суток. Двор «Высоты» продуман так, чтобы соответствовать интересам жителей всех возрастов.