Найти в Дзене

Каждый сходит с ума по-своему: ремонт в ЖК Москвичка. Где грань между колхозом/богатством/больничной палатой. Почему не захотели заканчивать

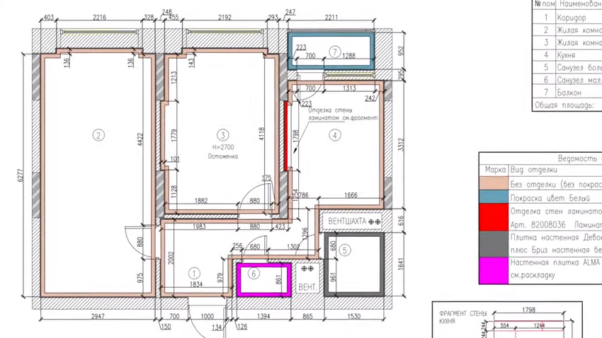
Бывает так, что в процессе работы заказчики вносят далеко не маленькие изменения, и сегодняшняя история этому пример. Исходное состояние Это двухкомнатная квартира в новостройке площадью 54 кв.м. Она была без отделки, перегородка от застройщика была только в санузле, поэтому остальные перегородки мы возводили дополнительно. Полы По полу застройщиком были проложены трубы отопления, мы дополнительно проложили электрические кабели к розеткам и залили цементно-песчаную стяжку, а затем выровняли поверхность самонивелирующейся смесью. В стоимость базового пакета входит плитка только в зоне кухни, но в этой квартире плитка по всей площади кухни и прихожей. Плинтус был выбран высокий белый ПВХ. Стены А вот тут получилось интересно. Заказчица передумала красить стены, потому что хотела не обычную краску, а какое-то особенное покрытие. Наносить она будет его своими силами когда-нибудь позже. Поэтому мы стены оштукатурили по маякам, зашпаклевали, проклеили стеклохолстом и оставили в таком виде.
Оглавление

Бывает так, что в процессе работы заказчики вносят далеко не маленькие изменения, и сегодняшняя история этому пример.

  • Особенность этого ремонта в том, что он так и остался не законченным. Здесь нет финишной отделки стен, но это даже хорошо. А почему хорошо, мы расскажем далее.

Исходное состояние

Это двухкомнатная квартира в новостройке площадью 54 кв.м. Она была без отделки, перегородка от застройщика была только в санузле, поэтому остальные перегородки мы возводили дополнительно.

Полы

-2

По полу застройщиком были проложены трубы отопления, мы дополнительно проложили электрические кабели к розеткам и залили цементно-песчаную стяжку, а затем выровняли поверхность самонивелирующейся смесью.

  • В комнатах ламинат из базового пакета заменили на более дорогой, у него интересный дизайн в виде широкой доски с фаской со всех сторон. Натуральную доску этот ламинат имитирует достаточно близко.
-3

В стоимость базового пакета входит плитка только в зоне кухни, но в этой квартире плитка по всей площади кухни и прихожей. Плинтус был выбран высокий белый ПВХ.

Стены

-4

А вот тут получилось интересно. Заказчица передумала красить стены, потому что хотела не обычную краску, а какое-то особенное покрытие. Наносить она будет его своими силами когда-нибудь позже. Поэтому мы стены оштукатурили по маякам, зашпаклевали, проклеили стеклохолстом и оставили в таком виде.

Мы обычно рекомендуем сначала закончить отделку стен, а уже потом ставить плинтуса, дверные наличники и навесной потолок. Потому что когда уже все смонтировано, отделывать стены будет не очень удобно.
-5

На кухне фартук выполнен из плитки, а ниша в противоположной стене отделана тем же ламинатом, который лежит на полу. Надо сказать, что на стене он выглядит довольно интересно.

Потолок

Во всей квартире потолок натяжной белый матовый. Центральный потолочный свет по просьбе заказчицы заменен на точечные светильники. При чем хозяйка хотела, чтобы их было много, и расположение светильников выбирала сама.

Детали

-6
  • Сдвоенные розетки из базового пакета заменены на одинарные, собранные в одном блоке под общей рамкой.
  • Электрический щиток с автоматами утоплен в стену.
  • Входная дверь имеет удобную опцию – зеркало.

Санузлы

На полу и стенах лежит плитка. При этом до потолка плитка доходит только в зоне душевой, то есть в мокрой зоне. Остальная верхняя часть стен оштукатурена и окрашена.

-7
Вообще, вариант с плиткой не до потолка выглядит очень современно, а привычка выкладывать стены плиткой полностью пришла к нам из 90-х, когда это было признаком достатка.

Стандартная ванна была заменена на душевую кабину с встроенной в стену душевой системой. Раковина в ванной комнате с тумбой, в туалете тоже установлена небольшая раковина. Унитаз и полотенцесушитель стандартные, из базового пакета.

-8

Стоимость и сроки

В основе ремонта лежит пакет «Остоженка». Его стоимость под ключ с материалами и техническим проектом составляет 15 990 рублей за кв.м. А конкретно в этой квартире у заказчика был целый ряд креативных идей и дополнений, поэтому стоимость выросла до 21200 рублей за кв.м.

Срок такого ремонта в среднем составляет около 3х месяцев.

Заказать ремонт квартир в Москве недорого можно в компании «Светелкин». В каталоге организации готовые, до мелочей отработанные проекты, поэтому их стоимость и сроки исполнения ниже, чем в среднем по рынку.

Задавайте вопросы в комментариях и не забудьте подписаться на наш канал, чтобы не пропустить обзоры других наших ремонтов, обзоры новостроек глазами строителя, а также разбор наших и чужих ошибок. Мы стараемся, чтобы было интересно!