Найти в Дзене

Интерьер для активной семьи

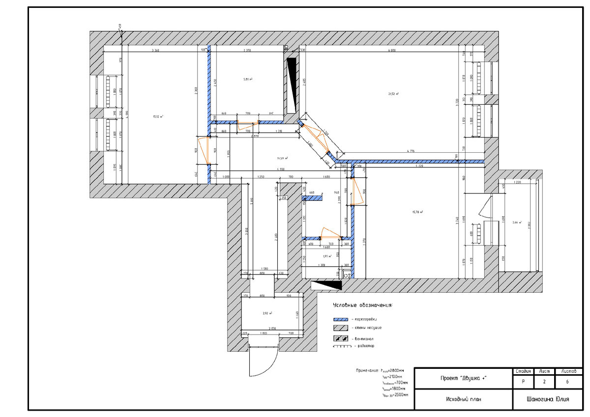
Ко мне обратилась молодая семья с ребёнком с просьбой разработать проект для их новой двухкомнатной квартиры. Когда мы начали работать, они плохо представляли, каким должен быть интерьер их нового жилья. В первую очередь мы начали со знакомства. Это очень важный этап в работе дизайнера – узнать, что за люди к нему обратились. Во время первого разговора они рассказали о себе, своих увлечениях и образе жизни. Эта информация необходима для того, чтобы сделать интерьер не только красивым, но и удобным, разработанным не просто по примерам и макетам, а для конкретной семьи, со своими характерами и привычками. Вот исходный план, с которого мы начали работать. Мои заказчики ведут активный образ жизни, поэтому у них много походного и спортивного инвентаря. А это значит, что нужно запланировать большое количество систем хранения. Планировка с большим количеством ниш позволяла нам разместить несколько шкафов, но этого мне показалось недостаточно, и я предложила идею с гардер

Ко мне обратилась молодая семья с ребёнком с просьбой разработать проект для их новой двухкомнатной квартиры. Когда мы начали работать, они плохо представляли, каким должен быть интерьер их нового жилья.

В первую очередь мы начали со знакомства. Это очень важный этап в работе дизайнера – узнать, что за люди к нему обратились. Во время первого разговора они рассказали о себе, своих увлечениях и образе жизни. Эта информация необходима для того, чтобы сделать интерьер не только красивым, но и удобным, разработанным не просто по примерам и макетам, а для конкретной семьи, со своими характерами и привычками.

Вот исходный план, с которого мы начали работать.

Первоначальный план
Первоначальный план

Мои заказчики ведут активный образ жизни, поэтому у них много походного и спортивного инвентаря. А это значит, что нужно запланировать большое количество систем хранения. Планировка с большим количеством ниш позволяла нам разместить несколько шкафов, но этого мне показалось недостаточно, и я предложила идею с гардеробной. Мы решили отгородить ее в большой комнате в 21м2.

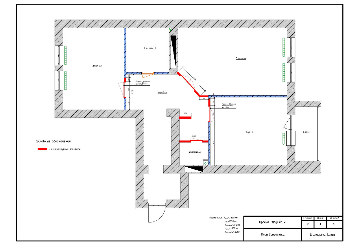
Я предложила сделать небольшую перепланировку, чтобы разместить все то, что мы задумали. И техническая работа началась и плана демонтажа и плана монтажа.

План демонтажа
План демонтажа
План монтажа
План монтажа

Следующим этапом стала разработка планировок. Я разработала их сразу 3, чтобы Заказчики поняли все возможности их нового жилья. И все они получились интересными и разнообразными.

Мы тщательно работали над каждой комнатой и итоговую планировку мы собрали из лучших моментов этих трех. И вот что получилось в итоге:

Планировочное решение
Планировочное решение

После того, как определились с окончательной планировкой, я подобрала референсы и аналоги, чтобы понять, как должен выглядеть будущий интерьер. Кроме аналогово я делала коллаж гостиной.

-6

И после долгой работы начал вырисовываться тот самый интерьер.

Мне хочется, что бы каждый новый дизайн не был похож на предыдущий. И поэтому я стараюсь придумывать какую-то изюминку. В этой квартире мне кажется ей стала стена в кухне.

-7

Здесь я постаралась объединить и разные цвета, и разные рекстуры. Она перекликается и с мебелью, и с текстилем. На мой взгляд получилось оригинально и Заказчикам тоже понравилось.

Вот такая уютная кухня получилась.

Но больше всего мне понравилось работать с дочкой Заказчиков, маленькой Вероникой. Она с самого начала знала, как должна выглядеть её комната, какие цвета должны присутствовать, и что из мебели ей нужно. Дизайн её комнаты разработан нами совместно.

Вот такая милая комната получилась у нас с ней. Здесь предусмотрено всё, что может понадобиться: большой шкаф для вещей, с открытыми полками для самых любимых игрушек; рабочее место, где разместятся все необходимые принадлежности; ну и конечно же спальное место, в нежных цветах, перекликающихся с цветами интерьера комнаты в целом.

В итоге Заказчики довольны результатом. В проекте были учтены и реализованы пожелания всех членов семьи. Надеюсь, им будет комфортно и уютно жить в квартире с этим дизайном.

Если вы планируете делать ремонт в своей квартире, получить не только красивый, но и комфортный, функциональный дизайн, пишите мне.

Viber, WhatsApp: +7 903 309 39 42

Telegram: @Yuliya_siti63