Добавить в корзинуПозвонить
Найти в Дзене

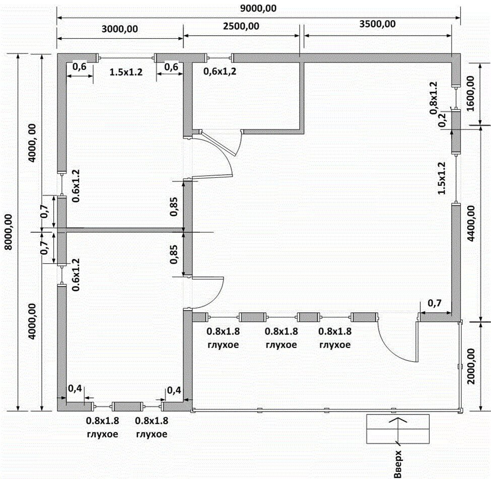
Каркасный дом 8х9м с отделкой. Фотоотчет, планировка, цена.

📅 Дата сдачи: март 2023 г.
🏡 Комплектация: каркас 150мм с отделкой
💰 Стоимость: 1 400 000 ₽ Планировка: 👉🏻 Комплектация построенного дома «с отделкой»: - двойная обвязка основания из бруса 150х150мм и 50х200мм
- лаги из бруса 50х200мм, 100х200мм, шаг 0,59м
- несущие стены (обвязки, стойки, ригель) доска 40х150мм, шаг 0,59м
- перегородки (обвязки, стойки, ригель) доска 40х100мм, шаг 0,59м
- высота потолков: 2,6м
- потолочные перекрытия 50х200мм, шаг 0,59м
- стропильная система 40х150мм, шаг 0,59м,
- крыша двухскатная, высота конька 2,0м, свесы крыши 40см
- кровля: м/ч "Монтеррей", обрешетка, ветрозащита, контр-обрещетка 40х50мм
- наружная отделка стен: ветрозащита SA 130, контр-рейка 20х50мм.
- утепление: полы, потолки - мин. вата Кнауф 200мм; стены - Роквул Скандик 150мм
- мембранные пленки Ондутис SA130, А100, R70, скотч "Дельта"
- полы чистовые: плиты Квик-Дек, по обрешетке 30х90мм
- чистовая отделка стен внутри и потолков - частичная, вагонкой хвойных пород
- окна: ПВХ 2-х каме

📅 Дата сдачи: март 2023 г.
🏡 Комплектация: каркас 150мм с отделкой
💰 Стоимость: 1 400 000 ₽

Планировка:

-2

👉🏻 Комплектация построенного дома «с отделкой»:

- двойная обвязка основания из бруса 150х150мм и 50х200мм
- лаги из бруса 50х200мм, 100х200мм, шаг 0,59м
- несущие стены (обвязки, стойки, ригель) доска 40х150мм, шаг 0,59м
- перегородки (обвязки, стойки, ригель) доска 40х100мм, шаг 0,59м
- высота потолков: 2,6м
- потолочные перекрытия 50х200мм, шаг 0,59м
- стропильная система 40х150мм, шаг 0,59м,
- крыша двухскатная, высота конька 2,0м, свесы крыши 40см
- кровля: м/ч "Монтеррей", обрешетка, ветрозащита, контр-обрещетка 40х50мм
- наружная отделка стен: ветрозащита SA 130, контр-рейка 20х50мм.
- утепление: полы, потолки - мин. вата Кнауф 200мм; стены - Роквул Скандик 150мм
- мембранные пленки Ондутис SA130, А100, R70, скотч "Дельта"
- полы чистовые: плиты Квик-Дек, по обрешетке 30х90мм
- чистовая отделка стен внутри и потолков - частичная, вагонкой хвойных пород
- окна: ПВХ 2-х камерные
- двери: входная ПВХ, межкомнатные - не устанавливаются
- защитная мет. сетка от грызунов
- обработка (огне-биозащита) основания и лаг 1-го этажа

Понравился дом? Свяжитесь с нами, мы сделаем для вас расчет стоимости или подберем подходящий проект под ваши пожелания.

📍 Наши контакты:

• Сайт: bagrovstroy.ru
• Группа VK:
vk.com/bagrovstroy