Найти в Дзене
Fortik_stroy

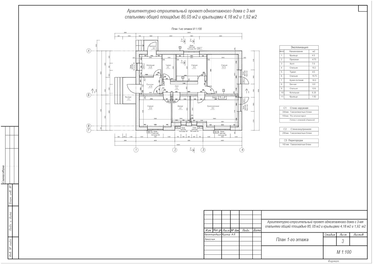
Одноэтажный жилой дом общей площадью 85 м2

Планировочные решения:
3 Спальных комнаты
Кухня-гостиная 18,00 м2
Санузел 6,00 м2
Туалет 4,50 м2
Котельная комната 6,25 м2
Холл 7,00 м2
Крыльцо 4,5 м2 и 1,92 м2
Прихожая 4,75 м2
Примечания: данный проект мы реализовали в 2022 году и хотелось бы отметить, что решение с люкарном на кровле является чисто эстетическим, чтобы сделать фасад более интересным, но высота кровли позволяет эксплуатировать чердачное пространство, как жилое или для хранения вещей, кроме этого за счет инсоляции это помещение достаточно комфортное для использования.
-2


Планировочные решения:

3 Спальных комнаты
Кухня-гостиная 18,00 м2
Санузел 6,00 м2
Туалет 4,50 м2
Котельная комната 6,25 м2
Холл 7,00 м2
Крыльцо 4,5 м2 и 1,92 м2
Прихожая 4,75 м2

Примечания: данный проект мы реализовали в 2022 году и хотелось бы отметить, что решение с люкарном на кровле является чисто эстетическим, чтобы сделать фасад более интересным, но высота кровли позволяет эксплуатировать чердачное пространство, как жилое или для хранения вещей, кроме этого за счет инсоляции это помещение достаточно комфортное для использования.