Добавить в корзинуПозвонить
Найти в Дзене

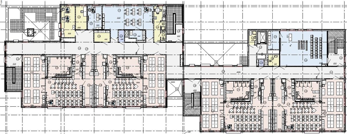
Расстановка оборудования и мебели в ДОУ ДОО

Проектирование расстановки мебели и оборудования в детском саду является важным этапом создания комфортного и безопасного пространства для детей. При проектировании необходимо учитывать возрастную категорию детей, их потребности и интересы, а также нормы и требования, установленные законодательством. Разработка тома ТХ Технологические решения для ДОУ +79043329806 В первую очередь, необходимо определить основные зоны в детском саду: игровую и образовательную, питания и отдыха. Каждая из этих зон должна быть оборудована соответствующей мебелью и оборудованием. В игровой зоне необходимо предусмотреть игровые комплексы, мягкие модули, игрушки, ковры и другие элементы, которые способствуют развитию моторики, координации движений, воображения и фантазии детей. Образовательная зона должна быть оборудована столами, стульями, шкафами для хранения учебных материалов и другой мебелью, необходимой для проведения уроков и занятий. В зоне питания необходимо обеспечить комфортное питание детей, преду

Проектирование расстановки мебели и оборудования в детском саду является важным этапом создания комфортного и безопасного пространства для детей. При проектировании необходимо учитывать возрастную категорию детей, их потребности и интересы, а также нормы и требования, установленные законодательством.

Разработка тома ТХ Технологические решения для ДОУ +79043329806

В первую очередь, необходимо определить основные зоны в детском саду: игровую и образовательную, питания и отдыха. Каждая из этих зон должна быть оборудована соответствующей мебелью и оборудованием.

В игровой зоне необходимо предусмотреть игровые комплексы, мягкие модули, игрушки, ковры и другие элементы, которые способствуют развитию моторики, координации движений, воображения и фантазии детей. Образовательная зона должна быть оборудована столами, стульями, шкафами для хранения учебных материалов и другой мебелью, необходимой для проведения уроков и занятий.

В зоне питания необходимо обеспечить комфортное питание детей, предусмотрев столы, стулья, посуду, кухонные принадлежности и другую необходимую мебель и оборудование. Отдельно стоит уделить внимание гигиенической безопасности в зоне питания.

Зона отдыха должна быть оборудована мебелью и элементами, которые способствуют релаксации и отдыху детей: кровати, мягкие ковры, подушки.

Пример расстановки мебели в детском саду.

При проектировании расстановки мебели и оборудования в детском саду необходимо учитывать не только функциональные, но и эстетические аспекты. Мебель и оборудование должны соответствовать общему стилю и цветовой гамме детского сада, создавая гармоничное и приятное визуальное впечатление.

Кроме того, необходимо учитывать особенности развития детей и обеспечивать безопасность их пребывания в детском саду. Например, столы и стулья должны быть правильной высоты, чтобы не наносить вреда здоровью растущего организма. Также, необходимо убедиться, что мебель и оборудование соответствуют стандартам безопасности, не имеют острых углов, не скользят по полу и не являются источником потенциальной опасности для детей.

Кроме того, при выборе мебели и оборудования в детском саду необходимо обратить внимание на качество материалов и изготовление изделий. Мебель и оборудование должны быть изготовлены из безопасных и экологически чистых материалов, не вызывающих аллергических реакций у детей. Кроме того, мебель и оборудование должны быть износоустойчивыми и легко чиститься, чтобы обеспечить длительный срок их эксплуатации.