Добавить в корзинуПозвонить
Найти в Дзене
Каркас Инфо

Мансардный каркасный дом КД-104

Все мы родом из детства…- многие слышали эту фразу, а данном случае она дала направление для выбора внешнего облика дома. При разработке внешнего вида заказчик упомянул, что ему нравились так называемые дома-«пятистенки», широко распространенные в Подмосковье. В подобном доме он проводил в детстве каникулы у родственников в деревне и хотел, что бы его дача стала этаким современным вариантом сельского дома. Так во внешнем облике дома есть отсылки к сельским домам, простая форма, двускатная крыша, «крыло» крыши, накрывающее террасу. Планировка проста и практична, и даже можно сказать проверена временем: что-то похожее можно найти в сборниках проектов, которые выпускали в 80-90 х годах, а  современные нотки вносит объеденная кухня-гостиная и пристроенная с фасада терраса. У некоторых смущение вызовет расположение лестницы в мансарду в гостиной,  — из-за этого площадь мансарды на первый взгляд используется не самым эффективным образом. Но в этом случае не шла речь об разделении мансарды п

Проект каркасного дома Кд-104 © Владимир Пустоход, 2020
Проект каркасного дома Кд-104 © Владимир Пустоход, 2020

Все мы родом из детства…- многие слышали эту фразу, а данном случае она дала направление для выбора внешнего облика дома. При разработке внешнего вида заказчик упомянул, что ему нравились так называемые дома-«пятистенки», широко распространенные в Подмосковье.

В подобном доме он проводил в детстве каникулы у родственников в деревне и хотел, что бы его дача стала этаким современным вариантом сельского дома.

Так во внешнем облике дома есть отсылки к сельским домам, простая форма, двускатная крыша, «крыло» крыши, накрывающее террасу.

Планировка проста и практична, и даже можно сказать проверена временем: что-то похожее можно найти в сборниках проектов, которые выпускали в 80-90 х годах, а  современные нотки вносит объеденная кухня-гостиная и пристроенная с фасада терраса.

У некоторых смущение вызовет расположение лестницы в мансарду в гостиной,  — из-за этого площадь мансарды на первый взгляд используется не самым эффективным образом. Но в этом случае не шла речь об разделении мансарды перегородками на комнаты, —  по словам заказчика проекта ему хотелось бы просто иметь определенное «свободное пространство», которое в дальнейшем они с женой будут менять в зависимости от своих потребностей.

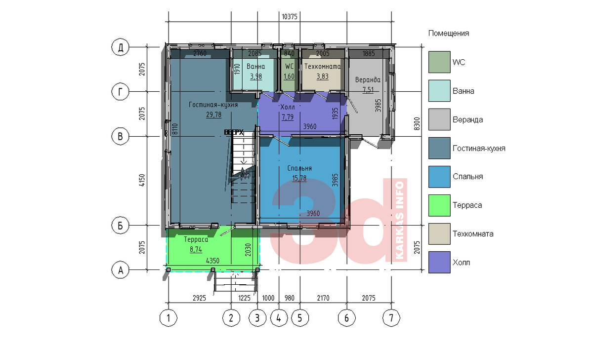
План первого этажа каркасного дома КД-104 © Владимир Пустоход, 2020
План первого этажа каркасного дома КД-104 © Владимир Пустоход, 2020

Пока они планируют поставить там стеллажи для книг и с их помощью разделить мансарду на зоны для занятия йогой, рабочий уголок, зону отдыха со спальным местом, в случае приема гостей и библиотеку, так как по их словам, не смотря на всеобщую «цифровизацию » книги они все же предпочитают бумажные. Тем более сейчас многие их знакомые начали избавляться от ставшими не нужными томиков с Пушкиным, Дюма, Агаты Кристи, О’Генри, Лондона и т.д. за которыми охотились их родители при СССР, что по их словам позволило им собрать практически бесплатно неплохую библиотеку из 1500 томов для чтения «на пенсии».

План мансарды каркасного дома КД-104 © Владимир Пустоход, 2020
План мансарды каркасного дома КД-104 © Владимир Пустоход, 2020

Кстати, при разработке проекта мы предлагали перенести лестницу в прихожую, таким образом разделение мансарды на комнаты в последствии не вызвало бы никаких сложностей, и даже перекрытие конструктивно получилось бы проще. Но заказчики настояли именно на лестнице из гостиной,  — отчасти в этом случае лестница получалась более удобной без поворотных ступеней и более пологой. Но все же главное, почему они по их словам решили разместить лестницу именно в зале стало  интерьерное-концептуальное ощущение того, что ты как бы из хозяйственно-жилой зоны первого этажа, поднимаясь по лестнице переходишь в зону отдыха и комфорта мансарды, оставляя все бытовые вопросы внизу… Так как мансарда в данном случае будет зоной «релакса», а ее обустраивает каждый по своему:  для кого то это коврик для йоги и кресло-мешок небрежно кинутый в один из углов, для других диван, ТВ с приставкой, и настольный футбол.

Терраса каркасного дома КД-104 © Владимир Пустоход, 2020
Терраса каркасного дома КД-104 © Владимир Пустоход, 2020

Мы обратим внимание на планировку первого этажа. Прежде всего — это наличие веранды, которую сейчас многие недооценивают, а между прочим это удобное помещение на все сезоны: летом там можно оставлять обувь и верхнею одежду, чтобы не тащить пыль в дом, в дождливый день там можно сушить белье, осенью положить урожай на просушку, а зимой она исполняет роль тамбура.

Вид каркасного дома КД-104 © Владимир Пустоход, 2020
Вид каркасного дома КД-104 © Владимир Пустоход, 2020

Прихожая достаточно просторна, не смотря на то, что в нее выходят пять дверей. Слева в углу, при входе, предусмотрено достаточно большое место под шкаф купе для хранения вещей. Заказчики  так же акцентировали внимание на том, что им хочется иметь достаточно просторную спальню,так что ее площадь составила около 16м2.

Вид каркасного дома КД-104 © Владимир Пустоход, 2020
Вид каркасного дома КД-104 © Владимир Пустоход, 2020

По противоположной стене расположились двери хозяйственных помещений, — прежде всего это техническая комната для электрического котла, бойлера, насосной станции, фильтров и т.п. Санузел и ванна выполнены раздельными. Казалось бы при проживании всего двух человек в доме логичнее напротив их объединить, но по словам заказчиков лично им удобнее раздельные помещения. Главное помещение дома, кухня-гостиная с выходом на террасу, и из нее же в мансарду ведет лестница.

Скачать проект: https://karkas.info/wp-content/uploads/2020/04/chertezhi-proekta-karkasnogo-doma-kd-104.pdf